
3 bedroom semi-detached house for sale
2, Woodlands View, Douglas

- PROPERTY TYPE
Semi-Detached
- BEDROOMS
3
- BATHROOMS
1
- SIZE
Ask agent
- TENUREDescribes how you own a property. There are different types of tenure - freehold, leasehold, and commonhold.Read more about tenure in our glossary page.
Ask agent
Key features
- Beautifully refurbished modern semi detached home
- Offered for sale with no onward chain
- Sought after cul-de-sac in a popular residential location
- Conveniently situated within a short distance to the local shops, bus routes, business park and a short drive to Douglas city centre
- Lovely living room with square bay window
- New ultra modern dining kitchen fitted in 2025 with matching utility room
- 3 Bedrooms and a stylish shower room
- Driveway providing access to the garage/storage
- Enjoys a south facing rear garden which will will be rotavated, seeded and fenced to the rear border before completion
- Property benefits from new stylish black uPVC windows
Description
This stylishly refurbished semi-detached home is presented in turn-key condition, offered for sale with no onward chain, and located in a sought-after cul-de-sac within a popular and convenient residential area.
Positioned within easy reach of local shops, bus routes, the business park, and only a short drive from Douglas city centre, this home offers modern, low-maintenance living ideal for families or professionals.
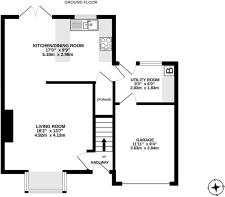
The accommodation includes a welcoming living room with a square bay window, and a brand new ultra-modern dining kitchen, fitted in 2025, complete with integrated appliances and a matching utility room for added convenience.
Upstairs, there are three bedrooms and a stylish contemporary shower room.
Externally, the property benefits from a driveway providing access to the garage/storage area, and to the rear is a south-facing garden that will be rotavated, seeded, and fenced to the rear boundary prior to completion – creating a perfect blank canvas for landscaping or entertaining.
Additional upgrades include new black uPVC windows, giving the home a fresh, modern look and improved energy efficiency.
A fantastic opportunity to acquire a fully modernised home in a highly desirable location – early viewing is recommended.
Inclusions All fitted floor coverings and light fittings
Appliances Electric oven, 4 ring hob, dishwasher and fridge
Tenure Freehold
Rates Treasury tel - and Douglas Borough tel -
Heating Gas
Windows uPVC double glazing
- COUNCIL TAXA payment made to your local authority in order to pay for local services like schools, libraries, and refuse collection. The amount you pay depends on the value of the property.Read more about council Tax in our glossary page.
- Ask agent
- PARKINGDetails of how and where vehicles can be parked, and any associated costs.Read more about parking in our glossary page.
- Yes
- GARDENA property has access to an outdoor space, which could be private or shared.
- Yes
- ACCESSIBILITYHow a property has been adapted to meet the needs of vulnerable or disabled individuals.Read more about accessibility in our glossary page.
- Ask agent
Energy performance certificate - ask agent
2, Woodlands View, Douglas
Add an important place to see how long it'd take to get there from our property listings.
__mins driving to your place
Get an instant, personalised result:
- Show sellers you’re serious
- Secure viewings faster with agents
- No impact on your credit score
Your mortgage
Notes
Staying secure when looking for property
Ensure you're up to date with our latest advice on how to avoid fraud or scams when looking for property online.
Visit our security centre to find out moreDisclaimer - Property reference 6754. The information displayed about this property comprises a property advertisement. Rightmove.co.uk makes no warranty as to the accuracy or completeness of the advertisement or any linked or associated information, and Rightmove has no control over the content. This property advertisement does not constitute property particulars. The information is provided and maintained by Garforth Gray, Isle of Man. Please contact the selling agent or developer directly to obtain any information which may be available under the terms of The Energy Performance of Buildings (Certificates and Inspections) (England and Wales) Regulations 2007 or the Home Report if in relation to a residential property in Scotland.
*This is the average speed from the provider with the fastest broadband package available at this postcode. The average speed displayed is based on the download speeds of at least 50% of customers at peak time (8pm to 10pm). Fibre/cable services at the postcode are subject to availability and may differ between properties within a postcode. Speeds can be affected by a range of technical and environmental factors. The speed at the property may be lower than that listed above. You can check the estimated speed and confirm availability to a property prior to purchasing on the broadband provider's website. Providers may increase charges. The information is provided and maintained by Decision Technologies Limited. **This is indicative only and based on a 2-person household with multiple devices and simultaneous usage. Broadband performance is affected by multiple factors including number of occupants and devices, simultaneous usage, router range etc. For more information speak to your broadband provider.
Map data ©OpenStreetMap contributors.






