
Manor Avenue, Brockley, London

- PROPERTY TYPE
Apartment
- BEDROOMS
2
- BATHROOMS
1
- SIZE
Ask agent
Key features
- Victorian Era.
- Close to Brockley Station (0.6 miles)
- Conservation Area
- Well Presented Throughout
- Bi Folding Doors With Direct Access To the Garden
- Extended Reception Room
- Energy Efficiency Rating C
Description
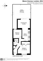
The Acorn Group are delighted to offer to the market this charming two bedroom basement apartment, which is set in a renowned and central location in the Brockley Conservation area.
Accessed by its own front door, the accommodation itself provides a free-flowing layout and boasts a vast amount of natural light. The two bedrooms are both spacious double bedrooms with the master bedroom offering a walk-in wardrobe. The stylish bathroom is well proportioned and the open planned kitchen/lounge having the benefit of bi-fold doors providing direct access to a west facing private garden.
Manor Avenue is considered being one of SE4's most premium roads, connecting you from Brockley to New Cross. Brockley Station (0.5mi) is a thirteen-minute walk away and offers great links into London Victoria & London Bridge.
Lease Term - 999 years from 1 January 2019
Service Charge - ad hoc
Ground Rent - £0
Council Tax Band - B
Energy Efficiency Rating C
- COUNCIL TAXA payment made to your local authority in order to pay for local services like schools, libraries, and refuse collection. The amount you pay depends on the value of the property.Read more about council Tax in our glossary page.
- Band: B
- PARKINGDetails of how and where vehicles can be parked, and any associated costs.Read more about parking in our glossary page.
- Ask agent
- GARDENA property has access to an outdoor space, which could be private or shared.
- Yes
- ACCESSIBILITYHow a property has been adapted to meet the needs of vulnerable or disabled individuals.Read more about accessibility in our glossary page.
- Ask agent
Manor Avenue, Brockley, London
Add an important place to see how long it'd take to get there from our property listings.
__mins driving to your place
Get an instant, personalised result:
- Show sellers you’re serious
- Secure viewings faster with agents
- No impact on your credit score
Your mortgage
Notes
Staying secure when looking for property
Ensure you're up to date with our latest advice on how to avoid fraud or scams when looking for property online.
Visit our security centre to find out moreDisclaimer - Property reference BRO247369. The information displayed about this property comprises a property advertisement. Rightmove.co.uk makes no warranty as to the accuracy or completeness of the advertisement or any linked or associated information, and Rightmove has no control over the content. This property advertisement does not constitute property particulars. The information is provided and maintained by Acorn, Brockley. Please contact the selling agent or developer directly to obtain any information which may be available under the terms of The Energy Performance of Buildings (Certificates and Inspections) (England and Wales) Regulations 2007 or the Home Report if in relation to a residential property in Scotland.
*This is the average speed from the provider with the fastest broadband package available at this postcode. The average speed displayed is based on the download speeds of at least 50% of customers at peak time (8pm to 10pm). Fibre/cable services at the postcode are subject to availability and may differ between properties within a postcode. Speeds can be affected by a range of technical and environmental factors. The speed at the property may be lower than that listed above. You can check the estimated speed and confirm availability to a property prior to purchasing on the broadband provider's website. Providers may increase charges. The information is provided and maintained by Decision Technologies Limited. **This is indicative only and based on a 2-person household with multiple devices and simultaneous usage. Broadband performance is affected by multiple factors including number of occupants and devices, simultaneous usage, router range etc. For more information speak to your broadband provider.
Map data ©OpenStreetMap contributors.





