- 3 Marconi Place, Friern Barnet, London, N11
- SIZE AVAILABLE
4,988 sq ft
463 sq m
- SECTOR
Commercial property for sale
Key features
- Great Location
- Many Original Features
- Open Plan
- 3 Phase Power
- Allocated Parking
- New Lease
Description
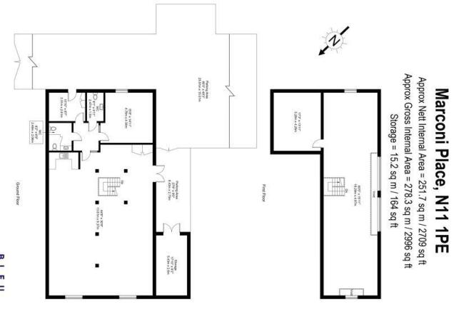
The unit is currently divided into 2 units 1 and 3 Marconi Place.
Unit 1 - front unit GIA 1992 sq.ft approx, set over ground and first floor. Own street entrance, 2 x w.c's and kitchen.
Natural light from the front elevation .
This unit is currently let at £33,800 per annum. There is potential that this unit could be delivered vacant as well.
Unit 3 - side unit 2996 sq.ft. approx plus 164 sq.ft. approx. store, set over ground and part first floor. The unit has w.c, disabled w.c, kitchen area.
The building has parking for 6 cars including 1 disabled bay, in a fenced car park to the rear of the building, accessed via a gated drive.
We believe the current building would suit offices, nursery, workshop, dark kitchen or other uses subject to the necessary planning consent.
Location
Set on Marconi Place within a mainly residential area close to the A1110 Arnos Grove and the A406, providing excellent links to Central London.
New Southgate Overground is a short distance away.
Business Rates
Rateable value - £22,500 1 Marconi Place and £13,750 3 Marconi Place (as taken from Gov.uk)
This is not the amount you will pay. The rateable value is used to calculate your rates bill.
Please refer to the Local Authority for more information on rates
Legal Costs
Each side to bear their own legal fees
Tenure
Freehold
EPC
Unit 1 - Energy Rating D 87
Unit 3 - Energy Rating B 48
Viewing
Via the owners sole agents PSS Commercial.
VAT
Property is VAT elected
Brochures
- 3 Marconi Place, Friern Barnet, London, N11
NEAREST STATIONS
Distances are straight line measurements from the centre of the postcode- Arnos Grove Station0.2 miles
- New Southgate Station0.3 miles
- Bounds Green Station0.9 miles
Notes
Disclaimer - Property reference 1765FH. The information displayed about this property comprises a property advertisement. Rightmove.co.uk makes no warranty as to the accuracy or completeness of the advertisement or any linked or associated information, and Rightmove has no control over the content. This property advertisement does not constitute property particulars. The information is provided and maintained by Paul Simon Seaton Commercial Estate Agents Ltd, London. Please contact the selling agent or developer directly to obtain any information which may be available under the terms of The Energy Performance of Buildings (Certificates and Inspections) (England and Wales) Regulations 2007 or the Home Report if in relation to a residential property in Scotland.
Map data ©OpenStreetMap contributors.






