
Rusper Road, Rusper, RH12

- PROPERTY TYPE
Detached
- BEDROOMS
5
- BATHROOMS
1
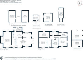
- SIZE
1,822 sq ft
169 sq m
- TENUREDescribes how you own a property. There are different types of tenure - freehold, leasehold, and commonhold.Read more about tenure in our glossary page.
Freehold
Key features
- Charming period farmhouse
- Character features
- Ample parking
- Plentiful outbuildings offering myriad uses
- Fantastic views
- Scope to further extend
- Opportunity for hobby agricultural farming & self-sufficiency
- Option to rent additional adjacent fields
- Total of over 2700 sq ft inclusive
- Services - Mains Water / Electricity
Description
Internally the house is well presented, with generous proportions and an adaptable layout, with additional scope to extend if required. The fabric of the building has been well maintained, with the electrics having been upgraded when the house was extended in the mid-90s complemented by recent recarpeting and redecoration. There is a wide, welcoming entrance hallway, to one side of which is the front-to-back living room, with its striking inglenook fireplace. To the other side is the dining room and family room beyond, whilst at the rear is a guest WC and adjacent utility with access out to the garden. The generous, kitchen-breakfast room which also opens into the family room, making the most of the garden views, has double doors out and switches back to the dining room in a sociable U-shape.
Upstairs the bedrooms are bright and well-sized, with a family bathroom with bath and separate shower cubicle. There is scope, if desired, to add a second bathroom by converting the smallest bedroom into an en-suite bathroom to create a principal bedroom “suite”. All the upstairs rooms have far-reaching views across the fields and tree-lined hedgerows, giving a true sense of being in the heart of the countryside, yet with the town easily reachable.
Outside
The garden wraps around the house on three sides with the largest portion to the south, next to the treeline and stream. A wide paved terrace runs along the back of the house and leads to the courtyard on the north side, where the triple car barn and granary are to be found. Beyond is a further fenced area containing the old piggery building, and the tree house, a tranquil retreat to escape to and enjoy the verdant views.
The agricultural paddock at the rear has been used as a vegetable garden and for housing machinery and has a covenant preventing use for livestock. However, there is the option to rent two adjacent fields from the neighbouring property. There is a large rainwater storage tank used for irrigation. The garden and paddock extend to 0.544 acres in total.
Situation
Horsham is a vibrant market town with great transport links, including direct rail services to London in under an hour from Horsham station. Charming Rusper village with its local shop and a choice of two pubs is just 1.6 miles away, and Horsham has a thriving restaurant and café scene, whilst the Carfax market every Thursday and Saturday offers a great choice of local produce, artisanal goods and street food. There are excellent schooling options, both state and public, including Bohunt School, Millais, Forest, Tanbridge, Collyers, Christ’s Hospital, Farlington and Rusper Primary village school.
Property Ref Number:
HAM-57211Additional Information
Local Authority - Horsham District Council.
Council Tax Band F.
Brochures
Brochure- COUNCIL TAXA payment made to your local authority in order to pay for local services like schools, libraries, and refuse collection. The amount you pay depends on the value of the property.Read more about council Tax in our glossary page.
- Band: F
- PARKINGDetails of how and where vehicles can be parked, and any associated costs.Read more about parking in our glossary page.
- Garage,Off street
- GARDENA property has access to an outdoor space, which could be private or shared.
- Private garden
- ACCESSIBILITYHow a property has been adapted to meet the needs of vulnerable or disabled individuals.Read more about accessibility in our glossary page.
- Ask agent
Rusper Road, Rusper, RH12
Add an important place to see how long it'd take to get there from our property listings.
__mins driving to your place
Get an instant, personalised result:
- Show sellers you’re serious
- Secure viewings faster with agents
- No impact on your credit score
Your mortgage
Notes
Staying secure when looking for property
Ensure you're up to date with our latest advice on how to avoid fraud or scams when looking for property online.
Visit our security centre to find out moreDisclaimer - Property reference a1nQ500000KqEWPIA3. The information displayed about this property comprises a property advertisement. Rightmove.co.uk makes no warranty as to the accuracy or completeness of the advertisement or any linked or associated information, and Rightmove has no control over the content. This property advertisement does not constitute property particulars. The information is provided and maintained by Hamptons, Horsham. Please contact the selling agent or developer directly to obtain any information which may be available under the terms of The Energy Performance of Buildings (Certificates and Inspections) (England and Wales) Regulations 2007 or the Home Report if in relation to a residential property in Scotland.
*This is the average speed from the provider with the fastest broadband package available at this postcode. The average speed displayed is based on the download speeds of at least 50% of customers at peak time (8pm to 10pm). Fibre/cable services at the postcode are subject to availability and may differ between properties within a postcode. Speeds can be affected by a range of technical and environmental factors. The speed at the property may be lower than that listed above. You can check the estimated speed and confirm availability to a property prior to purchasing on the broadband provider's website. Providers may increase charges. The information is provided and maintained by Decision Technologies Limited. **This is indicative only and based on a 2-person household with multiple devices and simultaneous usage. Broadband performance is affected by multiple factors including number of occupants and devices, simultaneous usage, router range etc. For more information speak to your broadband provider.
Map data ©OpenStreetMap contributors.








