
Brightwalton, Brightwalton, Newbury, RG20

- PROPERTY TYPE
Detached
- BEDROOMS
4
- BATHROOMS
2
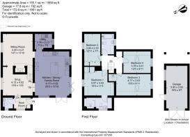
- SIZE
1,861 sq ft
173 sq m
- TENUREDescribes how you own a property. There are different types of tenure - freehold, leasehold, and commonhold.Read more about tenure in our glossary page.
Freehold
Key features
- Set within a popular village
- Wonderful surrounding countryside
- Well regarded village primary school
- Excellent road and rail links
- Selection of schools in the vicinity
- EPC Rating = D
Description
Description
A charming detached four bedroom thatched cottage which was largely rebuilt approximately fourteen years ago and recently extended. Great care has been taken to replicate the original character of the cottage, with the advantage of satisfying the efficiency and convenience requirements of modern day family life.
Beautifully presented throughout, on entering there is a thoughtfully planned boot room off which is a WC. The boot room leads into the snug and then the sitting room beyond, the latter having a fireplace with wood-burning stove. The wonderful kitchen/dining/family room has shaker style units and a central island, plus bi-fold doors out to the garden and an adjoining utility room.
The first floor offers four double bedrooms, with the principal bedroom having an en suite shower room, plus a family bathroom.
There is driveway parking in front of the detached garage for at least two cars. The pretty rear garden is mainly laid to lawn with flower beds and a paved dining area.
Location
The pretty village of Brightwalton lies nine miles north west of the market town of Newbury and is surrounded by open and undulating downland with many footpaths including the Ridgeway. The village offers a nursery and a church highly, a highly regarded primary school, with Downs secondary school at Compton. There is also a further wide selection of private schools in the area. Both market towns of Newbury and Wantage offer comprehensive shopping and leisure facilities. Communications in the area are excellent with the property being roughly equidistant between Junctions 13 and 14 of the M4 giving access to both central London and the West Country. There are also frequent trains to London from Didcot Parkway or Newbury mainline stations (Paddington).
Square Footage: 1,861 sq ft
Directions
Sat nav RG20 7BP
Additional Info
Mains electricity and water.
Private drainage - septic tank.
Oil fired central heating.
Gigaclear.
Photographs taken November 2023.
Thatch roof is fully fire boarded.
Brochures
Web DetailsParticulars- COUNCIL TAXA payment made to your local authority in order to pay for local services like schools, libraries, and refuse collection. The amount you pay depends on the value of the property.Read more about council Tax in our glossary page.
- Band: E
- PARKINGDetails of how and where vehicles can be parked, and any associated costs.Read more about parking in our glossary page.
- Yes
- GARDENA property has access to an outdoor space, which could be private or shared.
- Yes
- ACCESSIBILITYHow a property has been adapted to meet the needs of vulnerable or disabled individuals.Read more about accessibility in our glossary page.
- Ask agent
Brightwalton, Brightwalton, Newbury, RG20
Add an important place to see how long it'd take to get there from our property listings.
__mins driving to your place
Get an instant, personalised result:
- Show sellers you’re serious
- Secure viewings faster with agents
- No impact on your credit score
Affordability
Notes
Staying secure when looking for property
Ensure you're up to date with our latest advice on how to avoid fraud or scams when looking for property online.
Visit our security centre to find out moreDisclaimer - Property reference NES250091. The information displayed about this property comprises a property advertisement. Rightmove.co.uk makes no warranty as to the accuracy or completeness of the advertisement or any linked or associated information, and Rightmove has no control over the content. This property advertisement does not constitute property particulars. The information is provided and maintained by Savills, Newbury. Please contact the selling agent or developer directly to obtain any information which may be available under the terms of The Energy Performance of Buildings (Certificates and Inspections) (England and Wales) Regulations 2007 or the Home Report if in relation to a residential property in Scotland.
*This is the average speed from the provider with the fastest broadband package available at this postcode. The average speed displayed is based on the download speeds of at least 50% of customers at peak time (8pm to 10pm). Fibre/cable services at the postcode are subject to availability and may differ between properties within a postcode. Speeds can be affected by a range of technical and environmental factors. The speed at the property may be lower than that listed above. You can check the estimated speed and confirm availability to a property prior to purchasing on the broadband provider's website. Providers may increase charges. The information is provided and maintained by Decision Technologies Limited. **This is indicative only and based on a 2-person household with multiple devices and simultaneous usage. Broadband performance is affected by multiple factors including number of occupants and devices, simultaneous usage, router range etc. For more information speak to your broadband provider.
Map data ©OpenStreetMap contributors.





