
The Barton, Norton St Philip, BA2

- PROPERTY TYPE
Detached
- BEDROOMS
6
- BATHROOMS
6
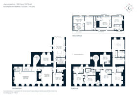
- SIZE
6,418 sq ft
596 sq m
- TENUREDescribes how you own a property. There are different types of tenure - freehold, leasehold, and commonhold.Read more about tenure in our glossary page.
Freehold
Key features
- Grade II Listed
- 6 Bedrooms
- 2 Bedroom Attic Annexe
- Enclosed Level Garden
- Plenty of Parking
- Desirable Village
Description
Outside
The entrance to Manor Farm is approached through an attractive low walled garden with two paths flanked by small neat lawns and bordered by an array of summer flowers and shrubs. The gravel driveway to the side provides parking as well as leading to a further walled area for parking as well as a vegetable garden. There is a pretty side garden with a gate out to the lane, if one wanted a private self-contained entrance to the inner hall and staircase up to the attic floor. The main garden to the rear is enclosed by dry stone walling providing the perfect backdrop for attractive herbaceous beds, which border the level lawn. The paved dining terrace is the perfect spot for summer dining being adjacent to the open plan kitchen with doors opening out to create an inside/outside flow.
Situation
Norton St Philip is an attractive and popular village situated approximately seven miles southeast of Bath. The village has the benefit of a variety of local amenities including a small supermarket, Norton St Philip Church of England First School and Pre-School. The stunning 13th Century Grade II Listed church with its adjacent Church Mead, a wonderful green space at the heart of Norton St Philip providing a play area and recreational ground including a cricket pitch for the village. There is also the choice of two country pubs, ‘The Fleur de Lys’ and ‘The George’, reputed to be the oldest coaching inn in England. Nearby is a popular farm shop and café, plus other amenities in nearby villages such as Beckington, Hinton Charterhouse and Wellow. Also within close proximity is the fashionable hotel, Babington House. The village is equidistance to the historic and vibrant city of Bath and fashionable Frome, both accessed by a regular bus service.
Property Ref Number:
HAM-9484Additional Information
Services: All mains connected.
Local Authority: Mendip District Council. Council Tax Bands: House G and Annexe B.
Brochures
Brochure- COUNCIL TAXA payment made to your local authority in order to pay for local services like schools, libraries, and refuse collection. The amount you pay depends on the value of the property.Read more about council Tax in our glossary page.
- Band: G
- PARKINGDetails of how and where vehicles can be parked, and any associated costs.Read more about parking in our glossary page.
- Off street
- GARDENA property has access to an outdoor space, which could be private or shared.
- Private garden
- ACCESSIBILITYHow a property has been adapted to meet the needs of vulnerable or disabled individuals.Read more about accessibility in our glossary page.
- Ask agent
Energy performance certificate - ask agent
The Barton, Norton St Philip, BA2
Add an important place to see how long it'd take to get there from our property listings.
__mins driving to your place
Get an instant, personalised result:
- Show sellers you’re serious
- Secure viewings faster with agents
- No impact on your credit score
Affordability
Notes
Staying secure when looking for property
Ensure you're up to date with our latest advice on how to avoid fraud or scams when looking for property online.
Visit our security centre to find out moreDisclaimer - Property reference a1n8d000000i8aiAAA. The information displayed about this property comprises a property advertisement. Rightmove.co.uk makes no warranty as to the accuracy or completeness of the advertisement or any linked or associated information, and Rightmove has no control over the content. This property advertisement does not constitute property particulars. The information is provided and maintained by Hamptons, Bath. Please contact the selling agent or developer directly to obtain any information which may be available under the terms of The Energy Performance of Buildings (Certificates and Inspections) (England and Wales) Regulations 2007 or the Home Report if in relation to a residential property in Scotland.
*This is the average speed from the provider with the fastest broadband package available at this postcode. The average speed displayed is based on the download speeds of at least 50% of customers at peak time (8pm to 10pm). Fibre/cable services at the postcode are subject to availability and may differ between properties within a postcode. Speeds can be affected by a range of technical and environmental factors. The speed at the property may be lower than that listed above. You can check the estimated speed and confirm availability to a property prior to purchasing on the broadband provider's website. Providers may increase charges. The information is provided and maintained by Decision Technologies Limited. **This is indicative only and based on a 2-person household with multiple devices and simultaneous usage. Broadband performance is affected by multiple factors including number of occupants and devices, simultaneous usage, router range etc. For more information speak to your broadband provider.
Map data ©OpenStreetMap contributors.








