Cortona, Arezzo, Tuscany, Italy
- PROPERTY TYPE
Farm House
- BEDROOMS
4
- BATHROOMS
4
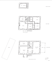
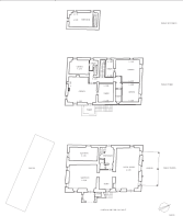
- SIZE
3,767 sq ft
350 sq m
Key features
- 4 en-suite bedrooms
- Magnificent kitchen
- Covered patio perfect for dining and relaxing zone
- Private fenced garden
- Annexe (120sqm)
- Fantastic warm and welcoming atmosphere, ready to live in
Description
From it's valley position, has the advantage of big sky views, sunsets that amaze, view to Cortona with easy access to all local amenities and transport connections.
Taking just a short drive from Pergo, this property is located in an ideal location as close to amenities, but still in the tranquility of the Cortona/Pergo countryside. The property is set within approximately 4800sqm of private fenced (wild boar proof) garden that has a covered double car port, large lawn area, fruit orchard, landscaped boxed flower beds and large 'orto' vegetable garden.
Within the grounds there is also an annexe, approximately 120sqm that is divided into three areas. Two store rooms and a converted room which is used as an entertaining dining area currently but can also be used as an office space/studio if do desired, there is already Wi-Fi connection there!
A utility/technical room of the house is accessed from the outside and houses the boiler, both gas and disposition for pellet boiler, water filtration system making the well water drinkable and the laundry facilities are also located in this space.
The main house has four double en-suite bedrooms on the first floor of the property with one bedroom having stairs that lead up to the 'tower room' that is very versatile in use, play/games room, extra sleeping area if and when needed, reading room or again a study/office space.
The main house has four double en-suite bedrooms on the first floor of the property with one bedroom having stairs that lead up to the 'tower room' that is very versatile in use, play/games room, extra sleeping area if and when needed, reading room or again a study/office space.
The ground floor has a warm and inviting atmosphere with a large formal living room with an hand restored original fireplace. There is a downstairs loo, entrance hall and a 'snug' area just off the large and open plan kitchen dining room.
The kitchen of the house is really the 'heart of the home' and has been beautifully designed with a 'Carrara' marble top central island, with large gas hob and second chef's sink. The kitchen is fully equipped for all modern needs: including a wine fridge, and has a corner pantry cupboard too.
The french doors from the kitchen lead to the large covered patio area, that has a table for 'al fresco dining' and a relaxing area. A real addition to the house.
The dining area has the wood burning stove that supplies heat during the cooler months and access through large glass doors to the garden and swimming pool beyond.
This house is in perfect condition and ready to move in to. There is air conditioning through out, well water and internet connection.
Located in the highly sort after area of Pergo, this house is a true gem!
Cortona, Arezzo, Tuscany, Italy
NEAREST AIRPORTS
Distances are straight line measurements- Florence(International)56.1 miles
- Galileo(International)86.2 miles
- Marina di Campo(International)95.7 miles
- Borgo Panigale(International)96.1 miles
Advice on buying Italian property
Learn everything you need to know to successfully find and buy a property in Italy.
Notes
This is a property advertisement provided and maintained by Cortona International, Arezzo (reference Ci577) and does not constitute property particulars. Whilst we require advertisers to act with best practice and provide accurate information, we can only publish advertisements in good faith and have not verified any claims or statements or inspected any of the properties, locations or opportunities promoted. Rightmove does not own or control and is not responsible for the properties, opportunities, website content, products or services provided or promoted by third parties and makes no warranties or representations as to the accuracy, completeness, legality, performance or suitability of any of the foregoing. We therefore accept no liability arising from any reliance made by any reader or person to whom this information is made available to. You must perform your own research and seek independent professional advice before making any decision to purchase or invest in overseas property.






