Daniels Gate, Long Sutton, PE12 9DP

- PROPERTY TYPE
Detached
- BEDROOMS
2
- BATHROOMS
1
- SIZE
Ask agent
- TENUREDescribes how you own a property. There are different types of tenure - freehold, leasehold, and commonhold.Read more about tenure in our glossary page.
Ask agent
Key features
- Character detached cottage with typical cottage features such as low/sloped/beamed ceilings & doorways.
- Convenient for nearby town amenities.
- 2 Bedrooms.
- 3 Reception rooms (lounge, dining room & study/utility).
- Upstairs bathroom with white suite.
- Majority upvc double glazing.
- Electric heating plus feature dual sided log/multi fuel burner to the lounge & dining rooms.
- Driveway giving off road parking with double gates to the rear garden & further driveway area plus EV charging point.
- Enclosed rear garden with lawn and patio features.
- Available with no upward chain. Viewing a must!
Description
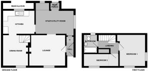
ACCOMMODATION COMPRISES:
Porch canopy over upvc double glazed front entrance door into:
ENTRANCE HALL:
Built in storage cupboard. Tiled floor.
LOUNGE: 12'10 x 10'3 (3.92m x 3.34m) min
Upvc double glazed window to the front. Wood beams to ceiling. 2 Wall lighting points. Feature dual opening fireplace between the lounge and dining room with inset multi-fuel/log burner and wooden beam mantle. Radiator.
STUDY/UTILITY ROOM: 13'10 x 7'1 (4.23m x 2.17m)
Dual aspect with upvc double glazed windows to the side and rear. Recess area with work top and space beneath for washing machine and tumble dryer. Radiator. Opening to:
REAR PORCH:
Upvc double glazed door to the rear.
KITCHEN: 10'5 x 6'8 (3.19m x 2.05m)
Upvc glazed window to the rear. Wood beams to ceiling. Fitted base units with work tops over and matching wall units. Inset stainless steel sink and drainer with mixer tap. Space for oven and tall fridge/freezer.
DINING ROOM: 12'4 x 7'8 (3.78m x 2.34m) min
Upvc double glazed window to the front. Wood beams to ceiling. Feature dual opening fireplace between the lounge and dining room with inset multi-fuel/log burner and wooden beam mantle. 2 Wall lighting points. Tiled floor. Stairs to the first floor.
FIRST FLOOR LANDING:
Galleried banister rail. Wall lighting point.
BEDROOM 1: 12'9 x 9'2 (3.89m x 2.80m) min *Sloped ceiling.
Dual aspect with upvc double glazed windows to the front and side. Part wooden paneling to walls. Air conditioning unit. Electric heater. Wall lighting point.
BEDROOM 2: 12'0 x 5'3 (3.67m x 1.61m) *Sloped ceiling.
Upvc double glazed window to the front. Electric heater. Wall lighting point.
BATHROOM: *Sloped ceiling.
Wooden glazed window to the rear. Fitted white suite comprising wc, hand basin and paneled bath with shower mixer tap. Part tiled walls. Electric heater. Wall lighting point.
OUTSIDE:
FRONT:
Gravel driveway providing off road parking to the side of the property with electric vehicle charging point. Double wooden gates and further tall hand gate giving access to the rear. Low walls to the front and side boundaries with inset gravel area and flower bed border across the front. Outside lighting.
REAR:
Enclosed by wooden fencing. Gravel driveway continues through the double gates to provide additional off road parking area plus further gravel patio area to the rear of the property. Small alcove area integrated into the back of the property. Lawned main garden area with wooden sleeper edging and raised wooden sleeper bedding areas. Further paved patio area. Gravel pathway with inset mature cherry tree leading to the garden shed. Outside lighting. Outside tap.
SERVICES:
Mains water & electricity. Private drainage. South Holland District Council tax band B.
DIRECTIONS:
From the A17/A1101 roundabout take the Long Sutton/Wisbech Road exit and at the next junction turn left into Long Sutton. Follow Bridge Road through (passing the town centre market place), the road becoming Market Street, turn right into Park Lane. Turn left into Daniels Gate where the property can be located on your right hand side.
DISCLAIMER:
1. Whilst we endeavour to make our sales particulars fair, accurate and reliable, they are only a general guide to the property and have been prepared in good faith, these do not form any part of any offer or contract nor may they be regarded as statements of representation of fact.
2. Phoenix Estate Agents (East) Ltd have not carried out a detailed survey, nor tested the services, appliances or fixtures and fittings. Accordingly, we strongly advise prospective purchasers to make their own enquiries and/or commission their own survey or service reports from their solicitor, surveyor or relevant certified contractor regarding any particular points of interest before finalising their offer to purchase. No guarantee can be given with regard to planning permissions.
3. All measurements or distances given are approximate only and for general guidance. Any floor plans provided may not be to scale and may have been provided by a third party. These must not be relied upon or taken as accurate. Purchasers must satisfy themselves in this respect.
4. Neither Phoenix Estate Agents (East) Ltd or any person in the employment of Phoenix Estate Agents (East) Ltd has the authority to make or give representation or warranty in respect of this property. Any interested parties must satisfy themselves by inspection or otherwise as to the correctness of any information given. Interested Parties are advised to check availability and make an appointment to view before travelling to see a property.
5. Referral fee disclosure: As well as your obligation to pay our commission or fees we may also receive a commission, payment or other reward known as a referral fee from ancillary service providers for recommending their service to you. We routinely refer sellers and purchasers to MCP Solicitors & Ward Gethin Archer Solicitors. It is your decision whether you choose to deal with either of these firms. Should you decide to use any of these firms you should know that we would receive a referral fee of up to £100 from them for recommending you to them.
- COUNCIL TAXA payment made to your local authority in order to pay for local services like schools, libraries, and refuse collection. The amount you pay depends on the value of the property.Read more about council Tax in our glossary page.
- Ask agent
- PARKINGDetails of how and where vehicles can be parked, and any associated costs.Read more about parking in our glossary page.
- Driveway,Off street,Gated,EV charging,Private
- GARDENA property has access to an outdoor space, which could be private or shared.
- Yes
- ACCESSIBILITYHow a property has been adapted to meet the needs of vulnerable or disabled individuals.Read more about accessibility in our glossary page.
- Ask agent
Daniels Gate, Long Sutton, PE12 9DP
Add an important place to see how long it'd take to get there from our property listings.
__mins driving to your place
Get an instant, personalised result:
- Show sellers you’re serious
- Secure viewings faster with agents
- No impact on your credit score
Your mortgage
Notes
Staying secure when looking for property
Ensure you're up to date with our latest advice on how to avoid fraud or scams when looking for property online.
Visit our security centre to find out moreDisclaimer - Property reference PH0973. The information displayed about this property comprises a property advertisement. Rightmove.co.uk makes no warranty as to the accuracy or completeness of the advertisement or any linked or associated information, and Rightmove has no control over the content. This property advertisement does not constitute property particulars. The information is provided and maintained by Phoenix, Sutton Bridge. Please contact the selling agent or developer directly to obtain any information which may be available under the terms of The Energy Performance of Buildings (Certificates and Inspections) (England and Wales) Regulations 2007 or the Home Report if in relation to a residential property in Scotland.
*This is the average speed from the provider with the fastest broadband package available at this postcode. The average speed displayed is based on the download speeds of at least 50% of customers at peak time (8pm to 10pm). Fibre/cable services at the postcode are subject to availability and may differ between properties within a postcode. Speeds can be affected by a range of technical and environmental factors. The speed at the property may be lower than that listed above. You can check the estimated speed and confirm availability to a property prior to purchasing on the broadband provider's website. Providers may increase charges. The information is provided and maintained by Decision Technologies Limited. **This is indicative only and based on a 2-person household with multiple devices and simultaneous usage. Broadband performance is affected by multiple factors including number of occupants and devices, simultaneous usage, router range etc. For more information speak to your broadband provider.
Map data ©OpenStreetMap contributors.







