3 bedroom detached house for sale
Avondale, 110 Main Street, Tomintoul,

- PROPERTY TYPE
Detached
- BEDROOMS
3
- BATHROOMS
2
- SIZE
Ask agent
- TENUREDescribes how you own a property. There are different types of tenure - freehold, leasehold, and commonhold.Read more about tenure in our glossary page.
Freehold
Key features
- What3Words: ///civil.laser.reverted
- Home Report available From massoncairns.com
- Beautifully Presented Cottage
- Kitchen / Dining / Sitting Area With Wood Burning Stove
- Vaulted Lounge
- Stylish Bathroom
- Separate WC
- Garden With Large Shed and Off Street Parking
- Cairngorms National Park Village Location
- Viewing Highly Recommended
Description
To obtain a copy of the home report, please visit our website massoncairns.com where an online copy is available to download.
Tomintoul - Tomintoul is the Eastern Gateway to the Cairngorms National Park and has the reputation of being the highest village in the Highlands at 1165 ft (350m) centred round a picturesque square and situated near the Lecht Ski Resort Centre on the scenic route between Grantown on Spey and Royal Deeside. It is the largest village in the Glenlivet area supporting B&B's, a post office and general stores, art studios, craft, gift and malt whisky shops.
Tomintoul also has its own distillery, "the Tomintoul", which made the Guinness Book of Records for producing "The Largest Bottle of Scotch Whisky in The World" - at 105.3 litres. There are also three more stills, "The Tamnavulin", "The Braeval" and "The Glenlivet" within a few miles.
The area is surrounded by the mountain ranges of the Cromdales, the Ladder Hills and the Cairngorms, facilitating spectacular views, walks and other outdoor pursuits, including wildlife appreciation, salmon and trout fishing on the nearby River Avon, mountain biking on many trails and nearby bike Glenlivet and hill walking a plenty.
The nearby Lecht Ski Centre 2090 provides winter sports and in the summer has quad biking and go-carts.
Transport Links - Located in the heart of the Highlands, Tomintoul offers a number of convenient travel options for local, regional, and international travel.
Road: Tomintoul is well-connected via road with the A939, a major scenic route running through Speyside, providing easy access to both Aberdeen to the east and Inverness to the north.
Air: The nearest airports are Inverness Airport (approximately 43 miles away) and Aberdeen International Airport (approximately 56 miles away), offering both domestic and international flights.
Rail: The nearest railway station is Aviemore (around 27 miles away), which is on the main line from Inverness to London, providing connections to major cities across the UK.
Public Transport: There are regular bus services that run through Glenlivet connecting it to neighbouring towns and villages.
For schooling, Tomintoul falls within the Moray Council area, which provides a comprehensive education system. Primary education is available at Tomintoul Primary School, a small but well-regarded school located right in Tomintoul. For secondary education, pupils typically attend Speyside High School in Aberlour, which is approximately 21 miles away and offers a broad curriculum.
For further education, the University of the Highlands and Islands offers a range of courses and has several campuses throughout the Highlands, with the nearest being in Elgin and Inverness. Other universities in Aberdeen and Dundee are available.
Home Report - To obtain a copy of the home report, please visit our website massoncairns.com where an online copy is available to download.
EPC Rating F
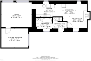
Entrance Hall - The welcoming entrance hall enjoys laminate wood flooring and doors lead to the sitting / dining / kitchen and bathroom whilst stairs lead up to the first floor accommodation. There is a coat rail and recessed down lighting.
Sitting Room / Kitchen / Dining - 13'7" x 12'5" / 13'11" x 6'7" / 6'5" x 6'5" - This inviting, open-plan layout combines the sitting room, dining area, and kitchen, creating a sociable space perfect for gatherings. The sitting room is bathed in natural light from windows on both the front and back, with a striking inglenook stone fireplace and a high-quality Morso wood-burning stove serving as cosy focal points. The dining area offers room for a table and chairs, ideal for hosting, and flows into the kitchen, which is equipped with a variety of base, wall, and drawer units topped with complementary countertops and tiled backsplashes. Additional features include a window overlooking the hills, under-counter mood lighting, an integrated oven with a gas hob and an illuminated extractor fan, and an inset sink with drainer. There's also an integrated wine rack, plumbing for a washing machine, and space for a tumble dryer. A further door from the kitchen opens into the lounge area.
Lounge - 4.75m x 3.88m (15'7" x 12'8") - This spacious lounge is highlighted by a vaulted ceiling and two large windows on the side of the house, offering views of the surrounding hills and countryside while filling the room with natural light. One end of the room showcases an exposed stone wall featuring recessed and display shelving, with additional display space provided by a high-level shelf. The room is finished with carpet flooring and ceiling lighting, and another door opens into the principal bedroom.
Principal Bedroom - 4.20m x 3.00m (13'9" x 9'10") - This spacious double bedroom features a vaulted ceiling and large double windows, creating a cosy and well-lit retreat. It is comfortably outfitted with carpet flooring and ceiling lighting.
Bathroom - 2.56m x 1.71m (8'4" x 5'7") - This modern and stylish space features an opaque window at the front, enhancing privacy. It includes a three-piece bathroom suite in white, consisting of a dual flush toilet, a pedestal wash hand basin with a chrome mixer tap, and a bath complemented by a chrome mixer tap and a shower with a glazed screen, all surrounded by wet wall panels. Additional features include a mirror, a display shelf, and a shaver socket. The room is finished with vinyl tile-effect flooring and recessed downlighting.
Landing - The landing is illuminated by a Velux window at the front of the house, bringing in abundant natural light, complemented by ceiling lighting. Doors lead off to both bedrooms and the WC. It features stripped wood flooring and a spacious area for displays, enhancing the welcoming atmosphere of the space.
Bedroom Two - 2.59m x 3.77m (8'5" x 12'4") - This bright double bedroom features stripped wood flooring and recessed downlighting, complemented by a dormer window at the front of the property that floods the space with natural light.
Bedroom Three - 2.66m x 3.86m (8'8" x 12'7") - This double bedroom is adorned with stripped wood flooring and ceiling lighting, featuring a window at the front that bathes the space in natural light.
Wc - 1.84m x 1.53m (6'0" x 5'0") - This spacious cloakroom caters to the first-floor bedrooms, featuring a toilet and a wash hand basin with twin taps, complemented by a splashback. A rear window offers expansive views, and the room is finished with stripped wood flooring and recessed downlighting. Additionally, it includes a large storage cupboard.
Outside - The property boasts gravel off-street parking with double gated access, and an additional gate opens to the beautifully kept gardens. These outdoor spaces feature a level lawn, mature trees, and several seating areas, making them perfect for entertaining and al fresco dining. The entire area is enclosed by a mix of timber, post, and wire fencing. Additionally, there is a large insulated timber storage shed (3.4m x 1.6m), a further timber storage shed and a gas storage tank.
Services - It is understood that there is mains water, drainage and electricity. There is gas fired central heating.
Entry - By mutual agreement.
Fixed Price - Fixed Price of £210,000
Viewings And Offers - Viewing is strictly by arrangement with and all offers to be submitted to:-Masson Cairns
Strathspey House
Grantown on Spey
Moray
PH26 3EQ
Tel:
Fax:
Email:
Brochures
Avondale, 110 Main Street, Tomintoul, HOME REPORT- COUNCIL TAXA payment made to your local authority in order to pay for local services like schools, libraries, and refuse collection. The amount you pay depends on the value of the property.Read more about council Tax in our glossary page.
- Band: B
- PARKINGDetails of how and where vehicles can be parked, and any associated costs.Read more about parking in our glossary page.
- Yes
- GARDENA property has access to an outdoor space, which could be private or shared.
- Yes
- ACCESSIBILITYHow a property has been adapted to meet the needs of vulnerable or disabled individuals.Read more about accessibility in our glossary page.
- Ask agent
Avondale, 110 Main Street, Tomintoul,
Add an important place to see how long it'd take to get there from our property listings.
__mins driving to your place
Get an instant, personalised result:
- Show sellers you’re serious
- Secure viewings faster with agents
- No impact on your credit score
Your mortgage
Notes
Staying secure when looking for property
Ensure you're up to date with our latest advice on how to avoid fraud or scams when looking for property online.
Visit our security centre to find out moreDisclaimer - Property reference 33894024. The information displayed about this property comprises a property advertisement. Rightmove.co.uk makes no warranty as to the accuracy or completeness of the advertisement or any linked or associated information, and Rightmove has no control over the content. This property advertisement does not constitute property particulars. The information is provided and maintained by Masson Cairns, Grantown on Spey. Please contact the selling agent or developer directly to obtain any information which may be available under the terms of The Energy Performance of Buildings (Certificates and Inspections) (England and Wales) Regulations 2007 or the Home Report if in relation to a residential property in Scotland.
*This is the average speed from the provider with the fastest broadband package available at this postcode. The average speed displayed is based on the download speeds of at least 50% of customers at peak time (8pm to 10pm). Fibre/cable services at the postcode are subject to availability and may differ between properties within a postcode. Speeds can be affected by a range of technical and environmental factors. The speed at the property may be lower than that listed above. You can check the estimated speed and confirm availability to a property prior to purchasing on the broadband provider's website. Providers may increase charges. The information is provided and maintained by Decision Technologies Limited. **This is indicative only and based on a 2-person household with multiple devices and simultaneous usage. Broadband performance is affected by multiple factors including number of occupants and devices, simultaneous usage, router range etc. For more information speak to your broadband provider.
Map data ©OpenStreetMap contributors.





