
Building Plot at East Harptree
- PROPERTY TYPE
Land
- SIZE
8,276 sq ft
769 sq m
Key features
- Planning permission to create attractive dwelling
- Popular village with good range of facilities
- Within the Chew Valley
- Close to Bristol, Bath and Wells
Description
Introduction.
A unique opportunity to purchase a plot of land with full planning permission to erect a three-bedroom dwelling of about 1,200 sq.ft. set in a plot extending to about 0.19 acres. The property is situated in the popular village of East Harptree, within the Mendip Hills National Landscape and the Chew Valley. The property is opposite the recreation field and within walking distance of the centre of the village (400m) and the village hall, public house and primary school. Further amenities can be found in the neighbouring villages of West Harptree and Bishop Sutton as well as Chew Magna. Bristol (14 miles), Bath (15.8 miles) and Wells (6 miles) are easily accessible.
The property is ideally suited to those wishing to build their own home in the heart of the Chew Valley. The village is in an area where recreational opportunities abound with excellent walking and cycling routes readily accessible. Schooling in the area is excellent for both state and private education. Within the village is a primary school and pre-school. East Harptree is in the catchment of Chew Valley Secondary School and there are many notable private schools in the area.
Planning.
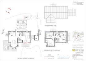
Full planning permission was granted in April 2025 (ref 24/00010/FUL) for the erection of three-bedroom detached house with on-site parking and the provision of gardens. The accommodation proposed to be provided comprises: Entrance Hall, Kitchen/Dining Room, Cloakroom, Sitting Room, Master Bedroom with En-suite Bathroom, Two Further Bedrooms, Family Bathroom.
Services.
It is understood there are readily available electricity, water and drainage supplies in the locality
Tenure.
Freehold with vacant possession.
Boundaries.
The ownership of the boundaries is in accordance with the custom of the country. The purchaser shall have full knowledge of the boundaries.
Viewings.
Potential buyers may view the plot at their convenience showing the normal courtesies or by by appointment with the selling agents, Killens
Local Authorities.
Bath and North East Somerset Council
Rights of Way, Easements etc.
The land is not crossed by a footpath or any other rights of way. It is believed that the property is not affected by any other similar matters. The property is sold however subject to all rights including rights of way whether public or private, light, support, drainage, water and electricity supplies and other rights, covenants, agreements and all existing and proposed wayleaves, masts, pylons, stays, cables, drains and water, gas or other pipes whether referred to in these particulars or not.
Agents Notes.
No uplift clause or restrictive covenants will be applicable. The purchase price is not subject to VAT.
What3words.
///mattress.hidden.radically
Building Plot at East Harptree
NEAREST STATIONS
Distances are straight line measurements from the centre of the postcode- Parson Street Station8.9 miles
Notes
Disclaimer - Property reference AUC250014. The information displayed about this property comprises a property advertisement. Rightmove.co.uk makes no warranty as to the accuracy or completeness of the advertisement or any linked or associated information, and Rightmove has no control over the content. This property advertisement does not constitute property particulars. The information is provided and maintained by Killens, Chew Magna. Please contact the selling agent or developer directly to obtain any information which may be available under the terms of The Energy Performance of Buildings (Certificates and Inspections) (England and Wales) Regulations 2007 or the Home Report if in relation to a residential property in Scotland.
Map data ©OpenStreetMap contributors.








