Church Walk, London, N16

- PROPERTY TYPE
House
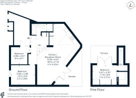
- BEDROOMS
3
- BATHROOMS
2
- SIZE
954 sq ft
89 sq m
Key features
- Three bedrooms
- Double-height living
- AEG kitchen
- Claybrook bathrooms
- Private courtyard
- 10m² roof terrace
- Douglas Fir finishes
- Sustainable features
- High-quality materials
- Award-winning design
Description
The home features a stepped, ziggurat form that maximises light and preserves privacy. At its core is a double-height family room with triangular rooflights, creating a bright, airy space. The living areas face the street to encourage natural surveillance, while the rear ‘concertina’ elevation prevents overlooking.
Inside, the property boasts Douglas Fir by Dinesen flooring and bespoke Velfac windows. The kitchen includes a full stainless steel worktop and AEG appliances, while the bathrooms are finished with tiles from Claybrook. Outdoor spaces include a private courtyard garden and a 10m² roof terrace with wildflower plantings.
Sustainability is prioritised with zonal underfloor heating, a Zehnder heat recovery system, and LED lighting throughout, ensuring both comfort and energy efficiency. This home embodies thoughtful design, sustainability, and a commitment to neighbourly living.
Situation
Located in the vibrant Stoke Newington, Hackney, this home offers a perfect mix of urban convenience and community charm. Just a short walk from Clissold Park, the area is known for its independent cafes, boutiques, and green spaces. The bustling Church Street is a highlight, lined with an array of unique shops, lively restaurants, and inviting pubs, making it a true hub of local culture. Excellent transport links, including Stoke Newington and Dalston Junction stations, along with bus routes (73, 149, 276, 106, 393, 67), provide easy access to central London.
Property Ref Number:
HAM-58038- COUNCIL TAXA payment made to your local authority in order to pay for local services like schools, libraries, and refuse collection. The amount you pay depends on the value of the property.Read more about council Tax in our glossary page.
- Band: D
- PARKINGDetails of how and where vehicles can be parked, and any associated costs.Read more about parking in our glossary page.
- Ask agent
- GARDENA property has access to an outdoor space, which could be private or shared.
- Yes
- ACCESSIBILITYHow a property has been adapted to meet the needs of vulnerable or disabled individuals.Read more about accessibility in our glossary page.
- Ask agent
Energy performance certificate - ask agent
Church Walk, London, N16
Add an important place to see how long it'd take to get there from our property listings.
__mins driving to your place
Get an instant, personalised result:
- Show sellers you’re serious
- Secure viewings faster with agents
- No impact on your credit score
Your mortgage
Notes
Staying secure when looking for property
Ensure you're up to date with our latest advice on how to avoid fraud or scams when looking for property online.
Visit our security centre to find out moreDisclaimer - Property reference a1nQ500000M7TztIAF. The information displayed about this property comprises a property advertisement. Rightmove.co.uk makes no warranty as to the accuracy or completeness of the advertisement or any linked or associated information, and Rightmove has no control over the content. This property advertisement does not constitute property particulars. The information is provided and maintained by Hamptons, Islington. Please contact the selling agent or developer directly to obtain any information which may be available under the terms of The Energy Performance of Buildings (Certificates and Inspections) (England and Wales) Regulations 2007 or the Home Report if in relation to a residential property in Scotland.
*This is the average speed from the provider with the fastest broadband package available at this postcode. The average speed displayed is based on the download speeds of at least 50% of customers at peak time (8pm to 10pm). Fibre/cable services at the postcode are subject to availability and may differ between properties within a postcode. Speeds can be affected by a range of technical and environmental factors. The speed at the property may be lower than that listed above. You can check the estimated speed and confirm availability to a property prior to purchasing on the broadband provider's website. Providers may increase charges. The information is provided and maintained by Decision Technologies Limited. **This is indicative only and based on a 2-person household with multiple devices and simultaneous usage. Broadband performance is affected by multiple factors including number of occupants and devices, simultaneous usage, router range etc. For more information speak to your broadband provider.
Map data ©OpenStreetMap contributors.







