Land for sale
Walworth Road, Picket Piece, Andover
- PROPERTY TYPE
Land
- SIZE
7,507 sq ft
697 sq m
Key features
- Exciting residential development opportunity (subject to planning).
- Total land amounting to 2.079 acres
- Existing commercial building of 7,506.7 sq ft
- Permission to provide an additional 16,066 sq ft
- Located in an area of considerable residential development
- Close to amenities
- Excellent road links
Description
There is an existing commercial building of 7,506.7 sq ft (697.40 sq m) with planning permission to provide an additional 16,066 sq ft (1,492.60 sq m).
Location -
The New Barn is situated on the Walworth Road on the eastern end of Picket Piece. The Walworth Industrial Estate is close by although the area is predominantly residential with a considerable amount of new homes constructed in the last 10 years. Andover benefits from an excellent road communication with the A303 linking to the M3 motorway and the A34 trunk road providing access to London, the Midlands and the North, and also to Southampton. The A303 also provides access to the South West.
Planning -
The property is located within Picket Piece where there has been significant residential development in recent years.
Interested parties should satisfy themselves as to the suitability of their proposed use. All enquiries should be directed to Test Valley Borough Council.
Description -
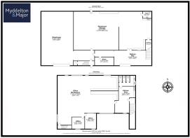
A detached building constructed of steel framed elevations standing in 2.079 acres and arranged over two floors. The ground floor comprises warehouse storage areas which are currently divided into 3 sections. There is also a store, delivery bay and WC. The first floor comprises an excellent office space with two self contained offices, a kitchen area and a large cloakroom. Outside there is planning permission for an additional 16,066 sq ft (1,492.60 sq m) of warehouse buildings. There remains ample car parking and space for open storage.
Total area of 2.079 acres.
Industrial Warehouse/Office of 7,506.7 sq ft.
Permission to provide an additional 16,066 sq ft.
Ample parking and open storage.
Brochures
The New Barn, Andover - ParticularsWalworth Road, Picket Piece, Andover
NEAREST STATIONS
Distances are straight line measurements from the centre of the postcode- Andover Station2.7 miles
- Whitchurch (Hants.) Station4.2 miles
Notes
Disclaimer - Property reference 33907323. The information displayed about this property comprises a property advertisement. Rightmove.co.uk makes no warranty as to the accuracy or completeness of the advertisement or any linked or associated information, and Rightmove has no control over the content. This property advertisement does not constitute property particulars. The information is provided and maintained by Myddelton & Major, Stockbridge. Please contact the selling agent or developer directly to obtain any information which may be available under the terms of The Energy Performance of Buildings (Certificates and Inspections) (England and Wales) Regulations 2007 or the Home Report if in relation to a residential property in Scotland.
Map data ©OpenStreetMap contributors.





