Bay View Park, St Austell, PL25

- PROPERTY TYPE
 Detached
- BEDROOMS
 6
- BATHROOMS
 2
- SIZE
 2,239 sq ft
208 sq m
- TENUREDescribes how you own a property. There are different types of tenure - freehold, leasehold, and commonhold.Read more about tenure in our glossary page.
 Freehold
Key features
- Spacious Detached Residence
 - 5/6 Bedrooms
 - Double Glazing Installed Oct 2022
 - New Gas Boiler Installed Oct 2022
 - Parking For Multiple Cars & Double Garage
 - Fitted Kitchen/Breakfast Room
 - Galleried Landing
 - Master Bedroom With En-Suite
 - Family Bathroom
 - Private Sunny Rear Garden
 
Description
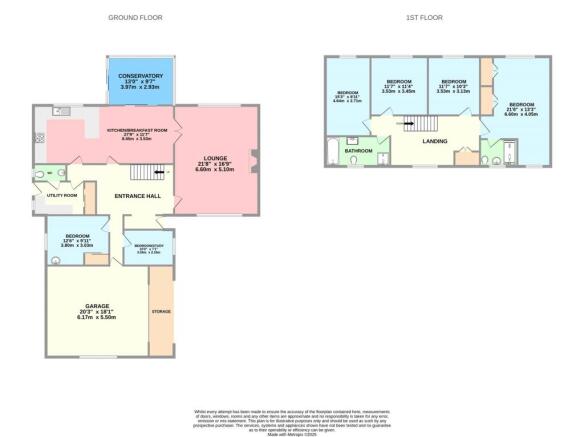
The spacious interior is bathed in natural light, creating a warm and inviting atmosphere throughout. The large entrance hallway has wood flooring flowing through the ground floor with stairs rising to the first floor and connecting door to the double garage, the lounge has a dual aspect, feature fireplace housing a gas fire and glazed double access the kitchen/diner. The well-appointed kitchen is perfect for culinary enthusiasts, fitted with a range of white fronted base and wall units, worktops with inset stainless steel sink unit, space for range cooker with hood above, plumbing for dishwasher, space for fridge/freezer and a breakfast bar.
Additionally, there is a good-sized conservatory, which is perfect for enjoying a morning coffee whilst looking across the garden.
The ground floor accommodation is completed by the study/bedroom 6, double bedroom, utility room and separate w/c.
To the first floor the large galleried landing provides access to the four double bedrooms, the generous master bedroom has two double, built in wardrobes, elevated views towards the bay and a modern en-suite shower room. The internal accommodation is completed by the family bathroom which has a modern suite with walk in double shower, bath, low level w/c, heated towel rail and wash hand basin.
Externally there is large hard standing driveway with space for multiple cars/camper van to the front of the property and garage, the sunny rear garden has been landscaped to provide a paved seating area with steps leading to a manicured lawn bordering flowerbeds with mature shrubs and trees.
The property's prime location ensures easy access to local amenities, schools, and transport links, making it an ideal choice for families and professionals alike. Don't miss out on the opportunity to make this perfect house for blended family or multi-generation living your new home.
AGENTS INFORMATION
SERVICES
Mains gas, water, drainage, electric.
Council Tax Band E
Brochures
Particulars- COUNCIL TAXA payment made to your local authority in order to pay for local services like schools, libraries, and refuse collection. The amount you pay depends on the value of the property.Read more about council Tax in our glossary page.
 - Band: E
 - PARKINGDetails of how and where vehicles can be parked, and any associated costs.Read more about parking in our glossary page.
 - Yes
 - GARDENA property has access to an outdoor space, which could be private or shared.
 - Yes
 - ACCESSIBILITYHow a property has been adapted to meet the needs of vulnerable or disabled individuals.Read more about accessibility in our glossary page.
 - Ask agent
 
Bay View Park, St Austell, PL25
Add an important place to see how long it'd take to get there from our property listings.
__mins driving to your place
Get an instant, personalised result:
- Show sellers you’re serious
 - Secure viewings faster with agents
 - No impact on your credit score
 
Your mortgage
Notes
Staying secure when looking for property
Ensure you're up to date with our latest advice on how to avoid fraud or scams when looking for property online.
Visit our security centre to find out moreDisclaimer - Property reference FAP250028. The information displayed about this property comprises a property advertisement. Rightmove.co.uk makes no warranty as to the accuracy or completeness of the advertisement or any linked or associated information, and Rightmove has no control over the content. This property advertisement does not constitute property particulars. The information is provided and maintained by Ocean & Country, Par. Please contact the selling agent or developer directly to obtain any information which may be available under the terms of The Energy Performance of Buildings (Certificates and Inspections) (England and Wales) Regulations 2007 or the Home Report if in relation to a residential property in Scotland.
*This is the average speed from the provider with the fastest broadband package available at this postcode. The average speed displayed is based on the download speeds of at least 50% of customers at peak time (8pm to 10pm). Fibre/cable services at the postcode are subject to availability and may differ between properties within a postcode. Speeds can be affected by a range of technical and environmental factors. The speed at the property may be lower than that listed above. You can check the estimated speed and confirm availability to a property prior to purchasing on the broadband provider's website. Providers may increase charges. The information is provided and maintained by Decision Technologies Limited. **This is indicative only and based on a 2-person household with multiple devices and simultaneous usage. Broadband performance is affected by multiple factors including number of occupants and devices, simultaneous usage, router range etc. For more information speak to your broadband provider.
Map data ©OpenStreetMap contributors.




