
Otley Road, Headingley

- BEDROOMS
4
- BATHROOMS
1
- SIZE
1,034 sq ft
96 sq m
- TENUREDescribes how you own a property. There are different types of tenure - freehold, leasehold, and commonhold.Read more about tenure in our glossary page.
Freehold
Key features
- PRIME MIXED-USE INVESTMENT PROPERTY
- TOTAL INCOME: CIRCA £37,000 PER ANNUM
- YIELD 8%
- GROUND FLOOR COMMERCIAL UNIT
- FIRST & SECOND FLOOR RESIDENTIAL ACCOMMODATION
- CENTRAL HEADINGLEY LOCATION
Description
Location: 109 Otley Road, Headingley, Leeds, West Yorkshire LS6
Asking Price: £479,000
Total Income: Circa £37,000 per annum
Yield: 8%
An exceptional opportunity to acquire a fully let mixed-use investment property situated on one of Leeds’ busiest arterial routes, Otley Road, in the heart of vibrant and ever-popular Headingley. This period property is set amongst a thriving parade of shops, bars, cafés, and restaurants, benefitting from extremely high footfall and excellent public transport links.
EPC: Band D
Council Tax: Band B.
An exceptional opportunity to acquire a fully let mixed-use investment property situated on one of Leeds’ busiest arterial routes, Otley Road, in the heart of vibrant and ever-popular Headingley. This period property is set amongst a thriving parade of shops, bars, cafés, and restaurants, benefitting from extremely high footfall and excellent public transport links.
Investment Overview
•
Ground Floor Commercial Unit
Currently let to a well-established barbershop, producing an annual rental income of £16,000 with potential in March 2026 to significantly increase this rent as there is a renewal / rent review due, increasing your yield soon after the outset of your investment. The unit enjoys prominent frontage onto Otley Road and consistent foot traffic.
•
First and Second Floor Residential Accommodation
Accessed via a private rear entrance, the upper floors comprise a four-bedroom student HMOcurrently generating in excess of £21,000 per annum.
The accommodation is of an exceptional standard, thoughtfully designed to meet high student expectations and ensuring minimal void periods.
Residential Accommodation Detail
The student apartment is currently securing a full let for the forthcoming student academic year and features:
•
Four double bedrooms, each furnished with high-quality fitted furniture including bed, desk, wardrobe, and clothes storage.
•
A well-appointed kitchen with modern units and integrated appliances.
•
Stylish open-plan lounge and dining area at 1st floor level, ideal for social living.
•
Dedicated utility area at the ground floor entrance area with washer/dryer facilities.
•
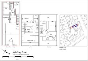
Layout includes:
•
Ground Floor: Entrance, utility space, lounge/dining area
•
First Floor: Bedroom One, Kitchen, lounge / dining area
•
Second Floor (Attic): Bedrooms Two, Three and Four
Location Highlights
•
Prime position on Otley Road, Headingley – a renowned student hub and a key arterial route to Leeds city centre.
•
Close proximity to Beckett’s Park Campus (Leeds Beckett University) and within easy reach of University of Leeds.
•
Excellent public transport options with frequent bus routes to the city and universities.
•
Surrounded by a wide variety of amenities including independent retailers, supermarkets, cafés, bars, and restaurants.
Investment Potential
With a strong and secure income stream from both commercial and residential tenants, this property presents a rare and attractive proposition for investors seeking a robust return in a highly sought-after location. The current yield stands at 8% based on the asking price of £467,000, with scope for future rental growth in this high-demand area.
Brochures
Otley Road, HeadingleyBrochure- COUNCIL TAXA payment made to your local authority in order to pay for local services like schools, libraries, and refuse collection. The amount you pay depends on the value of the property.Read more about council Tax in our glossary page.
- Band: B
- PARKINGDetails of how and where vehicles can be parked, and any associated costs.Read more about parking in our glossary page.
- Ask agent
- GARDENA property has access to an outdoor space, which could be private or shared.
- Ask agent
- ACCESSIBILITYHow a property has been adapted to meet the needs of vulnerable or disabled individuals.Read more about accessibility in our glossary page.
- Ask agent
Otley Road, Headingley
Add an important place to see how long it'd take to get there from our property listings.
__mins driving to your place
Get an instant, personalised result:
- Show sellers you’re serious
- Secure viewings faster with agents
- No impact on your credit score
Your mortgage
Notes
Staying secure when looking for property
Ensure you're up to date with our latest advice on how to avoid fraud or scams when looking for property online.
Visit our security centre to find out moreDisclaimer - Property reference 33914263. The information displayed about this property comprises a property advertisement. Rightmove.co.uk makes no warranty as to the accuracy or completeness of the advertisement or any linked or associated information, and Rightmove has no control over the content. This property advertisement does not constitute property particulars. The information is provided and maintained by Parklane, Leeds. Please contact the selling agent or developer directly to obtain any information which may be available under the terms of The Energy Performance of Buildings (Certificates and Inspections) (England and Wales) Regulations 2007 or the Home Report if in relation to a residential property in Scotland.
*This is the average speed from the provider with the fastest broadband package available at this postcode. The average speed displayed is based on the download speeds of at least 50% of customers at peak time (8pm to 10pm). Fibre/cable services at the postcode are subject to availability and may differ between properties within a postcode. Speeds can be affected by a range of technical and environmental factors. The speed at the property may be lower than that listed above. You can check the estimated speed and confirm availability to a property prior to purchasing on the broadband provider's website. Providers may increase charges. The information is provided and maintained by Decision Technologies Limited. **This is indicative only and based on a 2-person household with multiple devices and simultaneous usage. Broadband performance is affected by multiple factors including number of occupants and devices, simultaneous usage, router range etc. For more information speak to your broadband provider.
Map data ©OpenStreetMap contributors.







