Stanbury Avenue, Fishponds, Bristol

- PROPERTY TYPE
House
- BEDROOMS
3
- BATHROOMS
1
- SIZE
Ask agent
- TENUREDescribes how you own a property. There are different types of tenure - freehold, leasehold, and commonhold.Read more about tenure in our glossary page.
Freehold
Key features
- A highly sought after period 3 bedroom home
- Lovely tree-lined street close to Fishponds amenities
- A distinctive period home with considerable style, character and space
- Ideal for growing families and professionals
- Well proportioned accommodation maintained to a good standard
- Stunning open plan arranged Kitchen/Breakfast room
- 2 Receptions with considerable character and original features
- Essential viewing - no chain
- 3 generous bedrooms and a modern Shower room
- Hunters Exclusive - recommended viewing
Description
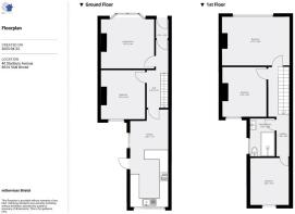
The charming accommodation which features many original natural wood stripped doors, architraves and skirtings comprise (all measurements are approximate)
Ground Floor - Multi paned UPVC double glazed entrance door into...
Entrance Lobby - Inner natural wood stripped and multi paned door into...
Hall - Dado rail, cupboard containing electric meters, radiator, original period ceiling coving and feature arch, staircase to first floor with useful cupboard beneath, radiator.
Lounge - 4.53m x 3.91m (14'10" x 12'9" ) - Maximum overall into a UPVC double glazed bay window, feature fireplace with a marble surround, inlay cast iron grate and pictorial tiles, radiator, original period ceiling coving and ceiling rose.
Dining Room - 3.65m x 2.62m (11'11" x 8'7" ) - UPVC double glazed window to rear, feature cast iron fireplace with decorative surround and inlay pictorial tiles.
Kitchen/Breakfast Room - 7.20m 2.81m (23'7" 9'2" ) - Recently refurbished with a superior range of white high gloss effect wall, floor and drawer storage cupboards with space for washing machine, fridge and separate freezer, splash back tiling, built in understairs cupboard, island breakfast bar, radiator, wood block effect working surfaces, duel aspect UPVC double glazed window to side and rear, feature laminate wood grain effect floor, UPVC double glazed door leading onto the rear garden, cupboard containing a Glow-Worm wall mounted gas combination boiler for domestic hot water and central heating, inset single drainer sink with mixer taps over, space for gas cooker with fitted extractor over.
First Floor -
Half Landing -
Bedroom 3 - 3.51m x 2.82m (11'6" x 9'3" ) - UPVC double glazed window to rear, radiator.
Shower Room - 2.79m x 1.82m (9'1" x 5'11" ) - Luxury white suite of low level WC and wash basin with cupboards beneath, splash back panelling throughout, heated towel rail, UPVC double glazed window to side, vinyl tiled floor, large walk in enclosure with a fitted Triton electric shower unit over, extractor fan.
Principle Landing - Access to roof space.
Bedroom 2 - 3.67m x 3.24m (12'0" x 10'7" ) - UPVC double glazed window to rear, radiator.
Bedroom 1 - 4.97m x 3.60m (16'3" x 11'9" ) - UPVC double glazed window to front, radiator, original period ceiling coving.
Exterior -
Garden - Arranged principally to the rear of the property and paved throughout with a timber shed and rear pedestrian gate opening onto a rear pedestrian lane.
Aml (Anti Money Laundering) - ‘’Estate agents operating in the UK are required to conduct Anti-Money Laundering (AML) checks in compliance with the regulations set forth by HM Revenue and Customs (HMRC) for all property transactions. It is mandatory for both buyers and sellers to successfully complete these checks before any property transaction can proceed. Our estate agency uses Coadjute’s Assured Compliance service to facilitate the AML checks. A fee will be charged for each individual AML check conducted’’
Brochures
Stanbury Avenue, Fishponds, Bristol- COUNCIL TAXA payment made to your local authority in order to pay for local services like schools, libraries, and refuse collection. The amount you pay depends on the value of the property.Read more about council Tax in our glossary page.
- Band: B
- PARKINGDetails of how and where vehicles can be parked, and any associated costs.Read more about parking in our glossary page.
- Ask agent
- GARDENA property has access to an outdoor space, which could be private or shared.
- Yes
- ACCESSIBILITYHow a property has been adapted to meet the needs of vulnerable or disabled individuals.Read more about accessibility in our glossary page.
- Ask agent
Stanbury Avenue, Fishponds, Bristol
Add an important place to see how long it'd take to get there from our property listings.
__mins driving to your place
Get an instant, personalised result:
- Show sellers you’re serious
- Secure viewings faster with agents
- No impact on your credit score
Your mortgage
Notes
Staying secure when looking for property
Ensure you're up to date with our latest advice on how to avoid fraud or scams when looking for property online.
Visit our security centre to find out moreDisclaimer - Property reference 33919787. The information displayed about this property comprises a property advertisement. Rightmove.co.uk makes no warranty as to the accuracy or completeness of the advertisement or any linked or associated information, and Rightmove has no control over the content. This property advertisement does not constitute property particulars. The information is provided and maintained by Hunters, Fishponds. Please contact the selling agent or developer directly to obtain any information which may be available under the terms of The Energy Performance of Buildings (Certificates and Inspections) (England and Wales) Regulations 2007 or the Home Report if in relation to a residential property in Scotland.
*This is the average speed from the provider with the fastest broadband package available at this postcode. The average speed displayed is based on the download speeds of at least 50% of customers at peak time (8pm to 10pm). Fibre/cable services at the postcode are subject to availability and may differ between properties within a postcode. Speeds can be affected by a range of technical and environmental factors. The speed at the property may be lower than that listed above. You can check the estimated speed and confirm availability to a property prior to purchasing on the broadband provider's website. Providers may increase charges. The information is provided and maintained by Decision Technologies Limited. **This is indicative only and based on a 2-person household with multiple devices and simultaneous usage. Broadband performance is affected by multiple factors including number of occupants and devices, simultaneous usage, router range etc. For more information speak to your broadband provider.
Map data ©OpenStreetMap contributors.







