
3 bedroom apartment for sale
Dundee Wharf, London, E14

- PROPERTY TYPE
Apartment
- BEDROOMS
3
- BATHROOMS
2
- SIZE
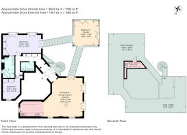
1,796 sq ft
167 sq m
Key features
- Penthouse
- Lateral Space
- 360 Degree Views
- Quadruple Aspect
- Fantastic Roof Terrace
- Three Bedrooms
- Gated Development
- Parking
- 24 Hr Concierge
- Chain Free
Description
Originally arranged as three bedrooms, two have been reconfigured to create a substantial principal suite, which could easily be reinstated. The suite features a full wall of Molteni wardrobes, uninterrupted river views, and a luxurious en-suite bathroom complete with Victoria & Albert freestanding bath, Zuchetti rain shower, Catalano sanitaryware, and waterproof polished plaster walls. A further double bedroom offers fitted wardrobes and is served by a large separate shower room. Multiple storage cupboards are discreetly positioned off the generous hallway.
The showstopping, triple-aspect main reception room spans almost 39 ft x 24 ft and includes floor-to-ceiling windows, Juliet balconies, and views toward the City, Tower Bridge and Greenwich. A SieMatic kitchen is positioned just off the living area and features Corian worktops, a breakfast bar, and premium appliances by Gaggenau and Miele.
Two private walkways lead from the principal suite and main reception room to a versatile studio or gallery space with Juliet balconies on all sides and 360-degree views, ideal for creative use or additional living space. This studio room also lends itself well to being reconfigured as a third bedroom if desired.
A private spiral staircase rises to the crown jewel of the property — a private roof terrace of over 1,280 sq ft, finished with composite decking and Easigrass. Designed for both relaxation and entertaining, it includes integrated lighting, irrigation and planters, alongside a large built-in utility and storage room with sink, fridge, washing machine, dryer and water heaters. The scale and outlook from this roof terrace are incredibly rare, offering a completely private vantage point over London’s skyline.
Impeccably finished, the apartment includes poured resin flooring, underfloor heating, Mitsubishi heating and cooling to key rooms, and integrated Bose speakers with Sonos connectivity throughout the reception, kitchen and principal suite including the en-suite. The studio includes bi-fold doors, ceiling-mounted electric radiators, and underfloor heating. Notably, the lift opens directly into the apartment, offering secure and private access.
Dundee Wharf is a highly regarded riverside development offering 24-hour concierge, EV charging bays, visitor parking, and a newly upgraded residents’ gym. Positioned directly on the Thames Path, it offers peaceful riverside walks while being just moments from the vibrant retail, restaurant and commercial hub of Canary Wharf.
Transport links are exceptional: Westferry DLR (0.2 miles) offers direct links to Bank, while Canary Wharf (0.8 miles) connects to the Jubilee Line, and Crossrail Place (0.7 miles) provides fast access to Bond Street, Heathrow and beyond. Thames Clipper river services from Canary Wharf Pier (0.3 miles) provide a scenic and efficient alternative for commuting across London.
The area is surrounded by green spaces, including Jubilee Park, Millwall Park, Mudchute Farm and Park, and the historic grounds of nearby Greenwich Park, easily reached via riverboat. World-class dining, shopping, and cultural attractions abound in Canary Wharf, Greenwich, and the South Quay Plaza development, while nearby Victoria Park and Limehouse Basin offer further leisure and lifestyle options.
Brochures
Brochure 1- COUNCIL TAXA payment made to your local authority in order to pay for local services like schools, libraries, and refuse collection. The amount you pay depends on the value of the property.Read more about council Tax in our glossary page.
- Ask agent
- PARKINGDetails of how and where vehicles can be parked, and any associated costs.Read more about parking in our glossary page.
- Yes
- GARDENA property has access to an outdoor space, which could be private or shared.
- Yes
- ACCESSIBILITYHow a property has been adapted to meet the needs of vulnerable or disabled individuals.Read more about accessibility in our glossary page.
- Ask agent
Dundee Wharf, London, E14
Add an important place to see how long it'd take to get there from our property listings.
__mins driving to your place
Get an instant, personalised result:
- Show sellers you’re serious
- Secure viewings faster with agents
- No impact on your credit score

Your mortgage
Notes
Staying secure when looking for property
Ensure you're up to date with our latest advice on how to avoid fraud or scams when looking for property online.
Visit our security centre to find out moreDisclaimer - Property reference RX565290. The information displayed about this property comprises a property advertisement. Rightmove.co.uk makes no warranty as to the accuracy or completeness of the advertisement or any linked or associated information, and Rightmove has no control over the content. This property advertisement does not constitute property particulars. The information is provided and maintained by Grant J Bates Property, London. Please contact the selling agent or developer directly to obtain any information which may be available under the terms of The Energy Performance of Buildings (Certificates and Inspections) (England and Wales) Regulations 2007 or the Home Report if in relation to a residential property in Scotland.
*This is the average speed from the provider with the fastest broadband package available at this postcode. The average speed displayed is based on the download speeds of at least 50% of customers at peak time (8pm to 10pm). Fibre/cable services at the postcode are subject to availability and may differ between properties within a postcode. Speeds can be affected by a range of technical and environmental factors. The speed at the property may be lower than that listed above. You can check the estimated speed and confirm availability to a property prior to purchasing on the broadband provider's website. Providers may increase charges. The information is provided and maintained by Decision Technologies Limited. **This is indicative only and based on a 2-person household with multiple devices and simultaneous usage. Broadband performance is affected by multiple factors including number of occupants and devices, simultaneous usage, router range etc. For more information speak to your broadband provider.
Map data ©OpenStreetMap contributors.





