430-432a Wilbraham Road, Chorlton
- PROPERTY TYPE
Plot
- BEDROOMS
4
- SIZE
Ask agent
Key features
- A superb conversion opportunity in the heart of Chorlton
- Detailed planning permission granted for eight apartments
- Including the addition of a third floor extension
- Creation of 2 new terraces for the first floor apartments
- Provision of bin store and cycle storage
- Planning reference: Manchester City Council - 141996/FO/2025
Description
This is a rare opportunity to acquire a much larger than expected development opportunity in the centre of Chorlton.
Previously two HMO's but now with planning permission to convert into eight residential apartments
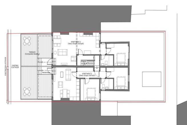
The new layout will be arranged across four storeys and features eight apartments.
The ground floor one bedroom apartment has its own private garden terrace to the rear. The apartments to the first floor both have access to private South facing roof terraces. The first and second floors offer four further one bedroom apartments, and one, two bedroom unit.
SERVICES
We understand that all Mains services are available close by, and interested parties should make their own enquiries of the relevant Utility Companies in this regard.
PLANNING
Detailed planning permission was granted in January 2025 by Manchester City Council under reference 141996/FO/2025 for the conversion of the two current HMO's into eight apartments.
Schedule as follows:
Ground Floor: Apt 1 -1 bed - 581 sq ft
First Floor - Apt 2 - 1 Bed -592 sq ft; Apt 3 - 2 bed - 667 sq ft
Second Floor - Apt 4 - 1 Bed - 398 sq ft: Apt 5 - 1 bed - 474 sq ft; Apt 6 -1 bed - 398 sq ft
Third Floor - Apt 7 - 1 bed - 398 sq ft; Apt 8 - 1 bed - 420 sq ft
CIL Payment
We have been advised there are no CIL or Section 106 payments, payable, however prospective buyers are encouraged to make their own enquiries with Manchester City Council.
TENURE
The Building is to be sold Freehold.
LOCATION
Chorlton is proving a popular location due to its excellent transport links with Manchester Airport and the national motorway network along nearby Princess Road. The property lies within 140 metres of Chorlton Tram station and journeys to Deansgate, Castlefield take under 15 minutes. The centre of Chorlton has a wide range of shops that more than cater for everyday shopping requirements. Bars and restaurants here cater for all tastes. Chorlton Water Park running along the River Mersey is also popular with residents as is Chorlton Green. Schools and recreational facilities in the area are also good.
DIRECTIONS
M21 0AS.
VIEWING
Strictly by appointment with our Land and New Homes Team. .
Brochures
Sales brochure - Wil430-432a Wilbraham Road, Chorlton
NEAREST STATIONS
Distances are straight line measurements from the centre of the postcode- Chorlton Station Station0.0 miles
- St Werburgh's Road Station0.4 miles
- Firswood Tram Stop0.7 miles
Notes
Disclaimer - Property reference 1004978. The information displayed about this property comprises a property advertisement. Rightmove.co.uk makes no warranty as to the accuracy or completeness of the advertisement or any linked or associated information, and Rightmove has no control over the content. This property advertisement does not constitute property particulars. The information is provided and maintained by Gascoigne Halman Land and New Homes, Wilmslow. Please contact the selling agent or developer directly to obtain any information which may be available under the terms of The Energy Performance of Buildings (Certificates and Inspections) (England and Wales) Regulations 2007 or the Home Report if in relation to a residential property in Scotland.
Map data ©OpenStreetMap contributors.




