
Bell Barn Road, Birmingham, B15

- PROPERTY TYPE
Apartment
- BEDROOMS
2
- BATHROOMS
2
- SIZE
Ask agent
Description
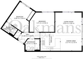
Oakmans offer a must see, two double bedroom apartment situated within the highly sought after development on Bell Barn road. This property boasts no upward chain and further benefits from having a balcony with fantastic views, being within walking distance to Birmingham city centre and having an open plan living arrangement.
This would make a fantastic property for an investor or city centre worker who wants easy access to a variety of transport links and amenities that Birmingham city centre has to offer and briefly comprises entrance hall, open plan lounge, kitchen and dining area leading out to balcony, two double bedrooms, family bathroom and modern en-suite.
The property also benefits from having an allocated parking space.
Property type: Apartment
Tenure: Leasehold
Council Tax Band: B
EPC Rating: C
Construction Type: Standard construction
Parking Arrangements: Allocated parking and garage
Broadband: Fibre (FTTP)
Mobile Signal Coverage: No known issues
Water Supply: Mains
Sewerage: Private
Electric: Mains
Heating Supply: Mains
Building Safety Issues: No
Special Conditions: None
Flood Risk or Previous Flooding: No
Mine Shafts/Coal Fields/Erosion: No
Restrictions: No
Rights and Easements: No
Planning Permissions: No
Local Developments: No
Accessibility Adaptations: No
Years left on lease: 138 years
Service charge: £3049 per annum
Ground rent: £125 per annum
Call Oakmans today!
- COUNCIL TAXA payment made to your local authority in order to pay for local services like schools, libraries, and refuse collection. The amount you pay depends on the value of the property.Read more about council Tax in our glossary page.
- Band: TBC
- PARKINGDetails of how and where vehicles can be parked, and any associated costs.Read more about parking in our glossary page.
- Yes
- GARDENA property has access to an outdoor space, which could be private or shared.
- Ask agent
- ACCESSIBILITYHow a property has been adapted to meet the needs of vulnerable or disabled individuals.Read more about accessibility in our glossary page.
- Ask agent
Energy performance certificate - ask agent
Bell Barn Road, Birmingham, B15
Add an important place to see how long it'd take to get there from our property listings.
__mins driving to your place
Get an instant, personalised result:
- Show sellers you’re serious
- Secure viewings faster with agents
- No impact on your credit score


Your mortgage
Notes
Staying secure when looking for property
Ensure you're up to date with our latest advice on how to avoid fraud or scams when looking for property online.
Visit our security centre to find out moreDisclaimer - Property reference HBN250455. The information displayed about this property comprises a property advertisement. Rightmove.co.uk makes no warranty as to the accuracy or completeness of the advertisement or any linked or associated information, and Rightmove has no control over the content. This property advertisement does not constitute property particulars. The information is provided and maintained by Oakmans Estate Agents, Harborne. Please contact the selling agent or developer directly to obtain any information which may be available under the terms of The Energy Performance of Buildings (Certificates and Inspections) (England and Wales) Regulations 2007 or the Home Report if in relation to a residential property in Scotland.
*This is the average speed from the provider with the fastest broadband package available at this postcode. The average speed displayed is based on the download speeds of at least 50% of customers at peak time (8pm to 10pm). Fibre/cable services at the postcode are subject to availability and may differ between properties within a postcode. Speeds can be affected by a range of technical and environmental factors. The speed at the property may be lower than that listed above. You can check the estimated speed and confirm availability to a property prior to purchasing on the broadband provider's website. Providers may increase charges. The information is provided and maintained by Decision Technologies Limited. **This is indicative only and based on a 2-person household with multiple devices and simultaneous usage. Broadband performance is affected by multiple factors including number of occupants and devices, simultaneous usage, router range etc. For more information speak to your broadband provider.
Map data ©OpenStreetMap contributors.






