Office for sale
3 Capricorn Centre, Cranes Farm Road, Basildon, Essex, SS14 3JA
- SIZE AVAILABLE
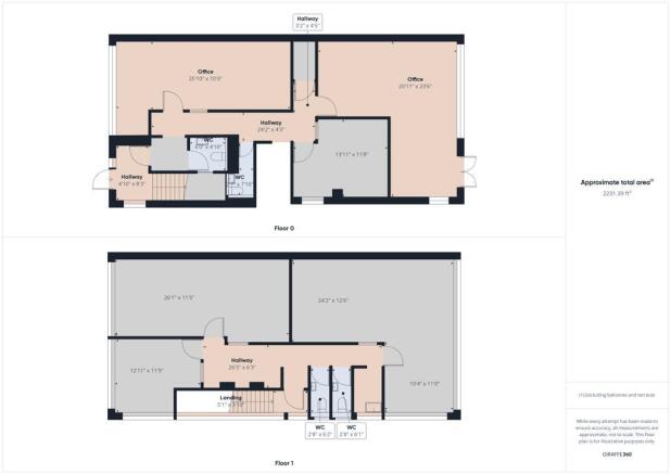
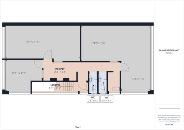
2,231 sq ft
207 sq m
- SECTOR
Office for sale
Key features
- Split Over Two Levels
- Parking
- Close to Road Links M25 and A127
- Approx 2231 Sqft
- CCTV Security System
- Air Conditioning
- Individual Floor Space Available
Description
William Ross Property Services are proud to offer to the market this well positioned office space in Basildon.
Located on Capricorn Business Centre, this office space benefits from being set over two levels ,benefiting from four W/C facilities and two kitchen areas, LED Lighting and air-conditioning through out the building , CCTV and security alarm system have been installed as well as door entry systems. it has the potential to be a great space for a medium sized company or a small company with rapid growth plans.
Allocated parking on site and surrounded by good road links (M25 & A127).
Property Disclaimer These particulars do not form part of an offer or contract. All measurements provided are for guidance purposes only and should not be relied upon as accurate. Prospective tenants are advised to verify the measurements independently before incurring any expenses. William Ross Land and Commercial has not tested any equipment, fixtures, fittings, or services. It is the responsibility of the tenant to ensure the proper functioning of any appliances.
Location
Good Road Links M25 and A127
EPC
Energy Rating 66 C
Please refer to the Local Authority for information on rates
3 Capricorn Centre, Cranes Farm Road, Basildon, Essex, SS14 3JA
NEAREST STATIONS
Distances are straight line measurements from the centre of the postcode- Pitsea Station1.9 miles
- Basildon Station2.0 miles
- Wickford Station2.4 miles
Notes
Disclaimer - Property reference 94FH. The information displayed about this property comprises a property advertisement. Rightmove.co.uk makes no warranty as to the accuracy or completeness of the advertisement or any linked or associated information, and Rightmove has no control over the content. This property advertisement does not constitute property particulars. The information is provided and maintained by William Ross Land and Commercial, Essex. Please contact the selling agent or developer directly to obtain any information which may be available under the terms of The Energy Performance of Buildings (Certificates and Inspections) (England and Wales) Regulations 2007 or the Home Report if in relation to a residential property in Scotland.
Map data ©OpenStreetMap contributors.




