
Perry Hill, Worplesdon, Guildford, Surrey, GU3
- PROPERTY TYPE
Plot
- SIZE
Ask agent
Key features
- Plot of Land
- Planning Permission Granted
- Detached House
- 3 Bedrooms
- 2 Bathrooms
- Kitchen/Diner
- Detached Garage
- Parking Garden
- Planning Reference 23/P/00115
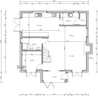
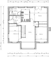
Description
Located in the popular village of Worplesdon, this is the chance of dreams to self build a house to your own specification of finish.
The detached home will offer 3 bedrooms, An en-suite shower room to the main bedroom along with a family bathroom.
Downstairs there will be a lovely kitchen / diner across the back of the house with access onto the garden, a separate utility space, downstairs WC and lovely main reception room and separate study.
Permission includes a detached garage to the front with of course parking to the front and a garden to the rear.
The following already completed: PLANNING PERMISSION OBTAINED December 23 STRUCTURAL ENGINEER REPORT PAID SECTION 106. SAM AND SUNG TAXES PAID TO GUILDFORD BC NEW ACCESS IN PLACE APPROVED BY SURREY CC ARBORICULTURAL SURVEY SUDS SURVEY ENERGY CALCULATION SURVEY DRAINAGE APPROVED AND PAID TO THAMES WATER. Planning Reference 23/P/00115
Brochures
Web DetailsPerry Hill, Worplesdon, Guildford, Surrey, GU3
NEAREST STATIONS
Distances are straight line measurements from the centre of the postcode- Worplesdon Station1.6 miles
- Brookwood Station2.5 miles
- Guildford Station2.8 miles




Notes
Disclaimer - Property reference GUI250580. The information displayed about this property comprises a property advertisement. Rightmove.co.uk makes no warranty as to the accuracy or completeness of the advertisement or any linked or associated information, and Rightmove has no control over the content. This property advertisement does not constitute property particulars. The information is provided and maintained by Bourne Estate Agents, Guildford. Please contact the selling agent or developer directly to obtain any information which may be available under the terms of The Energy Performance of Buildings (Certificates and Inspections) (England and Wales) Regulations 2007 or the Home Report if in relation to a residential property in Scotland.
Map data ©OpenStreetMap contributors.







