
3 bedroom link detached house for sale
Westover Drive, Westbury on Trym, Bristol

- PROPERTY TYPE
Link Detached House
- BEDROOMS
3
- BATHROOMS
1
- SIZE
Ask agent
- TENUREDescribes how you own a property. There are different types of tenure - freehold, leasehold, and commonhold.Read more about tenure in our glossary page.
Freehold
Key features
- Quiet cul de sac location
- Easy access to Westbury Village with all its amenities
- Bristol Free School catchment
- 3 generous sized bedrooms
- Garage & driveway
- From EPC: 107 square metres
Description
Overview
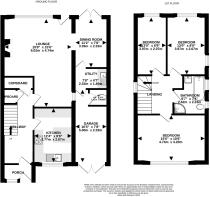
The accommodation has been extended over the years and there is still great scope and potential to create more living space if required.
Typical of this house style, there are large windows in all the rooms so there is a light & airy feel throughout.
Currently the ground floor accommodation is arranged with a generous sized lounge at the rear, with a full width window and a door that opens to the garden.
There is a fireplace in here which creates a great focal point, and an opening gives access to the dining area.
Having this room makes a real difference to the living space.
The kitchen is at the front of the house and this has a fitted oven & hob and a breakfast bar.
There is a utility area and WC on the ground floor, and both these spaces can be accessed either from the kitchen or the dining room.
Upstairs there are 3 bedrooms, all of which are good sized bedrooms.
There is a spacious bathroom that also has a separate shower cubicle as well as the bath.
A window on the landing brings natural light into this floor.
Outside
To the front of the property is a garden plus a driveway for off road parking.
The rear garden is accessed from both the lounge and dining room and this leads directly onto the patio.
The garden is tiered and has 4 levels in total. There is a brick built storage shed on the top tier.
Location
Westover Drive is a quiet cul de sac that is ideal for families.
A footpath provides easy access to Falcondale Road, so it's perfect for accessing the amenites in the village and the transport links that give access either into the centre, or out to Cribbs Causeway.
Southmead Hospital is less than 2 miles away.
Westbury on Trym Primary School is nearby, as is Bristol Free School and this property falls within the catchment.
We think...
This is a great opportunity to buy a detached home in a popular BS9 location.
Material information (provided by owner)
Council Tax Band D
- COUNCIL TAXA payment made to your local authority in order to pay for local services like schools, libraries, and refuse collection. The amount you pay depends on the value of the property.Read more about council Tax in our glossary page.
- Band: D
- PARKINGDetails of how and where vehicles can be parked, and any associated costs.Read more about parking in our glossary page.
- Yes
- GARDENA property has access to an outdoor space, which could be private or shared.
- Yes
- ACCESSIBILITYHow a property has been adapted to meet the needs of vulnerable or disabled individuals.Read more about accessibility in our glossary page.
- No wheelchair access
Westover Drive, Westbury on Trym, Bristol
Add an important place to see how long it'd take to get there from our property listings.
__mins driving to your place
Get an instant, personalised result:
- Show sellers you’re serious
- Secure viewings faster with agents
- No impact on your credit score
Your mortgage
Notes
Staying secure when looking for property
Ensure you're up to date with our latest advice on how to avoid fraud or scams when looking for property online.
Visit our security centre to find out moreDisclaimer - Property reference OWY-25562809. The information displayed about this property comprises a property advertisement. Rightmove.co.uk makes no warranty as to the accuracy or completeness of the advertisement or any linked or associated information, and Rightmove has no control over the content. This property advertisement does not constitute property particulars. The information is provided and maintained by Ocean, Westbury on Trym. Please contact the selling agent or developer directly to obtain any information which may be available under the terms of The Energy Performance of Buildings (Certificates and Inspections) (England and Wales) Regulations 2007 or the Home Report if in relation to a residential property in Scotland.
*This is the average speed from the provider with the fastest broadband package available at this postcode. The average speed displayed is based on the download speeds of at least 50% of customers at peak time (8pm to 10pm). Fibre/cable services at the postcode are subject to availability and may differ between properties within a postcode. Speeds can be affected by a range of technical and environmental factors. The speed at the property may be lower than that listed above. You can check the estimated speed and confirm availability to a property prior to purchasing on the broadband provider's website. Providers may increase charges. The information is provided and maintained by Decision Technologies Limited. **This is indicative only and based on a 2-person household with multiple devices and simultaneous usage. Broadband performance is affected by multiple factors including number of occupants and devices, simultaneous usage, router range etc. For more information speak to your broadband provider.
Map data ©OpenStreetMap contributors.








