
2 bedroom apartment for sale
Wharf Gardens, Bingham

- PROPERTY TYPE
Apartment
- BEDROOMS
2
- BATHROOMS
1
- SIZE
Ask agent
Description
Overall viewing comes highly recommended to appreciate both the accommodation and location on offer which is likely to suit a wide audience including first-time buyers, single professionals and couples, buy-to-let investors and potentially 'downsizers' looking for single storey accommodation.
Within the Centre of the Town is Bingham Market Place with its range of shops. Carnarvon, Robert Miles and Toothill Schools catering for all school age groups are also extremely popular and highly regarded due to their Ofsted reports. For the busy executive, the upgraded A46 & A52 are close at hand providing access to the surrounding commercial centres of Nottingham, Newark, Leicester and Grantham.
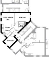
Entrance Hall - Electric phone/buzzing system, smoke alarm and central heating controls.
Dining / Lounge Area - 7.39m x 3.86m (24'3 x 12'8) - Open plan contemporary feel to the kitchen and living room, two UPVC double glazed windows and UPVC double glazed window and central heating radiator.
Kitchen Area - The kitchen is fitted with modern base and wall mounted units with roll top work surface over, electric stainless steel fan assisted oven with four ring gas hob and stainless steel splash back and extractor fan over, inset one and a half sink and drainer with mixer tap, space and plumbing for washing machine, space for a full size fridge freezer and cupboard housing the gas central heating boiler.
Master Bedroom - 4.42m x 2.74m (14'6 x 9'0) - UPVC double glazed window and central heating radiator.
Bedroom Two - 3.05m x 2.29m (10'0 x 7'6) - Upvc double glazed window and central heating radiator.
Bathroom - Being fitted with a contemporary three piece white suite comprising low level W.C., pedestal wash basin and panel bath with shower over and screen, being tiled to wet areas in a modern ceramic tile, central heating radiator, inset ceiling spotlights and extractor fan.
Outside & Parking - The property has one allocated parking space at the rear within a communal courtyard.
PLEASE NOTE THAT there is a Leasehold arrangement in place - LEASEHOLD DETAILS
The Lease is for 125 years and commenced 1st January 2011.
The current service charge is with Compass Block Management and £1,744.10 per year is payable monthly or £872.05 half yearly.
The current ground rent is with Home Ground and is £87.50 annually paid half yearly.
Brochures
Wharf Gardens, BinghamBrochure- COUNCIL TAXA payment made to your local authority in order to pay for local services like schools, libraries, and refuse collection. The amount you pay depends on the value of the property.Read more about council Tax in our glossary page.
- Band: B
- PARKINGDetails of how and where vehicles can be parked, and any associated costs.Read more about parking in our glossary page.
- Yes
- GARDENA property has access to an outdoor space, which could be private or shared.
- Ask agent
- ACCESSIBILITYHow a property has been adapted to meet the needs of vulnerable or disabled individuals.Read more about accessibility in our glossary page.
- Ask agent
Wharf Gardens, Bingham
Add an important place to see how long it'd take to get there from our property listings.
__mins driving to your place
Get an instant, personalised result:
- Show sellers you’re serious
- Secure viewings faster with agents
- No impact on your credit score
Your mortgage
Notes
Staying secure when looking for property
Ensure you're up to date with our latest advice on how to avoid fraud or scams when looking for property online.
Visit our security centre to find out moreDisclaimer - Property reference 33938691. The information displayed about this property comprises a property advertisement. Rightmove.co.uk makes no warranty as to the accuracy or completeness of the advertisement or any linked or associated information, and Rightmove has no control over the content. This property advertisement does not constitute property particulars. The information is provided and maintained by HAMMOND Property Services, Bingham. Please contact the selling agent or developer directly to obtain any information which may be available under the terms of The Energy Performance of Buildings (Certificates and Inspections) (England and Wales) Regulations 2007 or the Home Report if in relation to a residential property in Scotland.
*This is the average speed from the provider with the fastest broadband package available at this postcode. The average speed displayed is based on the download speeds of at least 50% of customers at peak time (8pm to 10pm). Fibre/cable services at the postcode are subject to availability and may differ between properties within a postcode. Speeds can be affected by a range of technical and environmental factors. The speed at the property may be lower than that listed above. You can check the estimated speed and confirm availability to a property prior to purchasing on the broadband provider's website. Providers may increase charges. The information is provided and maintained by Decision Technologies Limited. **This is indicative only and based on a 2-person household with multiple devices and simultaneous usage. Broadband performance is affected by multiple factors including number of occupants and devices, simultaneous usage, router range etc. For more information speak to your broadband provider.
Map data ©OpenStreetMap contributors.






