
3 bedroom terraced house for sale
Grove Road, Chelmsford, CM2

- PROPERTY TYPE
Terraced
- BEDROOMS
3
- BATHROOMS
1
- SIZE
Ask agent
- TENUREDescribes how you own a property. There are different types of tenure - freehold, leasehold, and commonhold.Read more about tenure in our glossary page.
Freehold
Key features
- Three Bedrooms
- Terraced Family Home
- Two Versatile Reception Rooms
- Private Rear Garden
- Permit Parking Available
- Highly Sought-After Location
- Opportunity for Light Modernisation
- Freehold
Description
£325,000-£350,000 Guide price
Positioned in the heart of Old Moulsham, this spacious three-bedroom terraced home offers fantastic potential for buyers looking to create their perfect living space.
Offering an excellent layout with two generously sized reception rooms and a bright, functional kitchen, the property presents well and is perfectly liveable, though it would benefit from some light modernisation throughout providing a wonderful opportunity to add your own style and value without the need for extensive work.
The first floor comprises three well-proportioned bedrooms and a modern family bathroom, making the home well-suited to growing families, first-time buyers, or those seeking a smart investment.
Outside, the private rear garden offers a peaceful space ideal for outdoor dining, entertaining, or relaxation. Additionally, permit parking is available for residents, adding further convenience.
Ideally located within easy reach of local amenities, highly regarded schools, and excellent transport links, this property combines space, potential, and a sought-after location—making it a must-see.
Early viewing is strongly recommended to fully appreciate the opportunity on offer.
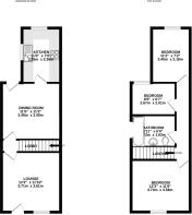
Room Measurements
Ground Floor
• Lounge: 12'2" x 11'10"
• Dining Room: 11'5" x 11'2"
• Kitchen: 11'0" x 7'9"
First Floor
• Bedroom One: 12'3" x 11'9"
• Bedroom Two: 11'2" x 7'2"
• Bedroom Three: 8'9" x 6'7"
• Bathroom: 8'11" x 6'4"
AGENTS NOTES: Anti-Money Laundering (AML) Requirements and Administration Fee
In accordance with legal obligations under the Money Laundering, Terrorist Financing and Transfer of Funds (Information on the Payer) Regulations 2017, all Estate Agents are required to carry out Anti-Money Laundering (AML) checks on all purchasers.
Should your offer on one of our properties be accepted and you proceed with the purchase, we are required to verify your identity as part of these AML checks. To cover the cost of this process, an administration fee of £30 (including VAT) per person is payable. Please note that this fee is non-refundable.
Brochures
Brochure 1- COUNCIL TAXA payment made to your local authority in order to pay for local services like schools, libraries, and refuse collection. The amount you pay depends on the value of the property.Read more about council Tax in our glossary page.
- Ask agent
- PARKINGDetails of how and where vehicles can be parked, and any associated costs.Read more about parking in our glossary page.
- Yes
- GARDENA property has access to an outdoor space, which could be private or shared.
- Yes
- ACCESSIBILITYHow a property has been adapted to meet the needs of vulnerable or disabled individuals.Read more about accessibility in our glossary page.
- Ask agent
Grove Road, Chelmsford, CM2
Add an important place to see how long it'd take to get there from our property listings.
__mins driving to your place
Get an instant, personalised result:
- Show sellers you’re serious
- Secure viewings faster with agents
- No impact on your credit score



Your mortgage
Notes
Staying secure when looking for property
Ensure you're up to date with our latest advice on how to avoid fraud or scams when looking for property online.
Visit our security centre to find out moreDisclaimer - Property reference 29154164. The information displayed about this property comprises a property advertisement. Rightmove.co.uk makes no warranty as to the accuracy or completeness of the advertisement or any linked or associated information, and Rightmove has no control over the content. This property advertisement does not constitute property particulars. The information is provided and maintained by McCartney Sales & Lettings, Chelmsford. Please contact the selling agent or developer directly to obtain any information which may be available under the terms of The Energy Performance of Buildings (Certificates and Inspections) (England and Wales) Regulations 2007 or the Home Report if in relation to a residential property in Scotland.
*This is the average speed from the provider with the fastest broadband package available at this postcode. The average speed displayed is based on the download speeds of at least 50% of customers at peak time (8pm to 10pm). Fibre/cable services at the postcode are subject to availability and may differ between properties within a postcode. Speeds can be affected by a range of technical and environmental factors. The speed at the property may be lower than that listed above. You can check the estimated speed and confirm availability to a property prior to purchasing on the broadband provider's website. Providers may increase charges. The information is provided and maintained by Decision Technologies Limited. **This is indicative only and based on a 2-person household with multiple devices and simultaneous usage. Broadband performance is affected by multiple factors including number of occupants and devices, simultaneous usage, router range etc. For more information speak to your broadband provider.
Map data ©OpenStreetMap contributors.





