
Building Plot, St. Mary Street, Ilkeston, Derbyshire
- PROPERTY TYPE
Plot
- BEDROOMS
3
- BATHROOMS
2
- SIZE
Ask agent
Key features
- Excellent Building Plot
- Erection of 2 x Semi-Detached 3-Bedroom, 2-Bathroom Dwellings
- EREWASH COUNCIL - ERE/0222/0026
- A Short Walk into Market Town - Good Amenities
- Attention Builders/Developers
- The Plot Has Made a Start with Footings
Description
The accommodation offers entrance hall, cloakroom, lounge, kitchen/dining, three bedrooms, dressing room, en-suite and family bathroom. { The Plot Has Made a Start with Footings }
The location is particularly appealing, as it is just a short walk from the bustling market town, which boasts a variety of good amenities. Residents will enjoy easy access to local shops, schools, and recreational facilities, ensuring a convenient and vibrant lifestyle.
The Location - The property's location on St. Mary Street gives easy access to the centre of Ilkeston. Ilkeston offers a retail park with large supermarkets, shops, busy high street with restaurants and bars and further schooling. There is easy access to both Derby and Nottingham and the M1 motorway.
Front -
Rear -
Site Plan -
Floorplan Ground Floor -
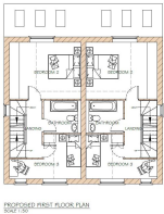
Floorplan First Floor -
Floorplan Second Floor -
Footings -
Brochures
Building Plot, St. Mary Street, Ilkeston, DerbyshiBrochureBuilding Plot, St. Mary Street, Ilkeston, Derbyshire
NEAREST STATIONS
Distances are straight line measurements from the centre of the postcode- Ilkeston Station0.8 miles
- Langley Mill Station3.3 miles
- Toton Lane Tram Stop4.1 miles



Notes
Disclaimer - Property reference 33952937. The information displayed about this property comprises a property advertisement. Rightmove.co.uk makes no warranty as to the accuracy or completeness of the advertisement or any linked or associated information, and Rightmove has no control over the content. This property advertisement does not constitute property particulars. The information is provided and maintained by Fletcher & Company, Duffield. Please contact the selling agent or developer directly to obtain any information which may be available under the terms of The Energy Performance of Buildings (Certificates and Inspections) (England and Wales) Regulations 2007 or the Home Report if in relation to a residential property in Scotland.
Map data ©OpenStreetMap contributors.







