
Eugene Way, Eastbourne, BN23

- PROPERTY TYPE
Flat
- BEDROOMS
2
- BATHROOMS
2
- SIZE
Ask agent
Key features
- Chain Free!
- 2 Bedroom Apartment
- North Harbour Location
- Well Presented
- Gated Parking
- Close Proximity to Restaurants and Bars
Description
PRICE GUIDE £190,000 - £210,000
WATCH THE FILM AND 3D TOUR and view EXPERT PHOTOGRAPHY at craneandco.co.uk (ALL PROVIDED FREE FOR ALL OUR SELLERS)
Tucked away in the heart of Sovereign Harbour North, this stylish two bedroom first floor apartment offers the perfect setting for laid back coastal living. Just a short stroll from the waterfront and beach, it’s a place where your days can begin with a peaceful walk by the marina and end with dinner and drinks at one of the many nearby restaurants. Inside, the apartment is light filled and thoughtfully designed. The open plan living space is ideal for both quiet evenings and casual entertaining, with doors opening to a Juliette balcony that brings in the natural light and fresh harbour air. The modern kitchen flows seamlessly into the living area, while two generously sized double bedrooms, one with an en suite, offering a comfortable retreat at the end of the day. You’ll enjoy the added peace of mind of secure gated parking and a video entry system, along with the ease of double glazing and electric heating. With cafés, shops, and scenic harbour walks just moments from your door, this home invites you to slow down and savour the best of coastal living. Whether you’re looking for a permanent home, a weekend escape, or a low maintenance lock up and leave, this apartment brings lifestyle and location together in one appealing package. Early viewing is highly recommended.
* 106 Years remaining on Lease
* Annual Service Charge £2052
* Information Provided by Seller*
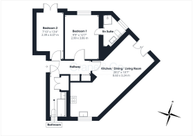
Entrance Hallway
Kitchen/Dining/Living Room - 28' 2" x 10' 7"
28' 2" x 10' 7" (8.59m x 3.23m)
Bedroom 1 - 12' 7" x 9' 9"
12' 7" x 9' 9" (3.84m x 2.97m)
En Suite
Bedroom 2 - 13' 4" x 7' 10"
13' 4" x 7' 10" (4.06m x 2.39m)
Bathroom
- COUNCIL TAXA payment made to your local authority in order to pay for local services like schools, libraries, and refuse collection. The amount you pay depends on the value of the property.Read more about council Tax in our glossary page.
- Band: D
- PARKINGDetails of how and where vehicles can be parked, and any associated costs.Read more about parking in our glossary page.
- Yes
- GARDENA property has access to an outdoor space, which could be private or shared.
- Ask agent
- ACCESSIBILITYHow a property has been adapted to meet the needs of vulnerable or disabled individuals.Read more about accessibility in our glossary page.
- Ask agent
Eugene Way, Eastbourne, BN23
Add an important place to see how long it'd take to get there from our property listings.
__mins driving to your place
Get an instant, personalised result:
- Show sellers you’re serious
- Secure viewings faster with agents
- No impact on your credit score



Your mortgage
Notes
Staying secure when looking for property
Ensure you're up to date with our latest advice on how to avoid fraud or scams when looking for property online.
Visit our security centre to find out moreDisclaimer - Property reference 29098289. The information displayed about this property comprises a property advertisement. Rightmove.co.uk makes no warranty as to the accuracy or completeness of the advertisement or any linked or associated information, and Rightmove has no control over the content. This property advertisement does not constitute property particulars. The information is provided and maintained by Crane & Co Estate Agents, Hailsham. Please contact the selling agent or developer directly to obtain any information which may be available under the terms of The Energy Performance of Buildings (Certificates and Inspections) (England and Wales) Regulations 2007 or the Home Report if in relation to a residential property in Scotland.
*This is the average speed from the provider with the fastest broadband package available at this postcode. The average speed displayed is based on the download speeds of at least 50% of customers at peak time (8pm to 10pm). Fibre/cable services at the postcode are subject to availability and may differ between properties within a postcode. Speeds can be affected by a range of technical and environmental factors. The speed at the property may be lower than that listed above. You can check the estimated speed and confirm availability to a property prior to purchasing on the broadband provider's website. Providers may increase charges. The information is provided and maintained by Decision Technologies Limited. **This is indicative only and based on a 2-person household with multiple devices and simultaneous usage. Broadband performance is affected by multiple factors including number of occupants and devices, simultaneous usage, router range etc. For more information speak to your broadband provider.
Map data ©OpenStreetMap contributors.





