
60 Greenfields Gardens, Shrewsbury, SY1 2RN

- PROPERTY TYPE
Terraced
- BEDROOMS
3
- BATHROOMS
1
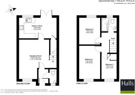
- SIZE
764 sq ft
71 sq m
Key features
- Recently updated
- 3 bedrooms
- Large sitting room
- Kitchen/breakfast room
- South westerly facing gardens
- Allocated parking
Description
Directions - From Shrewsbury town centre proceed along Smithfield Road around into Coton Road, which leads into Ellesmere Road. Continue through the traffic lights and at the mini roundabout turn right into the development. Follow the road for a short distance, down the bank and continue along and the property will be found on the right hand side.
Situation - The property is particularly well situated in this most popular area of the town and is conveniently placed for access to Shrewsbury town centre which is within walking distance. Close by, there are a number of amenities including a general store and a primary school, whilst the town centre itself offers a more comprehensive range of shopping, leisure and social facilities together with a rail service, which is only a 6 minute walk away. Commuters will be pleased to note that easy accessed can be gained to the A5 and onto the M54 motorway.
Description - A modern three bedroom terrace house which has been updated and redecorated and provides spacious accommodation with the benefits of gas fired central heating, double glazing and an allocated parking space.
The property has an entrance hall with a downstairs WC, you then enter the wonderfully well portioned sitting room which has the ability to be a sitting room with a dining/study area. The kitchen/dining room has a modern fitted kitchen with a range of wall and floor units, some built in appliances and space for a dining area. French doors lead from here to the south west facing rear patio and lawned area beyond.
On the first floor there are two good size double bedrooms and a third bedroom. The family bathroom has been recently updated.
Accommodation -
Entrance Hall - With doors off and to:-
Guest Wc - Providing a WC and wash hand basin.
Living Room - Large open room with the staircase leading to the first floor.
Kitchen Diner - Providing a range of eye and base level units with generous work surface area over. Integrated cooker and hob with extractor fan over. Large store cupboard. French doors to rear garden.
First Floor Landing - With doors off and to:-
Bedroom One - Good sized double bedroom with window to front.
Bedroom Two - With window to rear.
Bedroom Three - With built in wardrobe and window to front.
Bathroom - Providing a white suite comprising low level WC, wash hand basin and panelled bath with mains fed shower over.
Outside - To the front there is an allocated parking space. To the rear there are enclosed south westerly facing gardens with a patio area and lawn beyond, flanked by a pathway, shrubbery beds and borders.
General Remarks -
Anti-Money Laundering (Aml) Checks - We are legally obligated to undertake anti-money laundering checks on all property purchasers. Whilst we are responsible for ensuring that these checks, and any ongoing monitoring, are conducted properly; the initial checks will be handled on our behalf by a specialist company, Movebutler, who will reach out to you once your offer has been accepted. The charge for these checks is £30 (including VAT) per purchaser, which covers the necessary data collection and any manual checks or monitoring that may be required. This cost must be paid in advance, directly to Movebutler, before a memorandum of sale can be issued, and is non-refundable. We thank you for your cooperation.
Fixtures And Fittings - Only those items described in these particulars are included in the sale.
Tenure - We are of the understanding that this property is Leasehold. Purchasers must confirm via their solicitor.
Ground rent: £358
137 years remaining on lease.
Services - Mains water, electricity, gas and drainage are understood to be connected. None of these services have been tested.
Council Tax - The property is in Council Tax band 'B' on the Shropshire Council Register.
Vieiwngs - By appointment through Halls, 2 Barker Street, Shrewsbury, SY1 1QJ.
Brochures
60 Greenfields Gardens, Shrewsbury, SY1 2RN- COUNCIL TAXA payment made to your local authority in order to pay for local services like schools, libraries, and refuse collection. The amount you pay depends on the value of the property.Read more about council Tax in our glossary page.
- Band: B
- PARKINGDetails of how and where vehicles can be parked, and any associated costs.Read more about parking in our glossary page.
- Yes
- GARDENA property has access to an outdoor space, which could be private or shared.
- Yes
- ACCESSIBILITYHow a property has been adapted to meet the needs of vulnerable or disabled individuals.Read more about accessibility in our glossary page.
- Ask agent
60 Greenfields Gardens, Shrewsbury, SY1 2RN
Add an important place to see how long it'd take to get there from our property listings.
__mins driving to your place
Get an instant, personalised result:
- Show sellers you’re serious
- Secure viewings faster with agents
- No impact on your credit score
Your mortgage
Notes
Staying secure when looking for property
Ensure you're up to date with our latest advice on how to avoid fraud or scams when looking for property online.
Visit our security centre to find out moreDisclaimer - Property reference 33958766. The information displayed about this property comprises a property advertisement. Rightmove.co.uk makes no warranty as to the accuracy or completeness of the advertisement or any linked or associated information, and Rightmove has no control over the content. This property advertisement does not constitute property particulars. The information is provided and maintained by Halls Estate Agents, Shrewsbury. Please contact the selling agent or developer directly to obtain any information which may be available under the terms of The Energy Performance of Buildings (Certificates and Inspections) (England and Wales) Regulations 2007 or the Home Report if in relation to a residential property in Scotland.
*This is the average speed from the provider with the fastest broadband package available at this postcode. The average speed displayed is based on the download speeds of at least 50% of customers at peak time (8pm to 10pm). Fibre/cable services at the postcode are subject to availability and may differ between properties within a postcode. Speeds can be affected by a range of technical and environmental factors. The speed at the property may be lower than that listed above. You can check the estimated speed and confirm availability to a property prior to purchasing on the broadband provider's website. Providers may increase charges. The information is provided and maintained by Decision Technologies Limited. **This is indicative only and based on a 2-person household with multiple devices and simultaneous usage. Broadband performance is affected by multiple factors including number of occupants and devices, simultaneous usage, router range etc. For more information speak to your broadband provider.
Map data ©OpenStreetMap contributors.









