Blacklake Drive, Meir Heath, Stoke-on-Trent

- PROPERTY TYPE
Detached
- BEDROOMS
5
- BATHROOMS
3
- SIZE
Ask agent
- TENUREDescribes how you own a property. There are different types of tenure - freehold, leasehold, and commonhold.Read more about tenure in our glossary page.
Freehold
Key features
- Three Storey Executive Detached House
- Five Double Bedrooms
- Lounge
- Orangery
- High End Dining Kitchen with integrated appliances
- Two Ensuite Shower Rooms
- Rare Opportunity
- Freehold
- Council Tax Band E
- Easy Walking Distance from Meir Heath Academy Primary School
Description
It has a spacious lounge and a high end open plan dining kitchen, complete with granite work surfaces and integrated appliances, perfect for entertaining or everyday family life. The stunning orangery floods the space with natural light, and there's a ground floor WC.
The first floor boasts four generously sized bedrooms, one featuring its own dressing room and ensuite shower room. A luxurious family bathroom serves the remaining rooms, complete with a 'jacuzzi' style bath and a separate shower.
Occupying the second floor, the master suite is currently used as a games room/gym, with its own ensuite shower room and WC, making it an incredibly versatile space.
Outside, the property benefits from a large, landscaped driveway, integral garage, and a garden, ideal for relaxing or entertaining.
This home offers the perfect blend of countryside charm and commuter convenience.
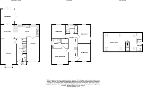
ENTRANCE PORCH(DRAFT DETAILS) Composite double glazed entrance door, composite double glazed door into:
HALLWAY Stairs leading to the first floor, under stairs storage cupboard, doors into the Lounge, Open Plan Dining Kitchen and WC.
LOUNGE 20' 2" x 11' 4" (6.15m x 3.45m) Bay window, opening into:
OPEN PLAN DINING KITCHEN 26' 2" x 10' 4" (7.98m x 3.15m) Stunning high end fitted kitchen with granite work surfaces, breakfast bar, integrated dishwasher, steam oven, microwave, two ovens, induction hob with a down draught excluder, wine cooler. Door leading into the Integral Garage. Bi-folding doors opening into:
ORANGERY 11' 0" x 10' 2" (3.35m x 3.1m) UPVC double glazed, two Tri-folding doors giving access to the garden from the side and rear.
WC WC, vanity sink unit.
FIRST FLOOR
LANDING 19' 5" x 8' 4" (5.92m x 2.54m) Stairs leading to the Second Floor and Master Suite, doors leading into all Bedrooms and the Family Bathroom/WC.
GUEST BEDROOM 11' 5" x 11' 1" (3.48m x 3.38m) Modern fitted wardrobes and bedroom furniture. Door leading into a Dressing Room.
DRESSING ROOM 6' 1" x 4' 5" (1.85m x 1.35m) Hanging rails for clothes, opening into:
ENSUITE SHOWER ROOM/WC Tiled shower cubicle with 'waterfall' shower, vanity sink unit, WC, chrome heated towel rail.
BEDROOM THREE 13' 8" x 9' 0" (4.17m x 2.74m) Modern fitted wardrobes and bedroom furniture.
BEDROOM FOUR 12' 4" x 8' 9" (3.76m x 2.67m) Modern fitted wardrobes and bedroom furniture.
BEDROOM FIVE 10' 5" x 9' 7" (3.18m x 2.92m)
LUXURY FAMILY BATHROOM/WC 8' 5" x 6' 7" (2.57m x 2.01m) 'Jacuzzi' style bath, tiled shower cubicle with shower, vanity sink unit, WC, chrome heated towel rail.
SECOND FLOOR
MASTER SUITE 24' 0" x 13' 6" (7.32m x 4.11m) Currently used as a Games Room/Gym.
Six 'Velux' double glazed windows, storage eaves, cupboard housing the combination boiler. Door leading into:
ENSUITE SHOWER ROOM/WC Tiled shower cubicle with 'waterfall' shower, vanity sink unit, WC.
EXTERIOR/FRONT The property sits at the end of the cul-de-sac. To the front there is a large block paved driveway which leads to the Integral Garage. Gated access runs round the side of the house to the rear garden. The side is a useful storage area which is paved in 'Indian Stone'.
INTEGRAL GARAGE 16' 6" x 8' 4" (5.03m x 2.54m) Up and over electric door, utility area with sink and drainer unit, wall units and plumbing for a washing machine.
REAR GARDEN The garden is private and of a nice size, it has an 'Indian Stone' paved patio area and lawn.
- COUNCIL TAXA payment made to your local authority in order to pay for local services like schools, libraries, and refuse collection. The amount you pay depends on the value of the property.Read more about council Tax in our glossary page.
- Band: E
- PARKINGDetails of how and where vehicles can be parked, and any associated costs.Read more about parking in our glossary page.
- Garage
- GARDENA property has access to an outdoor space, which could be private or shared.
- Yes
- ACCESSIBILITYHow a property has been adapted to meet the needs of vulnerable or disabled individuals.Read more about accessibility in our glossary page.
- Ask agent
Blacklake Drive, Meir Heath, Stoke-on-Trent
Add an important place to see how long it'd take to get there from our property listings.
__mins driving to your place
Get an instant, personalised result:
- Show sellers you’re serious
- Secure viewings faster with agents
- No impact on your credit score
About Findahome Online Ltd, Stoke-on-Trent
Studio 31, St James House, 13 Webberley Lane, Longton, Stoke-on-Trent, ST3 1RJ

Your mortgage
Notes
Staying secure when looking for property
Ensure you're up to date with our latest advice on how to avoid fraud or scams when looking for property online.
Visit our security centre to find out moreDisclaimer - Property reference 101292006990. The information displayed about this property comprises a property advertisement. Rightmove.co.uk makes no warranty as to the accuracy or completeness of the advertisement or any linked or associated information, and Rightmove has no control over the content. This property advertisement does not constitute property particulars. The information is provided and maintained by Findahome Online Ltd, Stoke-on-Trent. Please contact the selling agent or developer directly to obtain any information which may be available under the terms of The Energy Performance of Buildings (Certificates and Inspections) (England and Wales) Regulations 2007 or the Home Report if in relation to a residential property in Scotland.
*This is the average speed from the provider with the fastest broadband package available at this postcode. The average speed displayed is based on the download speeds of at least 50% of customers at peak time (8pm to 10pm). Fibre/cable services at the postcode are subject to availability and may differ between properties within a postcode. Speeds can be affected by a range of technical and environmental factors. The speed at the property may be lower than that listed above. You can check the estimated speed and confirm availability to a property prior to purchasing on the broadband provider's website. Providers may increase charges. The information is provided and maintained by Decision Technologies Limited. **This is indicative only and based on a 2-person household with multiple devices and simultaneous usage. Broadband performance is affected by multiple factors including number of occupants and devices, simultaneous usage, router range etc. For more information speak to your broadband provider.
Map data ©OpenStreetMap contributors.




