Plot for sale
Green Lane, South Chailey, BN8
- PROPERTY TYPE
Plot
- BEDROOMS
3
- BATHROOMS
1
- SIZE
Ask agent
Key features
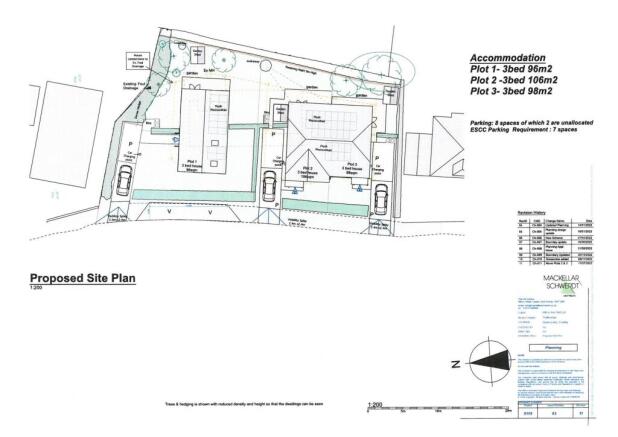
- EXCELLENT OPPORTUNITY TO DEMOLISH & THEN BUILD 3 THREE BEDROOM PROPERTIES (ONE DETACHED & 2 SEMI-DETACHED) ON THIS LOVELY FIFTH OF AN ACRE PLOT
Description
Planning permission has been granted for the demolition of the existing dwelling and the erection of 3 THREE BEDROOM DWELLINGS (one detached & 2 semi-detached properties) by Lewes District Council Ref LW/22/0593 & LW 23/0413 all set on a FIFTH OF AN ACRE PLOT
Situated on the fringe of South Chailey being a popular village located approximately 6 miles to the north of Lewes and approximately 6 to 7 miles to the south east of Haywards Heath and Burgess Hill. The village has a shop with post office facilities, a popular secondary school and is surrounded by open countryside. The hamlet of Chailey Green, 1 mile north, has a church, a pub and a primary school. Plumpton Green has a railway station as does Cooksbridge. Burgess Hill, Lewes and Haywards Heath all have extensive shopping centres, the latter having fast rail services to London (Victoria/London Bridge approx 45 minutes).
DIRECTIONS: From our Newick office on the green head in a westerly direction towards Haywards Heath until reaching the two mini roundabouts at North Chailey. Turn left at the second of these roundabouts taking the A275 south towards Lewes, proceed down this road for a couple of miles until reaching South Chailey. Turn left into Markstakes Lane and then immediately right into Green Lane and “Thelkember” can be found a few hundred yards along on the left.
EPC Rating: F
Brochures
Property BrochureGreen Lane, South Chailey, BN8
NEAREST STATIONS
Distances are straight line measurements from the centre of the postcode- Plumpton Station2.2 miles
- Cooksbridge Station3.0 miles
- Wivelsfield Station4.6 miles
Notes
Disclaimer - Property reference 10c27d52-fc45-4cca-b186-c5880b175cde. The information displayed about this property comprises a property advertisement. Rightmove.co.uk makes no warranty as to the accuracy or completeness of the advertisement or any linked or associated information, and Rightmove has no control over the content. This property advertisement does not constitute property particulars. The information is provided and maintained by Mansell McTaggart, Newick. Please contact the selling agent or developer directly to obtain any information which may be available under the terms of The Energy Performance of Buildings (Certificates and Inspections) (England and Wales) Regulations 2007 or the Home Report if in relation to a residential property in Scotland.
Map data ©OpenStreetMap contributors.







