
St. John's Crescent, London, SW9

- PROPERTY TYPE
Flat
- BEDROOMS
6
- BATHROOMS
2
- SIZE
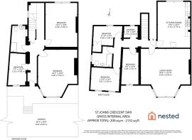
2,152 sq ft
200 sq m
Key features
- Fantastic redevelopment opportunity directly overlooking Max Roach Park
- Exceptional value on £/sq ft basis - huge space for this price
- Superb central Brixton location
- Enormous potential within elegant mid-Victorian architecture
- Currently arranged as 6 bedrooms and 2 bathrooms - historically, consent was granted to convert into 2 flats
- Grand room sizes and ceiling heights, with fantastic internal proportions
- Large private south-facing garden
- 2152 square feet (200 square metres) overall internal space
- Brixton station (Victoria line and Southeastern overground) - 7 minutes' walk
- On-street permit parking is available to purchase via Lambeth
Description
A truly rare property - this redevelopment opportunity directly overlooks a park, and is located within a beautiful Victorian crescent that hasn't seen a private sale since 2008. The flat currently presents as 6 bedrooms and 2 bathrooms over two floors with a private south-facing garden, and is in need of modernisation throughout. The property occupies the lower part of an elegant mid-Victorian villa (and adjoining extension), within the prestigious Brixton Conservation Area. The property offers vast space and potential, with grand room sizes, superb ceiling heights, and fantastic internal proportions. There is scope for considerable change subject to necessary consents, and historically permission was granted for conversion into 2 flats - Lambeth planning portal search reference 08/00973/FUL
Situated directly facing the picturesque Max Roach Park, this property offers a tranquil and scenic outlook. With a large private south-facing garden to the rear, this residence spans 2152 square feet (200 square metres) of internal space. In many ways this property is an unusual find - it was once a family home for the current owners, and is available to purchase for the first time in over 40 years.
The property is conveniently located just 7 minutes' walk from Brixton station, offering easy access to the Victoria line and Southeastern overground services. This property presents an excellent opportunity for those seeking a prestigious residence with huge potential.
EPC Rating: C
Rear Garden
8.65m x 8.81m
Private south-facing rear garden
Parking - Permit
On-street permit parking is available to purchase via Lambeth
- COUNCIL TAXA payment made to your local authority in order to pay for local services like schools, libraries, and refuse collection. The amount you pay depends on the value of the property.Read more about council Tax in our glossary page.
- Band: C
- PARKINGDetails of how and where vehicles can be parked, and any associated costs.Read more about parking in our glossary page.
- Permit
- GARDENA property has access to an outdoor space, which could be private or shared.
- Rear garden
- ACCESSIBILITYHow a property has been adapted to meet the needs of vulnerable or disabled individuals.Read more about accessibility in our glossary page.
- Ask agent
St. John's Crescent, London, SW9
Add an important place to see how long it'd take to get there from our property listings.
__mins driving to your place
Get an instant, personalised result:
- Show sellers you’re serious
- Secure viewings faster with agents
- No impact on your credit score
Affordability
Notes
Staying secure when looking for property
Ensure you're up to date with our latest advice on how to avoid fraud or scams when looking for property online.
Visit our security centre to find out moreDisclaimer - Property reference 2521e6bb-2005-45ed-9c37-13540ae514f0. The information displayed about this property comprises a property advertisement. Rightmove.co.uk makes no warranty as to the accuracy or completeness of the advertisement or any linked or associated information, and Rightmove has no control over the content. This property advertisement does not constitute property particulars. The information is provided and maintained by Nested, Nationwide. Please contact the selling agent or developer directly to obtain any information which may be available under the terms of The Energy Performance of Buildings (Certificates and Inspections) (England and Wales) Regulations 2007 or the Home Report if in relation to a residential property in Scotland.
*This is the average speed from the provider with the fastest broadband package available at this postcode. The average speed displayed is based on the download speeds of at least 50% of customers at peak time (8pm to 10pm). Fibre/cable services at the postcode are subject to availability and may differ between properties within a postcode. Speeds can be affected by a range of technical and environmental factors. The speed at the property may be lower than that listed above. You can check the estimated speed and confirm availability to a property prior to purchasing on the broadband provider's website. Providers may increase charges. The information is provided and maintained by Decision Technologies Limited. **This is indicative only and based on a 2-person household with multiple devices and simultaneous usage. Broadband performance is affected by multiple factors including number of occupants and devices, simultaneous usage, router range etc. For more information speak to your broadband provider.
Map data ©OpenStreetMap contributors.





