Greenholme, Forest Moor Road

- PROPERTY TYPE
Detached
- BEDROOMS
4
- BATHROOMS
2
- SIZE
Ask agent
- TENUREDescribes how you own a property. There are different types of tenure - freehold, leasehold, and commonhold.Read more about tenure in our glossary page.
Freehold
Key features
- Chain Free
- High Ceilings
- Period Features
- Pet and smoke free property
- Rear garden perfect for entertaining
- Sought-After Location
- South Facing
Description
A Prime Value-Add Opportunity with Approved Planning in a Landmark Setting.
A compelling acquisition for investors, developers or strategic owner-occupiers seeking a high-calibre repositioning opportunity. This substantial four-bedroom detached residence occupies an elevated plot with commanding views towards Knaresborough and represents a rare chance to unlock significant capital growth.
Offered to the market for the first time in over 40 years, the property combines strong underlying fundamentals-location, scale, plot size and outlook-with clear and immediate scope for value enhancement.
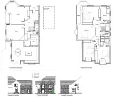
Critically, full planning permission (Ref: 25/01638/FUL) has been granted for a substantial two-storey rear extension and a detached double garage to the frontage. This consent materially de-risks the expansion strategy and provides a defined pathway to increasing both square footage and end value. Documentation is available for review. (Plans can be viewed within the property floor plans)
Internally, the existing accommodation offers generous proportions and a versatile footprint, ideally suited to reconfiguration and contemporary upgrade. The ground floor currently comprises an impressive reception hall, bay-fronted sitting room, formal dining room, family kitchen with utility, ground floor shower room, and a flexible dining/snug area-providing strong structural foundations for open-plan modernisation or luxury specification enhancement.
To the first floor, four bedrooms are arranged around a traditional landing, including a principal suite with a private balcony and uninterrupted rural views-an asset with clear premium positioning potential. A family bathroom completes the layout.
Externally, the property sits within expansive private grounds featuring mature planting, orchard trees, and a secluded terrace. The plot size supports both the approved extension and further landscaping strategies designed to elevate lifestyle appeal and end-market desirability. A private driveway, ample parking and existing garage infrastructure further strengthen the proposition.
The location underpins the investment case. Positioned on the fringe of Knaresborough yet within walking distance of the historic town centre, riverside walks and local amenities, the property benefits from sustained demand drivers. Connectivity to Harrogate, Leeds and the A1(M) ensures broad buyer appeal across commuter and lifestyle markets.
In summary, this is not merely a character residence-it is a scalable asset with planning certainty, structural integrity, and clear headroom for significant value creation through refurbishment, extension and strategic repositioning.
Tenure: Freehold
Brochures
Brochure- COUNCIL TAXA payment made to your local authority in order to pay for local services like schools, libraries, and refuse collection. The amount you pay depends on the value of the property.Read more about council Tax in our glossary page.
- Ask agent
- PARKINGDetails of how and where vehicles can be parked, and any associated costs.Read more about parking in our glossary page.
- Garage,Driveway,Off street
- GARDENA property has access to an outdoor space, which could be private or shared.
- Front garden,Private garden,Rear garden
- ACCESSIBILITYHow a property has been adapted to meet the needs of vulnerable or disabled individuals.Read more about accessibility in our glossary page.
- Ask agent
Energy performance certificate - ask agent
Greenholme, Forest Moor Road
Add an important place to see how long it'd take to get there from our property listings.
__mins driving to your place
Get an instant, personalised result:
- Show sellers you’re serious
- Secure viewings faster with agents
- No impact on your credit score
Your mortgage
Notes
Staying secure when looking for property
Ensure you're up to date with our latest advice on how to avoid fraud or scams when looking for property online.
Visit our security centre to find out moreDisclaimer - Property reference RS0339. The information displayed about this property comprises a property advertisement. Rightmove.co.uk makes no warranty as to the accuracy or completeness of the advertisement or any linked or associated information, and Rightmove has no control over the content. This property advertisement does not constitute property particulars. The information is provided and maintained by Newby James Ltd, Knaresborough. Please contact the selling agent or developer directly to obtain any information which may be available under the terms of The Energy Performance of Buildings (Certificates and Inspections) (England and Wales) Regulations 2007 or the Home Report if in relation to a residential property in Scotland.
*This is the average speed from the provider with the fastest broadband package available at this postcode. The average speed displayed is based on the download speeds of at least 50% of customers at peak time (8pm to 10pm). Fibre/cable services at the postcode are subject to availability and may differ between properties within a postcode. Speeds can be affected by a range of technical and environmental factors. The speed at the property may be lower than that listed above. You can check the estimated speed and confirm availability to a property prior to purchasing on the broadband provider's website. Providers may increase charges. The information is provided and maintained by Decision Technologies Limited. **This is indicative only and based on a 2-person household with multiple devices and simultaneous usage. Broadband performance is affected by multiple factors including number of occupants and devices, simultaneous usage, router range etc. For more information speak to your broadband provider.
Map data ©OpenStreetMap contributors.






