3 bedroom detached house for sale
Coleman Road, Fleckney, Leicester

- PROPERTY TYPE
Detached
- BEDROOMS
3
- BATHROOMS
1
- SIZE
840 sq ft
78 sq m
- TENUREDescribes how you own a property. There are different types of tenure - freehold, leasehold, and commonhold.Read more about tenure in our glossary page.
Freehold
Key features
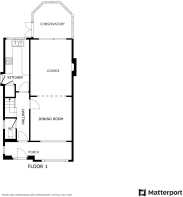
- Detached Family Home Situated on a Corner Plot Position
- Gas Central Heating, Majority Double Glazing
- Entrance Hall with Ground Floor WC
- Lounge with Open Access to Dining Room
- Conservatory
- Fitted Kitchen
- Three Bedrooms
- Shower Room
- Attractive Front & Rear Gardens, Off Road Parking & Garage
- Close to Amenities, Schools & Bus Routes
Description
Located within the south Leicestershire village of Fleckney is this detached family home situated on a corner plot position. Providing great accommodation over two floors to include an entrance porch leading to an entrance hall with ground floor WC, lounge with open aspect to dining room, conservatory and a kitchen. The first floor has three bedrooms, principal with built-in wardrobes and a shower room. Parking is available situated to the rear of the property via off road parking leading to a garage. Outside enjoys attractive front and rear courtyard gardens. Contact our office now to arrange a viewing.
The property is perfectly situated for everyday amenities within the village of Fleckney such as local Co-op, regular bus routes running to and from Leicester City Centre and popular local schooling such as Leicester Grammar School. Well known attractions are also within reach including nearby Wistow Maze in Wistow and both Leicester and Market Harborough train stations with just over an hour commute to London.
EPC Rating: C
Entrance Porch
5.45m x 1.5m
With double glazed window and door to the front elevation, tiled floor, door leading to entrance hall.
Entrance Hall
With oak floor, stairs to first floor, under stairs storage cupboard, radiator.
Dining Room
3.38m x 3.31m
With window to the front elevation, oak floor, radiator, ceiling coving, archway leading to lounge.
Lounge
4.55m x 3.33m
With double glazed patio doors to the rear elevation, oak floor, living flame effect electric fire, surround and hearth, ceiling coving ,TV point, radiator.
Conservatory
3.33m x 2.9m
A double glazed conservatory providing additional living space, with French doors to the rear garden, tiled floor.
Kitchen
4.17m x 2m
With double glazed window to the rear elevation, door to rear garden, a range of wall and base units with work surface over, enamel sink and drainer with mixer tap, space for gas cooker, plumbing for washing machine, space for tumble dryer, space for under counter fridge, under stairs storage cupboard, part tiled walls, tiled floor, spotlights, radiator.
Ground Floor WC
With double glazed window to the side elevation, low-level WC, wash hand basin, oak effect floor, part tiled walls.
First Floor Landing
With double glazed window to the side elevation, loft access.
Bedroom One
3.94m x 3.33m
With double glazed windows to the rear elevation, built-in wardrobes, built-in dressing table and drawers, TV point, radiator.
Bedroom Two
3.43m x 3.33m
With double glazed windows to the front elevation, built-in cupboard, radiator.
Bedroom Three
2.62m x 2.03m
With double glazed window to the rear elevation, radiator.
Shower Room
With double glazed window to the front elevation, corner shower cubicle, low-level WC, wash hand basin with storage below, wall mounted mirror, airing cupboard housing combi boiler, ladder style towel rail/radiator.
Front Garden
With gravelled areas, hedging, paved pathway, flowerbeds and shrubs.
Rear Garden
A mainly gravelled rear garden with paved patio area, flowerbeds and shrubs, fencing to perimeter.
Parking - Off street
Situated to the rear of the property.
Parking - Garage
Situated to the rear of the property.
Disclaimer
Measurements are taken electronically and are for guidance only — not to be relied upon as exact. Services, appliances, and fittings have not been tested. Buyers must satisfy themselves through inspection. Floor plans are not to scale and are for layout guidance only. Knightsbridge Estate Agents make no warranties regarding the property. By law, we must carry out anti-money laundering checks for buyers and sellers. These are handled on our behalf by Lifetime Legal, who will contact you once you instruct us to sell or have an offer accepted. A £60 fee (incl. VAT) covers required data and any manual checks. This must be paid before we can publish your property (for vendors) or issue a memorandum of sale (for buyers). The fee is non-refundable and paid directly to Lifetime Legal. We receive a portion of this fee for facilitating the checks.
Brochures
Key Facts for BuyersProperty Brochure- COUNCIL TAXA payment made to your local authority in order to pay for local services like schools, libraries, and refuse collection. The amount you pay depends on the value of the property.Read more about council Tax in our glossary page.
- Band: C
- PARKINGDetails of how and where vehicles can be parked, and any associated costs.Read more about parking in our glossary page.
- Garage,Off street
- GARDENA property has access to an outdoor space, which could be private or shared.
- Front garden,Rear garden
- ACCESSIBILITYHow a property has been adapted to meet the needs of vulnerable or disabled individuals.Read more about accessibility in our glossary page.
- Ask agent
Energy performance certificate - ask agent
Coleman Road, Fleckney, Leicester
Add an important place to see how long it'd take to get there from our property listings.
__mins driving to your place
Get an instant, personalised result:
- Show sellers you’re serious
- Secure viewings faster with agents
- No impact on your credit score



Your mortgage
Notes
Staying secure when looking for property
Ensure you're up to date with our latest advice on how to avoid fraud or scams when looking for property online.
Visit our security centre to find out moreDisclaimer - Property reference f11360b8-7f5f-4f83-b20a-565013abf6e2. The information displayed about this property comprises a property advertisement. Rightmove.co.uk makes no warranty as to the accuracy or completeness of the advertisement or any linked or associated information, and Rightmove has no control over the content. This property advertisement does not constitute property particulars. The information is provided and maintained by Knightsbridge Estate Agents & Valuers, Wigston. Please contact the selling agent or developer directly to obtain any information which may be available under the terms of The Energy Performance of Buildings (Certificates and Inspections) (England and Wales) Regulations 2007 or the Home Report if in relation to a residential property in Scotland.
*This is the average speed from the provider with the fastest broadband package available at this postcode. The average speed displayed is based on the download speeds of at least 50% of customers at peak time (8pm to 10pm). Fibre/cable services at the postcode are subject to availability and may differ between properties within a postcode. Speeds can be affected by a range of technical and environmental factors. The speed at the property may be lower than that listed above. You can check the estimated speed and confirm availability to a property prior to purchasing on the broadband provider's website. Providers may increase charges. The information is provided and maintained by Decision Technologies Limited. **This is indicative only and based on a 2-person household with multiple devices and simultaneous usage. Broadband performance is affected by multiple factors including number of occupants and devices, simultaneous usage, router range etc. For more information speak to your broadband provider.
Map data ©OpenStreetMap contributors.





