Algarve, Lagoa, Portugal
- PROPERTY TYPE
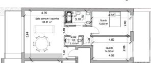
Apartment
- BEDROOMS
2
- BATHROOMS
2
- SIZE
1,173 sq ft
109 sq m
Description
Construction of this luxury apartment will begin in December 2023. This property offers a complete range of top-quality amenities, including a private parking space to park your car safely.
With a spacious and bright interior, this two-bedroom apartment, including a master suite that offers unparalleled comfort, is perfect for hosting your family and guests. You will also appreciate the additional bathroom, ideal for hosting guests or for treating yourself to a moment of relaxation.
The large living room with open kitchen is perfect for relaxing and entertaining guests in a modern and comfortable space. The private garden offers additional outdoor space to enjoy the pleasant climate of the Algarve and to entertain outdoors.
In addition, you will have the possibility to customize some features of this luxury property to meet your needs and preferences. Built to the highest standards, this apartment offers a contemporary design and superior quality finishes, with special attention to detail to create an elegant and comfortable living environment.
If you are looking for a modern, top-quality, and ideally located apartment in Estombar, look no further. This property is an ideal choice for investing in a superior quality residence for your family. Contact us now to schedule a visit and discover everything this luxury apartment in Estombar has to offer. Don't miss this unique opportunity to invest in an exceptional property and live a life of luxury.
#ref: 92178
Algarve, Lagoa, Portugal
NEAREST AIRPORTS
Distances are straight line measurements- Faro(International)28.4 miles
Advice on buying Portuguese property
Learn everything you need to know to successfully find and buy a property in Portugal.
Notes
This is a property advertisement provided and maintained by IAD, Porto (reference 92178) and does not constitute property particulars. Whilst we require advertisers to act with best practice and provide accurate information, we can only publish advertisements in good faith and have not verified any claims or statements or inspected any of the properties, locations or opportunities promoted. Rightmove does not own or control and is not responsible for the properties, opportunities, website content, products or services provided or promoted by third parties and makes no warranties or representations as to the accuracy, completeness, legality, performance or suitability of any of the foregoing. We therefore accept no liability arising from any reliance made by any reader or person to whom this information is made available to. You must perform your own research and seek independent professional advice before making any decision to purchase or invest in overseas property.




