High street retail property for sale
Seven Sisters Road, London, N7
- SIZE AVAILABLE
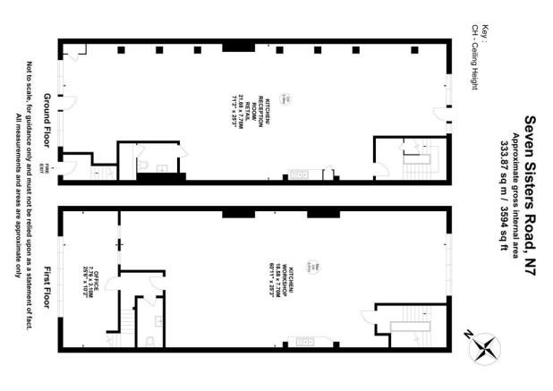
3,594 sq ft
334 sq m
- SECTOR
High street retail property for sale
Key features
- Aluminium Extrusion
- Car Parking To Rear
Description
Ground floor 1797 sq.ft approx and 1798 sq.ft. approx. first floor
Vacant possession July 2025.
The property is presented in a good overall condition with aluminium extrusion glazed frontage, car parking to rear.
We believe the unit may be of interest to developers, as well as investors and owner occupiers, as a number of nearby buildings have been developed to provide residential units (subject to the usual consent).
Location
Set on Seven Sisters Road (A503) within a busy parade. Multiples include Tesco Express together with numerous local traders and eateries. Excellent transport links. Finsbury Park overground and tube a short distance away.
Business Rates
Rateable value - £39,750 (as taken from Gov.uk)
This is not the amount you will pay. The rateable value is used to calculate your rates bill.
Please refer to the Local Authority for more information on rates
Legal Costs
Each side to bear their own legal costs
Tenure
Freehold
EPC
Energy Rating C Valid until 6.3.26
Viewing
Via the owners sole agents PSS Commercial.
VAT
Under the Finance Acts 1989 and 1997 VAT may be levied on the purchase price. We recommend that the prospective buyers establish the VAT implications before entering into any agreement.
Brochures
Seven Sisters Road, London, N7
NEAREST STATIONS
Distances are straight line measurements from the centre of the postcode- Arsenal Station0.4 miles
- Finsbury Park Station0.4 miles
- Holloway Road Station0.5 miles
Notes
Disclaimer - Property reference 1771FH. The information displayed about this property comprises a property advertisement. Rightmove.co.uk makes no warranty as to the accuracy or completeness of the advertisement or any linked or associated information, and Rightmove has no control over the content. This property advertisement does not constitute property particulars. The information is provided and maintained by Paul Simon Seaton Commercial Estate Agents Ltd, London. Please contact the selling agent or developer directly to obtain any information which may be available under the terms of The Energy Performance of Buildings (Certificates and Inspections) (England and Wales) Regulations 2007 or the Home Report if in relation to a residential property in Scotland.
Map data ©OpenStreetMap contributors.




