
The Avenue, Branksome Park, Dorset, BH13

- PROPERTY TYPE
Apartment
- BEDROOMS
3
- BATHROOMS
2
- SIZE
Ask agent
Key features
- Approximately 260 metres from Branksome Chine Beach
- Impressive terrace spanning approx 700 sq ft
- Contemporary architectural style
- Open plan kitchen/living/dining
- High specification with modern fittings
- EPC Rating = B
Description
Description
56 The Avenue is a contemporary development of eleven luxury apartments built circa 2021/22. The striking architectural design sets this block apart from others on this tree lined avenue. It’s ideally located approximately 260 metres from the award winning sandy beaches.
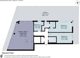
This particular apartment is situated on the second floor spanning from the front to the rear of the block. Approached via a video entry system and code operated passenger lift or via the communal stair case. On entering the property, you get the immediate sense of a high standard of finish, with an abundance of full height glazing, attractive flooring, and zoned underfloor heating.
The principle bedroom suite has the benefit of access onto the terrace, walk through dressing area with fitted wardrobes, and a luxurious shower room. Bedrooms two is equally spacious with access onto the terrace. Bedroom three has fitted wardrobes and would serve well as a single bedroom or as a study or snug. The well appointed family bathroom serves bedroom two and three.
The open plan kitchen/sitting/dining room offers the real wow factor with full height glazed sliding doors to two sides providing access onto the terrace. This space has been cleverly designated into different zones for cooking, dining and relaxing. The modern fitted kitchen has a good range of integral appliances and a separate island.
The size of the terrace is simply fantastic measuring an area in excess of 700 sq ft, which is a size more typically associated with a Penthouse. It offers the perfect space for al fresco dining and entertaining or to just sit out and enjoy the green outlook.
A parking space in the underground car park, together with a store room are also conveyed with the apartment.
NB – photographs taken in June 2025.
Location
This development is situated in Branksome chine, approximately 260 metres from the golden sands of Branksome beach and Rockwater restaurant.
Some of Poole’s finest and most valuable properties can be found in this district. Set amongst picturesque surroundings with many stunning view points plus conveniently located close to the highly regarded village of Canford Cliffs, with an array of restaurants, artisan bakeries, shops, art gallery and many other amenities.
The area is also very well-known for its award winning golden sandy beaches which are absolutely incredible and are easily accessible via multiple different walk-ways. Canford cliffs park is always a massive draw to many families as it has a super play park for children and is only moments from the safe sandy beach.
Conveniently located for the perfect lifestyle where there is an abundance of shops, restaurants, cafes and bars together with excellent facilities for water sports, jet skiing, golfing, sea swimming, jogging around the harbour or having a walk around the areas beautiful tree-lined roads. The wellness scene is exploding here, with a yoga and pilates studios, boutique health-food cafe, sea swimming clubs and much more, all featured recently in the financial times.
Championship golf is available at Parkstone golf course and other local highly regarded clubs at Ferndown and Broadstone and further afield at remedy oak. The tennis community is strong locally with clubs including the east Dorset tennis & croquet club and the west Hants tennis club (which is also an amazing all round leisure club including gym, swimming pool, squash courts and more).
Bournemouth afcb the premier league football club is just approximately 20 minutes’ drive away and affords a very stress free way of watching some of the world’s best footballers on your doorstep.
There are many locally regarded outstanding schools and prestigious private school options within the wider area.
Local mainline stations connect to London waterloo in 2 hours and the m27 and m3 provide links to major towns and cities, such as Southampton, Winchester and London.
Branksome beach 260 metres
Canford cliffs shops 0.6 miles
Westbourne 1.2 miles
Bournemouth centre 2.3 miles
Poole centre 4.4 miles
Bournemouth airport - 8.3 miles
London - 110 miles (1 hour 50 minutes by train)
All times and distances are approximate.
Brochures
Web DetailsParticulars- COUNCIL TAXA payment made to your local authority in order to pay for local services like schools, libraries, and refuse collection. The amount you pay depends on the value of the property.Read more about council Tax in our glossary page.
- Band: F
- PARKINGDetails of how and where vehicles can be parked, and any associated costs.Read more about parking in our glossary page.
- Yes
- GARDENA property has access to an outdoor space, which could be private or shared.
- Ask agent
- ACCESSIBILITYHow a property has been adapted to meet the needs of vulnerable or disabled individuals.Read more about accessibility in our glossary page.
- Ask agent
The Avenue, Branksome Park, Dorset, BH13
Add an important place to see how long it'd take to get there from our property listings.
__mins driving to your place
Get an instant, personalised result:
- Show sellers you’re serious
- Secure viewings faster with agents
- No impact on your credit score
Your mortgage
Notes
Staying secure when looking for property
Ensure you're up to date with our latest advice on how to avoid fraud or scams when looking for property online.
Visit our security centre to find out moreDisclaimer - Property reference CFS240152. The information displayed about this property comprises a property advertisement. Rightmove.co.uk makes no warranty as to the accuracy or completeness of the advertisement or any linked or associated information, and Rightmove has no control over the content. This property advertisement does not constitute property particulars. The information is provided and maintained by Savills, Canford Cliffs. Please contact the selling agent or developer directly to obtain any information which may be available under the terms of The Energy Performance of Buildings (Certificates and Inspections) (England and Wales) Regulations 2007 or the Home Report if in relation to a residential property in Scotland.
*This is the average speed from the provider with the fastest broadband package available at this postcode. The average speed displayed is based on the download speeds of at least 50% of customers at peak time (8pm to 10pm). Fibre/cable services at the postcode are subject to availability and may differ between properties within a postcode. Speeds can be affected by a range of technical and environmental factors. The speed at the property may be lower than that listed above. You can check the estimated speed and confirm availability to a property prior to purchasing on the broadband provider's website. Providers may increase charges. The information is provided and maintained by Decision Technologies Limited. **This is indicative only and based on a 2-person household with multiple devices and simultaneous usage. Broadband performance is affected by multiple factors including number of occupants and devices, simultaneous usage, router range etc. For more information speak to your broadband provider.
Map data ©OpenStreetMap contributors.





