
London Road, Northwich

- PROPERTY TYPE
Semi-Detached
- BEDROOMS
2
- BATHROOMS
1
- SIZE
Ask agent
- TENUREDescribes how you own a property. There are different types of tenure - freehold, leasehold, and commonhold.Read more about tenure in our glossary page.
Freehold
Key features
- THIS IS A CHAIN FREE PURCHASE
- An attractive 2 bed semi detached house
- Gas central heating & PVCu double glazed
- Great location near to town centre and A556
- Also near to delightful riverside walks
- With potential to further improve
Description
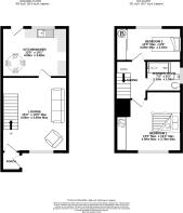
A fantastic opportunity in a prime location which is being offered for sale with NO FORWARD CHAIN. This is a modern and attractive semi detached property with the benefits of gas central heating and PVCu double glazed windows. The house offers excellent potential to update and to create an ideal home. The layout n summary comprises entrance porch, spacious lounge and open plan dining kitchen. On the first floor there are two bedrooms each with fitted wardrobes and a recently improved shower room. Outside there is a fully enclosed low maintenance garden space at the rear.
This property occupies a corner position and is conveniently situated in a great location for Northwich town centre with all of its amenities. These include a comprehensive range of shops and stores, Waitrose supermarket against the pretty Northwich marina, bars/restaurants, Barons Quay shopping complex with multiplex cinema and memorial court with swimming pool and gym. Notably nearby is access to miles of delightful river walks perfect for walkers and cyclists.The A556 bypass is a short drive away and connects directly to the motorway network. For education, Leftwich County High School and the highly rated Sir John Deanes College are both around 10 minutes walk.
SERVICES : All main services are connected. TENURE : The property is Freehold and free from chief rent. NOTE : None of the services of fittings have been tested. Buyers are advised to obtain their own independent reports. ASSESSMENTS : Cheshire West and Chester Tax Band B - Energy Efficiency Rating Band C
SERVICES : All main services are connected. TENURE : The property is Freehold and free from chief rent. NOTE : None of the services of fittings have been tested. Buyers are advised to obtain their own independent reports. ASSESSMENTS : Cheshire West and Chester Tax Band B - Energy Efficiency Rating Band C
Brochures
EM 5 Page Brochure- London Road (1).pdf- COUNCIL TAXA payment made to your local authority in order to pay for local services like schools, libraries, and refuse collection. The amount you pay depends on the value of the property.Read more about council Tax in our glossary page.
- Band: B
- PARKINGDetails of how and where vehicles can be parked, and any associated costs.Read more about parking in our glossary page.
- Ask agent
- GARDENA property has access to an outdoor space, which could be private or shared.
- Back garden
- ACCESSIBILITYHow a property has been adapted to meet the needs of vulnerable or disabled individuals.Read more about accessibility in our glossary page.
- Ask agent
London Road, Northwich
Add an important place to see how long it'd take to get there from our property listings.
__mins driving to your place
Get an instant, personalised result:
- Show sellers you’re serious
- Secure viewings faster with agents
- No impact on your credit score
Your mortgage
Notes
Staying secure when looking for property
Ensure you're up to date with our latest advice on how to avoid fraud or scams when looking for property online.
Visit our security centre to find out moreDisclaimer - Property reference EM-162718. The information displayed about this property comprises a property advertisement. Rightmove.co.uk makes no warranty as to the accuracy or completeness of the advertisement or any linked or associated information, and Rightmove has no control over the content. This property advertisement does not constitute property particulars. The information is provided and maintained by Edward Mellor Ltd, Northwich. Please contact the selling agent or developer directly to obtain any information which may be available under the terms of The Energy Performance of Buildings (Certificates and Inspections) (England and Wales) Regulations 2007 or the Home Report if in relation to a residential property in Scotland.
*This is the average speed from the provider with the fastest broadband package available at this postcode. The average speed displayed is based on the download speeds of at least 50% of customers at peak time (8pm to 10pm). Fibre/cable services at the postcode are subject to availability and may differ between properties within a postcode. Speeds can be affected by a range of technical and environmental factors. The speed at the property may be lower than that listed above. You can check the estimated speed and confirm availability to a property prior to purchasing on the broadband provider's website. Providers may increase charges. The information is provided and maintained by Decision Technologies Limited. **This is indicative only and based on a 2-person household with multiple devices and simultaneous usage. Broadband performance is affected by multiple factors including number of occupants and devices, simultaneous usage, router range etc. For more information speak to your broadband provider.
Map data ©OpenStreetMap contributors.





