
4 bedroom town house for sale
Greenhills Close | Knights View, Macclesfield, SK11

- PROPERTY TYPE
Town House
- BEDROOMS
4
- BATHROOMS
3
- SIZE
Ask agent
- TENUREDescribes how you own a property. There are different types of tenure - freehold, leasehold, and commonhold.Read more about tenure in our glossary page.
Ask agent
Description
Ideally located close to Macclesfield town centre, this superb new development of twelve townhouses enjoys spectacular views over Knights Pool. These are spacious homes, most offering four bedrooms and ranging from 1,100 to 1,700 square feet of living space.
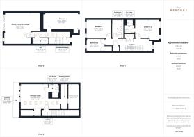
The Knightsley is a spacious three-storey home with four bedrooms, an integral garage, and a private roof terrace.
On the ground floor, you will find an integral garage, entrance hall with WC and storage, a central kitchen, and a rear-facing lounge/diner with bi-folding doors to the garden.
The first floor features a front-facing en-suite bedroom, two rear-facing bedrooms (one with a built-in cupboard), a family bathroom, and a separate storage room.
The top floor is home to a luxurious rear-facing principal suite, complete with a dressing area, en-suite, and access to a private roof terrace - perfect for quiet mornings or summer evenings.
Externally, The Knightsley includes driveway parking to the front, a private rear garden, and a bin store located at the back.
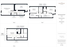
The Knightsley is the largest house type in the development, offering 1,824 sq ft across three floors. It includes four bedrooms, an integral garage, and a private roof terrace.
On the ground floor, there’s an integral garage, entrance hall with WC and storage, a central kitchen, and a rear-facing lounge/diner with bi-folding doors opening onto the garden.
The first floor features a front-facing en-suite bedroom, two rear-facing bedrooms (one with a built-in cupboard), a family bathroom, and a separate storage room.
The top floor is dedicated to a luxurious rear-facing principal suite, complete with a dressing area, en-suite, and access to a private roof terrace overlooking Knights Pool - ideal for quiet mornings or summer evenings.
Externally, The Knightsley benefits from driveway parking to the front, a private rear garden, and a bin store to the rear.
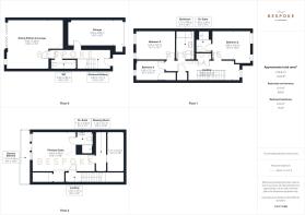
The Knightsley is the largest house type in the development, offering 1,824 sq ft across three floors. It includes four bedrooms, an integral garage, and a private roof terrace.
On the ground floor, there’s an integral garage, entrance hall with WC and storage, a central kitchen, and a rear-facing lounge/diner with bi-folding doors opening onto the garden.
The first floor features a front-facing en-suite bedroom, two rear-facing bedrooms (one with a built-in cupboard), a family bathroom, and a separate storage room.
The top floor is dedicated to a luxurious rear-facing principal suite, complete with a dressing area, en-suite, and access to a private roof terrace overlooking Knights Pool - ideal for quiet mornings or summer evenings.
Externally, The Knightsley benefits from driveway parking to the front, a private rear garden, and a bin store to the rear.
Phase One
Plot 1: The Silk - £350,000 - SSTC
Plot 2: The Weavers - £400,000 - SSTC
Plot 3: The Weavers - £400,000 - SSTC
Plot 4: The Knightsley - £415,000 - Available
Plot 5: The Knightlsey - £415,000 - SSTC
Plot 6: The Treacle - £410,000 - SSTC
Phase Two
Plot 7: The Buckingham - £410,000 - Available
Plot 8: The Knightsley - £435,000 - SSTC
Plot 9: The Knightsley - £435,000 - SSTC
Plot 10: The Knightsley - £435,000 - SSTC
Plot 11: The Knightsley - £435,000 - SSTC
Plot 12: The Buckingham - £410,000 - Available
- COUNCIL TAXA payment made to your local authority in order to pay for local services like schools, libraries, and refuse collection. The amount you pay depends on the value of the property.Read more about council Tax in our glossary page.
- Ask agent
- PARKINGDetails of how and where vehicles can be parked, and any associated costs.Read more about parking in our glossary page.
- Off street,Private
- GARDENA property has access to an outdoor space, which could be private or shared.
- Private garden
- ACCESSIBILITYHow a property has been adapted to meet the needs of vulnerable or disabled individuals.Read more about accessibility in our glossary page.
- Ask agent
Energy performance certificate - ask agent
Greenhills Close | Knights View, Macclesfield, SK11
Add an important place to see how long it'd take to get there from our property listings.
__mins driving to your place
Get an instant, personalised result:
- Show sellers you’re serious
- Secure viewings faster with agents
- No impact on your credit score
Your mortgage
Notes
Staying secure when looking for property
Ensure you're up to date with our latest advice on how to avoid fraud or scams when looking for property online.
Visit our security centre to find out moreDisclaimer - Property reference P2382. The information displayed about this property comprises a property advertisement. Rightmove.co.uk makes no warranty as to the accuracy or completeness of the advertisement or any linked or associated information, and Rightmove has no control over the content. This property advertisement does not constitute property particulars. The information is provided and maintained by BESPOKE, Macclesfield. Please contact the selling agent or developer directly to obtain any information which may be available under the terms of The Energy Performance of Buildings (Certificates and Inspections) (England and Wales) Regulations 2007 or the Home Report if in relation to a residential property in Scotland.
*This is the average speed from the provider with the fastest broadband package available at this postcode. The average speed displayed is based on the download speeds of at least 50% of customers at peak time (8pm to 10pm). Fibre/cable services at the postcode are subject to availability and may differ between properties within a postcode. Speeds can be affected by a range of technical and environmental factors. The speed at the property may be lower than that listed above. You can check the estimated speed and confirm availability to a property prior to purchasing on the broadband provider's website. Providers may increase charges. The information is provided and maintained by Decision Technologies Limited. **This is indicative only and based on a 2-person household with multiple devices and simultaneous usage. Broadband performance is affected by multiple factors including number of occupants and devices, simultaneous usage, router range etc. For more information speak to your broadband provider.
Map data ©OpenStreetMap contributors.








