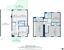
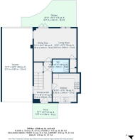
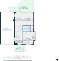
Leaf Hill Drive, Neave Place, Noak Hill, RM3 7FA

- PROPERTY TYPE
Semi-Detached
- BEDROOMS
3
- BATHROOMS
4
- SIZE
1,130 sq ft
105 sq m
Key features
- Three Double Bedrooms – Spacious and comfortable for the whole family.
- Three Washrooms – plus a ground floor WC, two en-suite shower rooms and a family bathroom.
- Modern Fitted Kitchen – Built-in appliances, great storage, and ample workspace.
- Open-Plan Living Area – Ideal for entertaining, with access to the garden.
- Landscaped Low-Maintenance Garden – Perfect for outdoor dining and relaxation.
- Double Carport – Off-street parking for two vehicles.
- Peaceful Noak Hill Location – A quiet setting near both countryside and town.
- Excellent Transport Links – Direct buses to Harold Wood (Elizabeth Line), Gidea Park & Romford.
- Excellent Transport Links – Direct buses to Harold Wood (Elizabeth Line), Gidea Park & Romford.
- AW1150
Description
Stylish Three-Bedroom Link Home in Neave Place, Noak Hill
Welcome to your new home! Nestled in the peaceful surroundings of Noak Hill, this beautifully presented three-bedroom link property is the perfect blend of countryside charm and urban convenience.
Outside, the home boasts a generous carport with space for two vehicles, plus a side gate leading to the landscaped rear garden — perfect for low-maintenance living and alfresco dining.
Step inside to a spacious hallway with a convenient ground-floor WC. The modern fitted kitchen features built-in appliances, excellent storage, and plenty of workspace to inspire your inner chef. The open-plan living and dining area is ideal for entertaining, with double doors leading out to the private garden space.
Upstairs, you’ll find three well-proportioned double bedrooms, complemented by three stylish washrooms, offering flexibility and comfort for growing families or visiting guests.
Location-wise, this home enjoys the best of both worlds — just moments from open countryside and yet close to town amenities. Direct bus links connect you to Harold Wood’s Elizabeth Line station, as well as nearby Gidea Park and Romford. Excellent local schools, parks, shops, and two gyms are nearby, and you’re conveniently located opposite a sports and recreation complex.
A truly turn-key family home in a sought-after area — early viewing is highly recommended!
Get in touch today to book your private tour.
- COUNCIL TAXA payment made to your local authority in order to pay for local services like schools, libraries, and refuse collection. The amount you pay depends on the value of the property.Read more about council Tax in our glossary page.
- Band: D
- PARKINGDetails of how and where vehicles can be parked, and any associated costs.Read more about parking in our glossary page.
- Yes
- GARDENA property has access to an outdoor space, which could be private or shared.
- Private garden
- ACCESSIBILITYHow a property has been adapted to meet the needs of vulnerable or disabled individuals.Read more about accessibility in our glossary page.
- Level access
Energy performance certificate - ask agent
Leaf Hill Drive, Neave Place, Noak Hill, RM3 7FA
Add an important place to see how long it'd take to get there from our property listings.
__mins driving to your place
Get an instant, personalised result:
- Show sellers you’re serious
- Secure viewings faster with agents
- No impact on your credit score
Your mortgage
Notes
Staying secure when looking for property
Ensure you're up to date with our latest advice on how to avoid fraud or scams when looking for property online.
Visit our security centre to find out moreDisclaimer - Property reference S1356717. The information displayed about this property comprises a property advertisement. Rightmove.co.uk makes no warranty as to the accuracy or completeness of the advertisement or any linked or associated information, and Rightmove has no control over the content. This property advertisement does not constitute property particulars. The information is provided and maintained by eXp UK, London. Please contact the selling agent or developer directly to obtain any information which may be available under the terms of The Energy Performance of Buildings (Certificates and Inspections) (England and Wales) Regulations 2007 or the Home Report if in relation to a residential property in Scotland.
*This is the average speed from the provider with the fastest broadband package available at this postcode. The average speed displayed is based on the download speeds of at least 50% of customers at peak time (8pm to 10pm). Fibre/cable services at the postcode are subject to availability and may differ between properties within a postcode. Speeds can be affected by a range of technical and environmental factors. The speed at the property may be lower than that listed above. You can check the estimated speed and confirm availability to a property prior to purchasing on the broadband provider's website. Providers may increase charges. The information is provided and maintained by Decision Technologies Limited. **This is indicative only and based on a 2-person household with multiple devices and simultaneous usage. Broadband performance is affected by multiple factors including number of occupants and devices, simultaneous usage, router range etc. For more information speak to your broadband provider.
Map data ©OpenStreetMap contributors.





