4 bedroom detached house for sale
Havelock Road, Maidenhead, SL6

- PROPERTY TYPE
Detached
- BEDROOMS
4
- BATHROOMS
2
- SIZE
Ask agent
- TENUREDescribes how you own a property. There are different types of tenure - freehold, leasehold, and commonhold.Read more about tenure in our glossary page.
Freehold
Key features
- Walking distance to acres of National Trust Lands at Maidenhead Thicket, local shops and amenities
- Close to Thicket Corner for connection to M4/M40/M25 and less than 2 miles from Maidenhead station with fast trains to London (Elizabeth Line)
- NO ONWARD CHAIN
- En-Suite
- Parking for 3 Cars
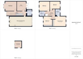
- Kitchen/Breakfast Room
- Bi-Folding Doors
- Garden Office
- Detached
- Four Double Bedrooms
Description
NO ONWARD CHAIN Who Property are proud to present this four-bedroom detached home, thoughtfully extended and beautifully finished.
Nestled in a sought-after location in Maidenhead, this beautifully presented four double bedroom detached property offers the perfect blend of contemporary style and family-friendly living.
The heart of the home is the impressive open-plan kitchen/breakfast room, complete with a fully integrated kitchen and sleek bi-folding doors that open directly onto the private rear garden. A separate utility room adds convenience, while a cosy snug provides an intimate space for relaxation. To the front of the property, a spacious living room offers a welcoming retreat with plenty of natural light.
Upstairs, the generous master bedroom features its own stylish ensuite, while the three further double bedrooms are served by a well-appointed family bathroom.
Outside, the property continues to impress with a private garden and a modern external office pod – ideal for remote working. There is also off-street parking for three vehicles.
Ideally situated within easy reach of Maidenhead town centre, this property is also close to a selection of excellent schools, including Alwyn Infant, Courthouse Junior, Desborough School, Cox Green School, Newlands Girls' School, Altwood Church of England Secondary, and Furze Platt Senior School.
- COUNCIL TAXA payment made to your local authority in order to pay for local services like schools, libraries, and refuse collection. The amount you pay depends on the value of the property.Read more about council Tax in our glossary page.
- Band: G
- PARKINGDetails of how and where vehicles can be parked, and any associated costs.Read more about parking in our glossary page.
- Yes
- GARDENA property has access to an outdoor space, which could be private or shared.
- Yes
- ACCESSIBILITYHow a property has been adapted to meet the needs of vulnerable or disabled individuals.Read more about accessibility in our glossary page.
- Ask agent
Havelock Road, Maidenhead, SL6
Add an important place to see how long it'd take to get there from our property listings.
__mins driving to your place
Get an instant, personalised result:
- Show sellers you’re serious
- Secure viewings faster with agents
- No impact on your credit score

Your mortgage
Notes
Staying secure when looking for property
Ensure you're up to date with our latest advice on how to avoid fraud or scams when looking for property online.
Visit our security centre to find out moreDisclaimer - Property reference S1357710. The information displayed about this property comprises a property advertisement. Rightmove.co.uk makes no warranty as to the accuracy or completeness of the advertisement or any linked or associated information, and Rightmove has no control over the content. This property advertisement does not constitute property particulars. The information is provided and maintained by Who Property, Maidenhead. Please contact the selling agent or developer directly to obtain any information which may be available under the terms of The Energy Performance of Buildings (Certificates and Inspections) (England and Wales) Regulations 2007 or the Home Report if in relation to a residential property in Scotland.
*This is the average speed from the provider with the fastest broadband package available at this postcode. The average speed displayed is based on the download speeds of at least 50% of customers at peak time (8pm to 10pm). Fibre/cable services at the postcode are subject to availability and may differ between properties within a postcode. Speeds can be affected by a range of technical and environmental factors. The speed at the property may be lower than that listed above. You can check the estimated speed and confirm availability to a property prior to purchasing on the broadband provider's website. Providers may increase charges. The information is provided and maintained by Decision Technologies Limited. **This is indicative only and based on a 2-person household with multiple devices and simultaneous usage. Broadband performance is affected by multiple factors including number of occupants and devices, simultaneous usage, router range etc. For more information speak to your broadband provider.
Map data ©OpenStreetMap contributors.




