
Swan Lane, Sellindge, Ashford, Kent, TN25

- PROPERTY TYPE
Detached
- BEDROOMS
3
- BATHROOMS
1
- SIZE
1,258 sq ft
117 sq m
- TENUREDescribes how you own a property. There are different types of tenure - freehold, leasehold, and commonhold.Read more about tenure in our glossary page.
Freehold
Key features
- Village Location
- Three Bedrooms
- Detached Property
- Potential To Extend
- Quadruple Garage
- Large Enclosed Rear Garden
- Double Glazing
- Conservatory
- Sought After Location
- Stunning Farmland Views
Description
The property is located down a farm track off Swan Lane and enjoys farmland views on all sides, so if privacy is important to you this could be the one for you!.
So what's on offer? It's all about the potential with this property as in our view the property has scope to extend the existing house and also potential to convert the garage in to an annexe or ancillary accommodation if required, of course all subject to planning permission being obtained and obtainable.
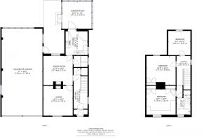
On the ground floor the front door opens to the hallway with stairs leading to the first floor and door leading to the dining room which has a solid fuel fire, window to the rear, large storage cupboard and door leading to the lounge which overlooks the front. The kitchen has a range of modern wall and base units, work surfaces, inset sink, built in oven and hob with extractor over, window to the side and door leading to the double glazed conservatory which opens ot the garden.
On the first floor there are three bedrooms, the main bedroom has fitted cupboards and window to the front which has fine views. The second bedroom also has built in cupboards and window to the rear again with farmland views and bedroom three also overlooks the rear. The bathroom houses a white suite with panelled bath and shower attachment over, w.c and basin.
The property stands in a plot of approx 0.17 acres and is accessed off a farm track. There is ample parking to the front and to the side there is substantial garaging. The garage measures internally 11m x 5.18m (36'3
Disclaimer
The Agent, for themselves and for the vendors of this property whose agents they are, give notice that:
(a) The particulars are produced in good faith, are set out as a general guide only, and do not constitute any part of a contract
(b) No person within the employment of The Agent or any associate of that company has any authority to make or give any representation or warranty whatsoever, in relation to the property.
(c) Any appliances, equipment, installations, fixtures, fittings or services at the property have not been tested by us and we therefore cannot verify they are in working order or fit for purpose.
Lounge - 3.79 x 3.73 m (12′5″ x 12′3″ ft)
Dining Room - 3.73 x 3.71 m (12′3″ x 12′2″ ft)
Kitchen - 3.02 x 2.90 m (9′11″ x 9′6″ ft)
Conservatory - 3.71 x 3.45 m (12′2″ x 11′4″ ft)
Bedroom 1 - 3.72 x 3.23 m (12′2″ x 10′7″ ft)
Bedroom 2 - 3.72 x 3.68 m (12′2″ x 12′1″ ft)
Bedroom 3 - 3.07 x 2.85 m (10′1″ x 9′4″ ft)
Bathroom - 2.45 x 1.78 m (8′0″ x 5′10″ ft)
Quadruple Garage - 11.05 x 5.18 m (36′3″ x 16′12″ ft)
Brochures
Property Brochure- COUNCIL TAXA payment made to your local authority in order to pay for local services like schools, libraries, and refuse collection. The amount you pay depends on the value of the property.Read more about council Tax in our glossary page.
- Band: E
- PARKINGDetails of how and where vehicles can be parked, and any associated costs.Read more about parking in our glossary page.
- Yes
- GARDENA property has access to an outdoor space, which could be private or shared.
- Yes
- ACCESSIBILITYHow a property has been adapted to meet the needs of vulnerable or disabled individuals.Read more about accessibility in our glossary page.
- Ask agent
Swan Lane, Sellindge, Ashford, Kent, TN25
Add an important place to see how long it'd take to get there from our property listings.
__mins driving to your place
Get an instant, personalised result:
- Show sellers you’re serious
- Secure viewings faster with agents
- No impact on your credit score
Your mortgage
Notes
Staying secure when looking for property
Ensure you're up to date with our latest advice on how to avoid fraud or scams when looking for property online.
Visit our security centre to find out moreDisclaimer - Property reference 2490. The information displayed about this property comprises a property advertisement. Rightmove.co.uk makes no warranty as to the accuracy or completeness of the advertisement or any linked or associated information, and Rightmove has no control over the content. This property advertisement does not constitute property particulars. The information is provided and maintained by Evolution Properties, Ashford. Please contact the selling agent or developer directly to obtain any information which may be available under the terms of The Energy Performance of Buildings (Certificates and Inspections) (England and Wales) Regulations 2007 or the Home Report if in relation to a residential property in Scotland.
*This is the average speed from the provider with the fastest broadband package available at this postcode. The average speed displayed is based on the download speeds of at least 50% of customers at peak time (8pm to 10pm). Fibre/cable services at the postcode are subject to availability and may differ between properties within a postcode. Speeds can be affected by a range of technical and environmental factors. The speed at the property may be lower than that listed above. You can check the estimated speed and confirm availability to a property prior to purchasing on the broadband provider's website. Providers may increase charges. The information is provided and maintained by Decision Technologies Limited. **This is indicative only and based on a 2-person household with multiple devices and simultaneous usage. Broadband performance is affected by multiple factors including number of occupants and devices, simultaneous usage, router range etc. For more information speak to your broadband provider.
Map data ©OpenStreetMap contributors.





