467 bedroom house for sale
Western Cape, Paarl, South Africa
- PROPERTY TYPE
House
- BEDROOMS
467
- BATHROOMS
467
- SIZE
Ask agent
Description
An outstanding opportunity to acquire a fully-zoned, large-scale residential development in one of the Western Cape’s most sought-after growth nodes. Situated just minutes from Paarl’s CBD, Mount Pearl Estate is positioned to meet the growing demand for secure, lifestyle-driven living in the Cape Winelands.
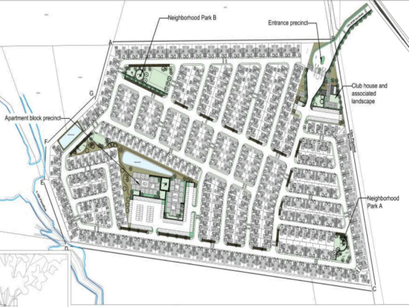
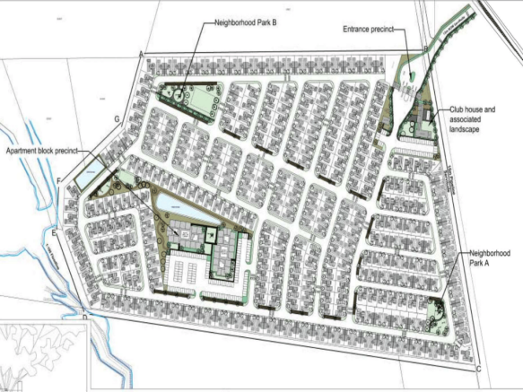
Development Summary:
371 Freehold Plot-and-Plan Homes
96 Sectional Title Apartments
Fully serviced with approved bulk infrastructure
Designed in timeless Cape Vernacular architectural style
Homes are thoughtfully planned with open-plan layouts, ample natural light, mountain views, and outdoor living features such as patios or balconies. This is an ideal offering for both families and young professionals looking for quality, security, and accessibility.
Planning & Compliance:
Fully Zoned for Residential Use
All environmental impact assessments completed
Heritage and Agricultural (70/70) approvals secured
Site planning geared for phased development or immediate rollout
Lifestyle Features & Amenities:
Mount Pearl has been designed with family and community well-being in mind:
Landscaped walking paths throughout the estate
Kids’ play parks and open green spaces
Modern clubhouse with indoor and outdoor leisure areas
Quiet, secure environment surrounded by nature
Advanced Security:
The estate offers world-class security, including:
2.4m electric perimeter fencing
Anti-digging technology
24/7 monitored thermal camera surveillance
RF tag automated gate access for residents
Strategic Location:
Less than 5 minutes to Paarl CBD
Easy access to top schools, shopping centres, and healthcare facilities
Within close proximity to major transport routes (N1) and wine tourism hubs
Whether you’re looking to develop for sale, rental, or sectional title investment, Mount Pearl Estate offers a ready-to-launch, scalable development in one of South Africa’s fastest-growing regions. The estate combines market-ready zoning, modern infrastructure, and unmatched lifestyle features — all in a location with proven residential demand.
Contact us for more information or to arrange a site visit.
R70 000 000 EXCLUSIVE OF VAT
Western Cape, Paarl, South Africa
NEAREST AIRPORTS
Distances are straight line measurements- Cape Town(International)29.4 miles
Notes
This is a property advertisement provided and maintained by Hamptons, International (reference 20768136_14619756) and does not constitute property particulars. Whilst we require advertisers to act with best practice and provide accurate information, we can only publish advertisements in good faith and have not verified any claims or statements or inspected any of the properties, locations or opportunities promoted. Rightmove does not own or control and is not responsible for the properties, opportunities, website content, products or services provided or promoted by third parties and makes no warranties or representations as to the accuracy, completeness, legality, performance or suitability of any of the foregoing. We therefore accept no liability arising from any reliance made by any reader or person to whom this information is made available to. You must perform your own research and seek independent professional advice before making any decision to purchase or invest in overseas property.




