Nags Head Yorkley Slade, Yorkley Slade, GL15 4RX
- SIZE
 Ask agent
- SECTOR
 Pub for sale
Key features
- Beautiful Gloucestershire location
 - Views of the River Severn and Vale of Berkeley
 - 30 Mins from Cheltenham
 - Extensive site of 2.9 acres
 - Main bar, 2 x lounge areas (c 60)
 - Abundance of external seating (100+)
 - 3 bedroom private accommodation
 - Needs refurbishment & decorating
 - Available with vacant possession (closed)
 - Sold as Seen
 
Description
The Nags Head is a pleasant white-washed rendered building that dates from 1788. It is a single storey building with roof loft.
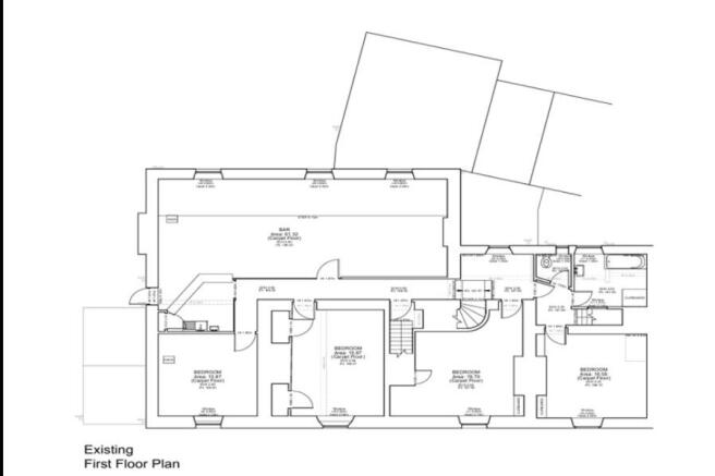
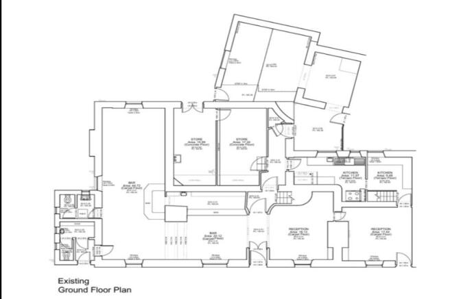
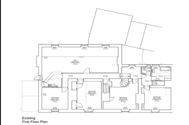
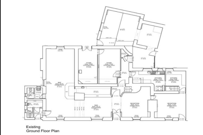
The pub is open plan in layout but solidly traditional, with an L-Shape main bar area (c 30), 2 reception/lounge areas (c 30) and a Ladies and Gents WC. There is also an upstairs area previously used as a skittle alley/bar/function room. There is a trade kitchen with prep area, ancillary storage space and a ground floor cellar.
The 1st floor also includes private accommodation, consisting of 3 bedrooms, lounge and bathroom. The access is internal only.
All the areas are tired and in need of refurbishment and restoration.
There is an extensive grassed field area to the rear and a beer garden close to the pub (c 100). To the front of the Nags Head is a pleasant enclosed grassed area laid out with bench tables (c 30). There are extensive views to be enjoyed from an adjoining paddock, with a panoramic vista down towards the River Severn and onto the Vale of Berkeley and the hills beyond.
Nags Head Yorkley Slade, Yorkley Slade, GL15 4RX
NEAREST STATIONS
Distances are straight line measurements from the centre of the postcode- Lydney Station3.2 miles
 
Notes
Disclaimer - Property reference ae33aeb7-6219-455f-9f7c-5b0115b01ad4. The information displayed about this property comprises a property advertisement. Rightmove.co.uk makes no warranty as to the accuracy or completeness of the advertisement or any linked or associated information, and Rightmove has no control over the content. This property advertisement does not constitute property particulars. The information is provided and maintained by Everard Cole Ltd, Cambridge. Please contact the selling agent or developer directly to obtain any information which may be available under the terms of The Energy Performance of Buildings (Certificates and Inspections) (England and Wales) Regulations 2007 or the Home Report if in relation to a residential property in Scotland.
Map data ©OpenStreetMap contributors.





