
Welby Road, Birmingham, West Midlands, B28

- PROPERTY TYPE
Semi-Detached
- BEDROOMS
3
- BATHROOMS
3
- SIZE
Ask agent
- TENUREDescribes how you own a property. There are different types of tenure - freehold, leasehold, and commonhold.Read more about tenure in our glossary page.
Freehold
Description
Oakmans are delighted to present this beautiful, three storey family home located on the very popular development on Welby Road in Hall Green, B28. The property is ideally located for many amenities, transport links, shops and schools and is very close proximity of Hall Green Train Station.
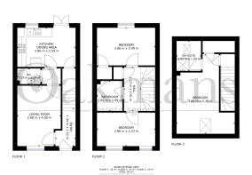
The ground floor of the property comprises; downstairs WC with sink basin, spacious lounge, kitchen/ diner having ample cupboard space with worktops over, fitted oven and hob and space / plumbing for washing machine, integrated dishwasher with dual aspect lighting from the UPVC windows. There are also double doors leading to the garden. The garden is south-east facing, benefiting from ample sunlight. The garden also provides access to the front of the property & driveway via a secure side door in the fence.
To the first floor of the family home we have two double bedrooms; both carpeted and neutral, with central heating radiators and UPVC windows and the 4pc family bathroom comprising; low level WC, sink basin and paneled bath with mixer tap and shower. Via the second staircase to the second floor, we have the master bedroom. The master bedroom benefits from a private en-suite, ample light from the double-glazed windows in the roof & a integrated storage unit.
Located ideally for local amenities, transport links, primary & secondary schools, local restaurants and playing fields.
We are advised by the Vendor that the property is Freehold and is council tax is Band C.
The property is also located on an unadopted road.
All information must be verified by a legal representative.
- COUNCIL TAXA payment made to your local authority in order to pay for local services like schools, libraries, and refuse collection. The amount you pay depends on the value of the property.Read more about council Tax in our glossary page.
- Band: C
- PARKINGDetails of how and where vehicles can be parked, and any associated costs.Read more about parking in our glossary page.
- Yes
- GARDENA property has access to an outdoor space, which could be private or shared.
- Yes
- ACCESSIBILITYHow a property has been adapted to meet the needs of vulnerable or disabled individuals.Read more about accessibility in our glossary page.
- Ask agent
Energy performance certificate - ask agent
Welby Road, Birmingham, West Midlands, B28
Add an important place to see how long it'd take to get there from our property listings.
__mins driving to your place
Get an instant, personalised result:
- Show sellers you’re serious
- Secure viewings faster with agents
- No impact on your credit score
Your mortgage
Notes
Staying secure when looking for property
Ensure you're up to date with our latest advice on how to avoid fraud or scams when looking for property online.
Visit our security centre to find out moreDisclaimer - Property reference BGE250066. The information displayed about this property comprises a property advertisement. Rightmove.co.uk makes no warranty as to the accuracy or completeness of the advertisement or any linked or associated information, and Rightmove has no control over the content. This property advertisement does not constitute property particulars. The information is provided and maintained by Oakmans Estate Agents, Shirley. Please contact the selling agent or developer directly to obtain any information which may be available under the terms of The Energy Performance of Buildings (Certificates and Inspections) (England and Wales) Regulations 2007 or the Home Report if in relation to a residential property in Scotland.
*This is the average speed from the provider with the fastest broadband package available at this postcode. The average speed displayed is based on the download speeds of at least 50% of customers at peak time (8pm to 10pm). Fibre/cable services at the postcode are subject to availability and may differ between properties within a postcode. Speeds can be affected by a range of technical and environmental factors. The speed at the property may be lower than that listed above. You can check the estimated speed and confirm availability to a property prior to purchasing on the broadband provider's website. Providers may increase charges. The information is provided and maintained by Decision Technologies Limited. **This is indicative only and based on a 2-person household with multiple devices and simultaneous usage. Broadband performance is affected by multiple factors including number of occupants and devices, simultaneous usage, router range etc. For more information speak to your broadband provider.
Map data ©OpenStreetMap contributors.







