
Upper Stowfield Road, Lydbrook

- PROPERTY TYPE
Detached Bungalow
- BEDROOMS
3
- BATHROOMS
1
- SIZE
1,280 sq ft
119 sq m
- TENUREDescribes how you own a property. There are different types of tenure - freehold, leasehold, and commonhold.Read more about tenure in our glossary page.
Freehold
Key features
- DETACHED BUNGALOW
- THREE BEDROOMS
- STUNNING COUNTRYSIDE VIEWS
- DETACHED GARAGE & WORKSHOP
- PRIVATE GARDENS
- NEWLY RENOVATED
- WOODBURNER
- MUST BE VIEWED!!
Description
This property offers a large kitchen/dining room, a sunroom which can also be used as an office, stunning views from the lounge which also boasts a wood burner, three great sized bedrooms, with one offering a W.C., modern bathroom with a walk-in shower, a large garden with lovely views and a detached garage with a workshop below.
The Manse is situated in Lydbrook where you will find a range of woodland and river walks, a free house, doctors surgery, a convenience store and great bus links. Coleford town center is just a short drive away where you will find a range of supermarkets, cafes, independent businesses, dentists, free houses and much more!!
Approached Via Front Door Into: -
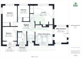
Entrance Hallway: - 3.51m x 2.04m (11'6" x 6'8") - Doors to bedrooms, bathroom, lounge & kitchen, power & lighting, radiator, smoke alarm, loft access and generous additional useable space.
Lounge: - 4.00m x 3.79m (13'1" x 12'5") - Wood burning stove, two UPVC double glazed windows, radiator, built in storage, power & lighting.
Kitchen/Dining Room: - 3.64m x 3.94m (11'11" x 12'11") - A range of eye level and base units, electric Rangemaster with extractor fan, stainless steel one & a half sink with drainer unit, UPVC double glazed window, space for dishwasher, radiator, power & lighting, consumer unit, archway into dining room.
Office/Sun Room: - 2.60m x 3.38m (8'6" x 11'1") - UPVC double glazed patio doors to rear garden, three UPVC double glazed windows, loft access, double panelled radiator, power & lighting, with flexible use for a dining/breakfast room.
Bedroom One: - 3.03m x 3.48m (9'11" x 11'5") - Built in wardrobes, UPVC double glazed windows, double panelled radiator, power & lighting.
Bedroom Two: - 3.03m x 2.87m (9'11" x 9'4") - UPVC double glazed window, double panelled radiator, power & lighting, W.C., hand wash basin with storage below, heated towel rail, built in storage & shelving with potential to add a shower.
Bedroom Three: - 2.39m x 2.50m (7'10" x 8'2") - UPVC double glazed windows, double panelled radiator, power & lighting, built in storage.
Bathroom: - 1.82m x 2.51m (5'11" x 8'2") - Walk in shower with rainfall shower head and hand held hose, hand wash basin, radiator, UPVC frosted double glazed window, W.C., wall mounted storage unit, towel rail, extractor fan, lighting.
Garage: - 3.05m x 5.52m (10'0" x 18'1") - Road Level Garage: Two double panelled radiators, power & lighting, up and over door, spacious storage space.
Workshop: - 2.72m x 5.29m (8'11" x 17'4") - Lower Ground Level Workshop: Four windows, power & lighting, composite door to enter.
Outside: - To the front is a large, enclosed patio area, with steps leading up to the road level. With the potential to create additional off road parking with the correct permissions.
To the rear you will find a tiered laid to lawn garden with views into the woods, bordered by hedges. There is also a large wooden shed. To the side of the garden is a raised laid to lawn area with stunning views over the countryside, here you will find steps up to the door leading into the sun room.
Consumer Notes: Dean Estate Agents Ltd have prepared the information within this website/brochure with care and co-operation from the seller. It is intended to be indicative rather than definitive, without a guarantee of accuracy. Before you act upon any information provided, we request that you satisfy yourself about the completeness, accuracy, reliability, suitability or availability with respect to the website or the information, products, services, or related graphics contained on the website for any purpose.
These details do not constitute any part of any Offer, Contract or Tenancy Agreement.
Photographs used for advertising purposes may not necessarily be the most recent photographs, although every effort is made to update photographs at the earliest opportunity. Any reliance you place on such information is therefore strictly at your own risk. All photographic images are under the ownership of Dean Estate Agents Ltd and therefore Dean Estate Agents retain the copyright. You must obtain permission from the owner of the images to reproduce them.
Tenanted Property – we are not always able to show the most recent condition of a property due to tenants’ privacy and we may choose to show the photographs of the property when it was last vacant to at least allow clients some idea of the internal condition. Therefore, we would of course, urge you to view before making any decisions to purchase or rent the property and before any costs.
Energy Performance Certificates are supplied to us via a third party and we do not accept responsibility for the content within such reports.
PRC Certificates – Some ex-local authority properties have been repaired in recent years using the PRC Scheme wherein a certificate has been produced by a qualified property engineer. This certificate does not imply the suitability for a mortgage approval and you must satisfy yourself of the work carried out that may meet your lenders criteria.
As with leasehold property or new build development sites, you are likely to be responsible for a contribution to management charges and/or ground rent or a contribution to the development service charge. Please enquire at the time of viewing.
You may also incur fees for items such as leasehold packs and, in addition, you will also need to check the remaining length of any lease before you complete a mortgage application form.
Please ask a member of our team for any help required before committing to purchase a property and incurring expense.
Brochures
Upper Stowfield Road, LydbrookBrochure- COUNCIL TAXA payment made to your local authority in order to pay for local services like schools, libraries, and refuse collection. The amount you pay depends on the value of the property.Read more about council Tax in our glossary page.
- Band: D
- PARKINGDetails of how and where vehicles can be parked, and any associated costs.Read more about parking in our glossary page.
- Yes
- GARDENA property has access to an outdoor space, which could be private or shared.
- Yes
- ACCESSIBILITYHow a property has been adapted to meet the needs of vulnerable or disabled individuals.Read more about accessibility in our glossary page.
- Ask agent
Upper Stowfield Road, Lydbrook
Add an important place to see how long it'd take to get there from our property listings.
__mins driving to your place
Get an instant, personalised result:
- Show sellers you’re serious
- Secure viewings faster with agents
- No impact on your credit score
Your mortgage
Notes
Staying secure when looking for property
Ensure you're up to date with our latest advice on how to avoid fraud or scams when looking for property online.
Visit our security centre to find out moreDisclaimer - Property reference 33996403. The information displayed about this property comprises a property advertisement. Rightmove.co.uk makes no warranty as to the accuracy or completeness of the advertisement or any linked or associated information, and Rightmove has no control over the content. This property advertisement does not constitute property particulars. The information is provided and maintained by Dean Estate Agents, Coleford. Please contact the selling agent or developer directly to obtain any information which may be available under the terms of The Energy Performance of Buildings (Certificates and Inspections) (England and Wales) Regulations 2007 or the Home Report if in relation to a residential property in Scotland.
*This is the average speed from the provider with the fastest broadband package available at this postcode. The average speed displayed is based on the download speeds of at least 50% of customers at peak time (8pm to 10pm). Fibre/cable services at the postcode are subject to availability and may differ between properties within a postcode. Speeds can be affected by a range of technical and environmental factors. The speed at the property may be lower than that listed above. You can check the estimated speed and confirm availability to a property prior to purchasing on the broadband provider's website. Providers may increase charges. The information is provided and maintained by Decision Technologies Limited. **This is indicative only and based on a 2-person household with multiple devices and simultaneous usage. Broadband performance is affected by multiple factors including number of occupants and devices, simultaneous usage, router range etc. For more information speak to your broadband provider.
Map data ©OpenStreetMap contributors.








