Keythorpe Street, Leicester, Leicestershire, LE2
- PROPERTY TYPE
Retail Property (high street)
- BEDROOMS
5
- SIZE
31 sq ft
3 sq m
Key features
- Large corner terrace with g/f retail unit and five bed self contained flat above
- Benefitting from garage to the rear
- Easy access to Leicester City Centre & Places of Worship
- Maybe suitable for development subject to obtaining necessary planning consent
Description
The property is located on Keythorpe Street, off Melbourne Road, within a popular location. The property is conveniently located with access to all amenities, places of worship, along with easy access to Leicester City Centre & Leicester Railway Station. The main motorway networks can be accessed easily and are approximately 6 miles from the property.
Description
We are pleased to offer this large corner terrace property located on the corner of Keythorpe Street & Garendon Street, comprising of a ground floor retail unit and a spacious five bedroom flat above. The retail area offers frontage with plenty of potential for various types of business use. There is garage with toilet & sink, which provides additional storage or workspace. On the first and second floor is a five bedroom self contained flat refurbished in 2023. The first floor includes a living room, kitchen, family
bathroom and two bedrooms. On the second floor there are three bedrooms. This property offers a great opportunity for both residential and commercial use for investment or to owner occupy.
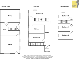
Accommodation
Ground Floor:
Retail Area - providing good size sales area having laminate wood flooring, gas central heating, fluorescent strip lighting, large windows to the front & side aspects, power points and access to the store and garage.
Store - vinyl floor covering, power points, gas central heating radiator, storage space, access to garage and first floor.
Garage - Concrete flooring, power points, up and over garage door providing external access, Adequate space for parking and additional storage.
Flat - First Floor:
Landing area - having carpeted flooring, gas central heating radiators.
Kitchen - A well equipped kitchen with a range of wall and base units, work surfaces over, stainless steel sink unit with mixer tap and drainer, four ring gas hob, oven, plumbing for washing machine, combination boiler, power points, gas central heating radiator, vinyl flooring, UPVC double glazed window to front aspect.
Bedroom One - carpeted flooring, gas central heating radiator, power points, storage cupboard, UPVC double glazed window to front aspect.
Bedroom Two - carpeted flooring, gas central heating radiator, power points, UPVC double glazed window to rear aspect.
Bathroom - Panelled bath with mixer tap and shower over, pedestal wash hand basin, WC, heated towel radiator, fully tiled walls, UPVC double glazed window to side aspect.
Flat - Second Floor:
Bedroom Three - Reduced head height, carpeted flooring, gas central heating radiator, power points, Velux windows.
Bedroom Four - carpeted flooring, gas central heating radiator, power points, UPVC double glazed window.
Bedroom Five - carpeted flooring, gas central heating radiator, power points, UPVC double glazed window.
Measurements - Approx.
Ground Floor Retail : 31'4" x 12'6" (9.55m x 3.84m)
Ground Floor Store: 15'3" x 12'8" (4.66m x 3.9m)
Garage: 12'2" x 14'1" (3.72m x 4.29m)
Bathroom: 5'7" x 9'2" (1.74m x 2.8m)
Bedroom one: 5'8" x 9'7" (3.98m x 2.89m)
Kitchen: 12'1" x 9'7" (3.7m x 2.9m)
Bedroom two: 11'9" x 12'6" (3.63m x 3.84m)
Bedroom three: 9'2" x 8'4" (2.81m x 2.56m)
Bedroom four: 13'3" x 10'7" (4.05m x 3.26m)
Bedroom five: 11'2" x 9'1" (3.41m x 2.77m)
Services
We understand that all mains services are connected to the property. It should be noted that Shonki Brothers have not tested any of the services and are not able to offer any guarantees in this regard.
Planning
We are verbally advised that the premises have consent for Class E (Ground Floor) of The Town and Country Planning (Use Classes) (Amendment) Regulations 2020. Interested parties should make the own enquiries by contacting the local authority (Leicester City Council).
Tenure
Freehold subject to existing tenancy. The Flat is currently let on an Assured Shorthold Tenancy for a term of 12 months from the 28th October 2024 at a current rent of £900.00.00 per calendar month exclusive (£10,00.00 per annum).
Viewings
Strictly by appointment through the sole selling agents.
VAT
We are advised that VAT is not applicable.
Legal Costs
Each party to be responsible for their own legal costs.
EPC
Retail - EPC Rating C.
Flat - EPC Rating D.
Rates
The rateable value is to be confirmed. Interested parties should satisfy themselves as to the likely rates payable from the date of occupation by contacting the Local Authority.
Disclaimer: Money Laundering Regulations, Intending purchasers will be asked to produce identification documentation at a later stage and we would ask for your co-operation in order that there will be no delay in agreeing the sale. All measurements are approximate. Whilst we endeavour to make our sales particulars accurate and reliable, these approximate room sizes are only intended as general guidance. You must verify the dimensions carefully before. Shonki Bros have not tested any apparatus, equipment, fixtures, fittings or services and it is the buyers interests to check the working condition of any appliances. Potential buyers are advised to recheck the measurements before committing to any expense. While we endeavour to make our sales particulars fair, accurate and reliable, they are only a general guide to the property and, accordingly, if there is any point which is of particular importance to you, please contact the office and we will be pleased to check the position for you, especially if you are contemplating travelling some distance to view the property. These particulars are issued in good faith but do not constitute representations of fact or form part of any offer or contract. The matters referred to in these particulars should be independently verified by prospective buyers or tenants
Keythorpe Street, Leicester, Leicestershire, LE2
NEAREST STATIONS
Distances are straight line measurements from the centre of the postcode- Leicester Station0.5 miles
- South Wigston Station3.8 miles
- Syston Station4.3 miles
Notes
Disclaimer - Property reference 24keythorpestreet. The information displayed about this property comprises a property advertisement. Rightmove.co.uk makes no warranty as to the accuracy or completeness of the advertisement or any linked or associated information, and Rightmove has no control over the content. This property advertisement does not constitute property particulars. The information is provided and maintained by Shonki Brothers, Leicester. Please contact the selling agent or developer directly to obtain any information which may be available under the terms of The Energy Performance of Buildings (Certificates and Inspections) (England and Wales) Regulations 2007 or the Home Report if in relation to a residential property in Scotland.
Map data ©OpenStreetMap contributors.








