Apulia, Bari, Andria, Italy
- PROPERTY TYPE
Villa
- BEDROOMS
4
- BATHROOMS
1
- SIZE
8,396 sq ft
780 sq m
Key features
- 5 Rooms
- Terrace 70 m²
- Fireplace
- Conditioned air
- Aluminum frames
- Views
Description
For Sale – Charming villa with 1 hectare of land in Contrada Montevitolo, Andria (BT)
Nestled in the heart of the Apulian countryside, this exclusive villa with one hectare of private land represents an authentic refuge, just a few minutes from the center of Andria. An oasis of tranquility where nature, elegance and functionality blend in perfect harmony.
Dreamy outdoor spaces
The large garden, cared for down to the smallest details, hosts a relaxation area in Trani stone with a table and custom-made chairs, surrounded by low walls and lush vegetation. Here every moment becomes special, between peace, privacy and conviviality.
Making the area even more suggestive is the presence of an external wood-fired oven, perfect for preparing pizzas, bread or traditional dishes to be enjoyed outdoors.
Suggestive corners and efficient water supply
A decorative fountain with a pond and a characteristic stone grotto, perfect for meditation or reading, further enrich the atmosphere.
The water supply is guaranteed by a consortium artesian well, of which the property is a member, which ensures continuity and reliability. In addition, there is a rainwater reserve used for irrigation of greenery and crops, in a sustainable and autonomous perspective.
Authenticity and sustainability
Inside the property: orchard, vegetable garden and area for laying hens, for those who want to experience the countryside in an authentic way, with genuine products and a sustainable lifestyle.
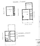
The villa – large, bright and well distributed
The house is on two levels and has an internal surface area of approximately 240 m2.
On the ground floor, we find a large living area with fireplace and pellet stove, a separate kitchen, laundry room with shower, bathroom and utility room. Externally, a covered porch of 31 square meters at the entrance offers an elegant and functional welcome, perfect for living outdoors even in mid-seasons. On the first floor, there are four bright and well-distributed bedrooms, served by two spacious panoramic verandas: the first of 31 square meters, ideal for breakfasts or moments of relaxation, the second, on the opposite side, of about 40 square meters, with an open view of the surrounding countryside.
Extra space
The property is completed by a large warehouse of approximately 70 m2 (h 3.30), perfect as a warehouse, garage, laboratory or multifunctional space.
Strategic position
Well connected and easily accessible, this villa is ideal as a first home, country residence or hospitality business (farmhouse, B&B or holiday home).
A place to rediscover the value of time, nature and simple things.
Contact us now to receive more information or book a visit.
Apulia, Bari, Andria, Italy
NEAREST AIRPORTS
Distances are straight line measurements- Bari Palese(International)26.5 miles
- Brindisi - Salento(International)95.0 miles
Advice on buying Italian property
Learn everything you need to know to successfully find and buy a property in Italy.
Notes
This is a property advertisement provided and maintained by Coldwell Banker Gruppo Bodini, Italia (reference 280856_185890201002809) and does not constitute property particulars. Whilst we require advertisers to act with best practice and provide accurate information, we can only publish advertisements in good faith and have not verified any claims or statements or inspected any of the properties, locations or opportunities promoted. Rightmove does not own or control and is not responsible for the properties, opportunities, website content, products or services provided or promoted by third parties and makes no warranties or representations as to the accuracy, completeness, legality, performance or suitability of any of the foregoing. We therefore accept no liability arising from any reliance made by any reader or person to whom this information is made available to. You must perform your own research and seek independent professional advice before making any decision to purchase or invest in overseas property.





