Storage facility to lease
Anglia Way, Braintree, Essex, CM7
- SIZE AVAILABLE
17,050 sq ft
1,584 sq m
- SECTOR
Storage facility to lease
Lease details
- Lease available date:
- Ask agent
Description
Location
The subject property is located in an elevated position close to Millennium Way a major route between the town centre and the A120. Surrounding occupiers include Wickes and Plumb Cirty.
The property is also close to Braintree Designer Village, Braintree Retail Centre and Charter Way Business Park.
Description
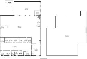
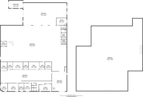
The warehouse is constructed in four bays with an eaves height of 6.2m. The building is served by a 3m wide roller shutter door on the front elevation and a 5m wide folding/sliding door at the rear of the property. The warehouse benefits from numerous roof lights which provide good natural light.
Within the warehouse a steel frame mezzanine floor covers the majority of the building.
At the front of the building a large area of offices has been created. This space includes a reception, three small offices at the front and four cellular offices to the rear with a large open plan area between the two.
Accommodation
The approximate gross internal areas are as follows:
Warehouse 12,174 sq ft (1131 sq m)
Office 4,876 sq ft (453 sq m)
Total 17,050 sq ft (1584 sq m)
Mezzanine 12,163 sq ft (1130 sq m)
TERMS
The property is available on a new, full repairing and insuring lease for a minimum term of 5 years, at a rent of £175,000 per annum plus VAT.
SERVICES
All main services are available. Please note Joscelyne Chase has not tested any of these services.
RATEABLE VALUE
The current rateable value is £105,000 and is described as a Warehouse and premises. Applicants are recommended to confirm the above information direct with Braintree District Council, tel. no. .
LEGAL FEES
Each party is responsible for their own legal costs.
ENERGY PERFORMANCE CERTIFICATE (EPC)
The property has an energy rating C (74). Please contact our office if you would like a copy of the full report.
VIEWING
Strictly by appointment with JOSCELYNE CHASE, please contact the Commercial Department.
Anglia Way, Braintree, Essex, CM7
NEAREST STATIONS
Distances are straight line measurements from the centre of the postcode- Braintree Freeport Station0.4 miles
- Braintree Station0.5 miles
- Cressing Station1.6 miles
Notes
Disclaimer - Property reference JCH250017_L. The information displayed about this property comprises a property advertisement. Rightmove.co.uk makes no warranty as to the accuracy or completeness of the advertisement or any linked or associated information, and Rightmove has no control over the content. This property advertisement does not constitute property particulars. The information is provided and maintained by Joscelyne Chase Commercial, Essex. Please contact the selling agent or developer directly to obtain any information which may be available under the terms of The Energy Performance of Buildings (Certificates and Inspections) (England and Wales) Regulations 2007 or the Home Report if in relation to a residential property in Scotland.
Map data ©OpenStreetMap contributors.





