
The Ridgeway, Potton, Sandy

- PROPERTY TYPE
Detached
- BEDROOMS
4
- BATHROOMS
2
- SIZE
Ask agent
- TENUREDescribes how you own a property. There are different types of tenure - freehold, leasehold, and commonhold.Read more about tenure in our glossary page.
Freehold
Key features
- Four bedrooms
- En-suite to the master
- Three reception rooms
- Downstairs cloakroom
- Re-fitted kitchen
- Re-fitted bathroom
- Garden not overlooked
- Garage
Description
This family home has been extended to the side and rear behind the garage providing extra living accommodation. There are three reception rooms, a re-fitted kitchen with Aga, en-suite facilities to the master bedroom and a large re-fitted bathroom.
Externally the property boasts a pleasant rear garden overlooking open fields (soon to become allotments) parking and a garage.
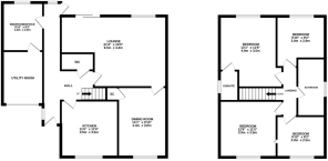
PARTICULARS Double glazed door with glazed panels to:
HALLWAY Double glazed window to the side. Radiator. Downlighting. Stairs rising to the first floor. Oak flooring. Door to:
CLOAKROOM Low level W.C. Vanity unit housing the wash hand basin. Tiled flooring. Half tiled to the walls. Heated towel rail. Recessed lighting. Extractor.
LOUNGE 13' 4" x 21' 3 (max)" (4.06m x 6.48m) Wood burning stove with granite surround and timber mantle. Double glazed patio door to the rear garden. Large double glazed window. Radiator. Coving.
DINING ROOM 14' 7" x 9' 8" (4.44m x 2.95m) Original parquet flooring. Under stairs storage cupboard. Double glazed window to the front. Wall lighting. Radiator. Coving to the ceiling.
KITCHEN 11' 4" x 10' 6" (3.45m x 3.2m) Base and wall mounted units in satin grey with granite effect work top surfaces. Stainless steel sink with mixer tap. Pantry cupboard. Plumbing for washing machine and dishwasher. Space for fridge/freezer. Gas fired AGA. Wine cooler. Double glazed window to the front. Recessed lighting.
INNER HALLWAY Double glazed door and window to the rear. Oak flooring. Meter cupboard.
STUDY 10' 7" x 7' 9" (3.23m x 2.36m) Double glazed window to the rear. Radiator. Hardwood flooring. Door through to the garage/utility room.
BEDROOM ONE 13' 5" x 11' 5" (4.09m x 3.48m) Double glazed window to the rear. Radiator. Fitted wardrobes. Dresser with under and over head cupboard.
ENSUITE Large tiled shower. Pedestal wash hand basin. Heated towel rail. Double glazed frosted window to the side. Extractor.
BEDROOM TWO 9' 4" x 8' 3" (2.84m x 2.51m) Double glazed window to the front. Radiator. Fitted wardrobes.
BEDROOM THREE 9' 4" x 8' 3" (2.84m x 2.51m) Double glazed window to the front. Radiator.
BEDROOM FOUR 9' 10" x 9' 4" (3m x 2.84m) Double glazed window to the rear. Radiator.
BATHROOM Bath with shower over. Vanity unit housing the wash hand basin. low level W.C. Tiled on three sides. Heated towel rail. Shaver point. Tiled flooring
EXTERNALLY Rear garden: Mainly laid to lawn with patio area. Shrubbery. Small shed. Fenced on all sides.
To the front: Low maintenance front. Ample parking leading to:
GARAGE/UTILITY Roller shutter door into. Base and wall mounted units with power and lighting and still retaining space for a car. Personal door into the study.
Brochures
(S5) Brochure - L...- COUNCIL TAXA payment made to your local authority in order to pay for local services like schools, libraries, and refuse collection. The amount you pay depends on the value of the property.Read more about council Tax in our glossary page.
- Band: E
- PARKINGDetails of how and where vehicles can be parked, and any associated costs.Read more about parking in our glossary page.
- Yes
- GARDENA property has access to an outdoor space, which could be private or shared.
- Yes
- ACCESSIBILITYHow a property has been adapted to meet the needs of vulnerable or disabled individuals.Read more about accessibility in our glossary page.
- Ask agent
The Ridgeway, Potton, Sandy
Add an important place to see how long it'd take to get there from our property listings.
__mins driving to your place
Get an instant, personalised result:
- Show sellers you’re serious
- Secure viewings faster with agents
- No impact on your credit score



Your mortgage
Notes
Staying secure when looking for property
Ensure you're up to date with our latest advice on how to avoid fraud or scams when looking for property online.
Visit our security centre to find out moreDisclaimer - Property reference 103515003188. The information displayed about this property comprises a property advertisement. Rightmove.co.uk makes no warranty as to the accuracy or completeness of the advertisement or any linked or associated information, and Rightmove has no control over the content. This property advertisement does not constitute property particulars. The information is provided and maintained by Kennedy & Co Sales and Lettings, Potton. Please contact the selling agent or developer directly to obtain any information which may be available under the terms of The Energy Performance of Buildings (Certificates and Inspections) (England and Wales) Regulations 2007 or the Home Report if in relation to a residential property in Scotland.
*This is the average speed from the provider with the fastest broadband package available at this postcode. The average speed displayed is based on the download speeds of at least 50% of customers at peak time (8pm to 10pm). Fibre/cable services at the postcode are subject to availability and may differ between properties within a postcode. Speeds can be affected by a range of technical and environmental factors. The speed at the property may be lower than that listed above. You can check the estimated speed and confirm availability to a property prior to purchasing on the broadband provider's website. Providers may increase charges. The information is provided and maintained by Decision Technologies Limited. **This is indicative only and based on a 2-person household with multiple devices and simultaneous usage. Broadband performance is affected by multiple factors including number of occupants and devices, simultaneous usage, router range etc. For more information speak to your broadband provider.
Map data ©OpenStreetMap contributors.





