
Slough, Berkshire, SL1

- PROPERTY TYPE
Terraced
- BEDROOMS
3
- BATHROOMS
1
- SIZE
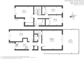
1,059 sq ft
98 sq m
- TENUREDescribes how you own a property. There are different types of tenure - freehold, leasehold, and commonhold.Read more about tenure in our glossary page.
Freehold
Key features
- Three Bedrooms
- Garage and Driveway
- Private Garden
- Town Centre Loction
- 0.5 Miles From Elizabeth Line
Description
This fully refurbished three bed semi, with its modern features, spacious rooms and beautifully presented interiors, offers the ideal balance of comfort, style and practicality. If you’re looking for a home that combines contemporary living with a prime location, this is the perfect choice.
Property Details
This immaculate, fully refurbished three bedroom semi-detached home is situated in a prime location, within a mile from the town centre. The property boasts a classic, yet modern, facade with high-quality brickwork and elegant detailing. Offering a perfect blend of privacy and convenience, the house is located only half a mile from the Elizabeth Line, making commuting or accessing London efficiently. With off-street parking for two cars and an attached garage, you'll never need to worry about parking space.
The south-facing garden is a standout feature, providing sunlight all day long, ideal for outdoor entertaining or family relaxation. A covered patio area enhances this outdoor space, offering protection from the elements while enjoying the view of the garden. The front of the property has a neat driveway, leading to the garage.
Upon entry, you are greeted by a stunning hallway with a beautiful stairway that immediately catches the eye. The feature wall adds a contemporary touch, complementing the chandelier that hangs elegantly above. This open and welcoming area sets the tone for the rest of the property’s modern finishes.
To the right of the hallway, the spacious reception room is bathed in natural light from the patio doors that open directly onto the south-facing garden. The living space is bright and airy, with ample room for a large sofa, entertainment unit, and any other desired furnishings. The patio doors create a seamless indoor-outdoor flow, perfect for entertaining guests or enjoying tranquil evenings in the garden.
The modern galley kitchen is sleek and efficient, designed for both function and style. With high-end integrated appliances, contemporary cabinetry, and a clean, streamlined layout, the kitchen provides everything needed for home cooking and entertaining. The long countertops offer plenty of workspace, and the design ensures easy movement between areas. A window looking to the front allows natural light throughout the day.
Conveniently located on the ground floor is a downstairs WC, offering added practicality for guests and families.
The beautiful stairway leads to the first floor, where you’ll find three well-proportioned bedrooms and a family bathroom. The attention to detail continues upstairs, plush carpeting and ample natural light in every room.
The primary bedroom is spacious enough to fit a king-sized bed, along with wardrobes and additional furniture.
The second bedroom offers enough space for a double bed and could also serve as a guest room, children's room, or home office. The room is light and airy, with generous closet space and ample room for additional furniture.
Third Bedroom:
The third bedroom, though smaller, is still generously sized and can comfortably accommodate a single bed. It would work well as a child's room, study, or home gym.
The modern family bathroom is fitted with high-quality fixtures, including a contemporary bathtub with an overhead shower, a stylish sink, and a toilet. The space is beautifully tiled, with neutral tones and chic finishes, offering a spa-like atmosphere for relaxation.
This home has been fully refurbished to a high standard, with modern fixtures and finishes throughout, making it feel like new while retaining its original charm.
The property is presented in immaculate condition, with every detail carefully considered, from freshly painted walls to high-end flooring and lighting fixtures.
The south-facing garden is a true gem, offering sunshine all day long. The covered patio area ensures you can enjoy outdoor living no matter the weather, and the garden itself is well-maintained with mature plants and lawn space.
The home is ideally located for those who want to be close to the hustle & bustle of the town centre, yet still enjoy a peaceful residential setting. The Elizabeth Line is just a half-mile away, making travel into central London
Brochures
More details from Chancellors- COUNCIL TAXA payment made to your local authority in order to pay for local services like schools, libraries, and refuse collection. The amount you pay depends on the value of the property.Read more about council Tax in our glossary page.
- Band: D
- PARKINGDetails of how and where vehicles can be parked, and any associated costs.Read more about parking in our glossary page.
- Garage,Off street
- GARDENA property has access to an outdoor space, which could be private or shared.
- Private garden
- ACCESSIBILITYHow a property has been adapted to meet the needs of vulnerable or disabled individuals.Read more about accessibility in our glossary page.
- Ask agent
Slough, Berkshire, SL1
Add an important place to see how long it'd take to get there from our property listings.
__mins driving to your place
Get an instant, personalised result:
- Show sellers you’re serious
- Secure viewings faster with agents
- No impact on your credit score
Your mortgage
Notes
Staying secure when looking for property
Ensure you're up to date with our latest advice on how to avoid fraud or scams when looking for property online.
Visit our security centre to find out moreDisclaimer - Property reference 5852690. The information displayed about this property comprises a property advertisement. Rightmove.co.uk makes no warranty as to the accuracy or completeness of the advertisement or any linked or associated information, and Rightmove has no control over the content. This property advertisement does not constitute property particulars. The information is provided and maintained by Chancellors, Slough. Please contact the selling agent or developer directly to obtain any information which may be available under the terms of The Energy Performance of Buildings (Certificates and Inspections) (England and Wales) Regulations 2007 or the Home Report if in relation to a residential property in Scotland.
*This is the average speed from the provider with the fastest broadband package available at this postcode. The average speed displayed is based on the download speeds of at least 50% of customers at peak time (8pm to 10pm). Fibre/cable services at the postcode are subject to availability and may differ between properties within a postcode. Speeds can be affected by a range of technical and environmental factors. The speed at the property may be lower than that listed above. You can check the estimated speed and confirm availability to a property prior to purchasing on the broadband provider's website. Providers may increase charges. The information is provided and maintained by Decision Technologies Limited. **This is indicative only and based on a 2-person household with multiple devices and simultaneous usage. Broadband performance is affected by multiple factors including number of occupants and devices, simultaneous usage, router range etc. For more information speak to your broadband provider.
Map data ©OpenStreetMap contributors.








