
Fleetwood Close, Minster On Sea, Sheerness
- PROPERTY TYPE
Plot
- SIZE
Ask agent
Key features
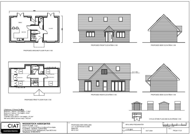
- Full Planning Permission Granted For 2 Bed 2 Storey Detached Bungalow
- Swale Borough Council -Ref. No: 24/504614/FULL
- Separate Own Access And Exit
- Prime Sought After Minster Location
- A Stone Throw To Shops And Amenities
- Close To The Beach And The Glen
- 2 Double Bedrooms
- Amazing Opportunity For Self Build Or Developer
- Do Not Miss One!!
Description
In the sought after area of Fleetwood Close, Minster On Sea, Sheerness, this exceptional building plot presents a remarkable opportunity for both self-build enthusiasts and developers alike. With full planning permission granted for a two-bedroom, two-storey detached bungalow, this property is ready for you to bring your vision to life. The planning reference number is 24/504614/FULL, which can be easily accessed for further details.
The plot is ideally situated just a stone's throw away from local shops and amenities, ensuring that everyday conveniences are within easy reach. This prime location in Minster is highly sought after, making it an attractive prospect for those looking to invest in a new home or a lucrative development project.
With two double bedrooms and the potential for a spacious reception area, the planned bungalow offers a comfortable living space that can be tailored to your specific needs. The opportunity to create a bespoke home in such a charming community is rare, and this plot is not to be missed.
Whether you are a first-time buyer looking to build your dream home or a seasoned developer seeking a promising project, this land offers the perfect canvas to create something truly special. Embrace the chance to design a property that reflects your personal style in a location that combines convenience with a welcoming atmosphere.
James Perry do not provide advice or recommendation on planning and all enquiries should be dealt with by SBC.
Land -
Access -
Drawings -
Brochures
Fleetwood Close, Minster On Sea, SheernessBrochureFleetwood Close, Minster On Sea, Sheerness
NEAREST STATIONS
Distances are straight line measurements from the centre of the postcode- Queenborough Station2.1 miles
- Sheerness-on-Sea Station2.3 miles
- Swale Station3.0 miles
Notes
Disclaimer - Property reference 34012002. The information displayed about this property comprises a property advertisement. Rightmove.co.uk makes no warranty as to the accuracy or completeness of the advertisement or any linked or associated information, and Rightmove has no control over the content. This property advertisement does not constitute property particulars. The information is provided and maintained by James Perry Estate Agents, Isle of Sheppey. Please contact the selling agent or developer directly to obtain any information which may be available under the terms of The Energy Performance of Buildings (Certificates and Inspections) (England and Wales) Regulations 2007 or the Home Report if in relation to a residential property in Scotland.
Map data ©OpenStreetMap contributors.





