Skip to content

4 bedroom detached house for sale

Setúbal, Barreiro, Portugal

£520,353
€599,900
IAD, Porto
PROPERTY TYPE

Detached

BEDROOMS

4

BATHROOMS

3

SIZE

2,013 sq ft

187 sq m

Description

4-Bedroom Detached House (TURNKEY) with Approved Project – Ready to Start Construction in Palhais, Barreiro

Architecture and engineering project approved by the Barreiro Municipality in 12/2024 for a detached 4-bedroom house with three façades, located in a consolidated residential area of Palhais, predominantly composed of low-rise homes (up to 2 floors). A peaceful setting with high environmental and landscape quality, benefiting from excellent sunlight exposure and mild temperatures, with moderate prevailing winds.

Approved Project Features:
Total Plot Area: 300 m²
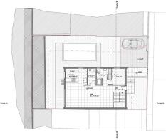
Gross Construction Area (House): 187.22 m²
Ground Floor – Gross Area: 103.72 m²
1.Entrance Hall – 4.05 m²
2.Living Room – 41.59 m²
3.Kitchen – 17.33 m²
4.Bedroom – 10.73 m²
5.Bathroom – 3.58 m²
6.Pantry – 4.32 m²
First Floor – Gross Area: 83.50 m²
7. Hall – 5.10 m²
8. Bathroom – 4.08 m²
9. Bedroom – 14.83 m²
10. Bedroom – 15.40 m²
11. Bedroom – 18.39 m²
12. Bathroom – 6.99 m²

Urban Planning Parameters
•Number of private parking spaces: 2
•Maximum building height: 6.20 m
•Total gross construction area (housing): 187.22 m²
•Building footprint: 103.72 m²
•Permeable area: 128.03 m²
•Impermeable area: 170.11 m²

Construction Features & Finishes
The house will be built using a conventional reinforced concrete structure (slabs and columns), with masonry brick walls, and thermal/acoustic insulation in accordance with the thermal design report. Interior walls will be plastered, rendered, and painted with white plastic paint, except in the kitchen and bathrooms, which will be fully clad with decorative ceramic tiles.

Thermal comfort has been carefully considered and will be ensured through:
•Double walls with internal thermal insulation (Wallmate) or external Capotto system
•Roof slab insulated with Roofmate and waterproofing system
•Thermal bridge correction and construction continuity, minimizing condensation risks and improving long-term durability
Acoustic insulation will be ensured both between the interior and exterior and between internal spaces, through:
•Traditional high-mass construction solutions (airborne sound insulation)
•Elastic insulation layer in the floors (impact sound insulation)

Construction Terms
•Estimated construction duration: 18 months
•Price includes turnkey delivery, with the property fully completed and ready to move in, including all technical specialties:
oCarpentry
oWindow and door frames
oMetalwork
oPlumbing
oElectrical installations
oITED (telecommunications)
oAir conditioning

Note: Swimming pool not included in the listed price — optional, available upon request as an extra.
#ref: 143908

Setúbal, Barreiro, Portugal

Approximate location

NEAREST AIRPORTS

Distances are straight line measurements
  • Lisbon(International)
    7.8 miles

Advice on buying Portuguese property

Learn everything you need to know to successfully find and buy a property in Portugal.

About IAD, Porto

Av. da Boavista 934, Porto Portugal 4100-112

Founded in 2008, iad was born as the 1st digital real estate network made up exclusively of independent consultants. iad's DNA is based on 4 inseparable pillars: entrepreneurship, property, community and international.

In addition to head office support, the 4 pillars are backed up by digital technology and training, which make a major contribution to the success and appeal of the iad model.

With its headquarters in Paris, iad is the largest network of independent real estate consultants in Europe with more than 20,000 consultants and a turnover of 536 million euros.

iad has become the game changer of the real estate market by breaking with the sector's traditional codes, becoming the 1st French Proptech Unicorn.

In addition to France and Portugal, the iad group is also present in Spain, Italy, Germany and Mexico, the UK and the USA (more precisely, the state of Florida).

Notes

These notes are private, only you can see them.

This is a property advertisement provided and maintained by IAD, Porto (reference 143908) and does not constitute property particulars. Whilst we require advertisers to act with best practice and provide accurate information, we can only publish advertisements in good faith and have not verified any claims or statements or inspected any of the properties, locations or opportunities promoted. Rightmove does not own or control and is not responsible for the properties, opportunities, website content, products or services provided or promoted by third parties and makes no warranties or representations as to the accuracy, completeness, legality, performance or suitability of any of the foregoing. We therefore accept no liability arising from any reliance made by any reader or person to whom this information is made available to. You must perform your own research and seek independent professional advice before making any decision to purchase or invest in overseas property.

Email agent

Email agent